TN30 7NR - 5 bed spacious fivebedroom bungalow in Wittersham, TN30 7NR

View on Property Piper

5 bedroom detached bungalow for sale in Poplar Road, Wittersham, Tenterden, Kent, TN30

Summary - THE SPINNEYS WITTERSHAM TENTERDEN TN30 7NR

5 bed 3 bath Detached Bungalow

Single-storey family living with annexe and large landscaped garden.
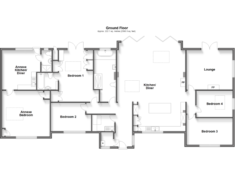
Huge open-plan kitchen/diner/day area (30'3" x 23'9")
Set in a desirable semi-rural hamlet, this spacious five-bedroom detached bungalow offers single-storey living with true family flexibility. The heart of the home is an impressive 30ft open-plan kitchen/diner/day area that flows to a beautifully landscaped rear garden with a rural backdrop — ideal for entertaining or for children to play safely.

A fully self-contained annexe provides excellent multi-generational potential or a rental income opportunity, while solar panels help reduce running costs. The property is double-glazed, sits on a large plot with off-street parking for multiple cars, and benefits from fast broadband and very low local crime.

Practical points to note: heating is by an oil-fired boiler and radiators, and the house is of mid-20th-century timber-frame construction, which may require routine maintenance typical of its age. Mobile signal in the area is average and the location is semi-rural, so commuting options are more limited than in urban centres.

Overall, this home will suit growing families wanting generous, single-level accommodation in a peaceful countryside setting, households seeking annex flexibility, or buyers looking for a property with rental potential and low immediate flood risk.

Property Details

Image Descriptions

Floorplan Description

Rooms

Textual Property Features

Target Audience

AI Tags

Detected Visual Features

EPC Details

Nearby Schools

Nearest Bars And Restaurants

,,,,}

Nearest General Shops

,,}

Nearest Grocery shops

,,}

Nearest Supermarkets

,,}

Nearest Religious buildings

,,}

Nearest Medical buildings

,,,}

Nearest Leisure Facilities

,,,,}

Nearest Tourist attractions

,,}

Nearest Train stations

,,,,}

Nearest Bus stations and stops

,,,,}

Nearest Hotels

,,}

Tags

Local Market Stats

AirBnB Data

Similar Properties

Meta

High Res Images

Compatible Images

Low res Images

Thumbnails

Raw Images

High Res Floorplan Images

Compatible Floorplan Images

Low res Floorplan Images

FloorplanImages Thumbnail

Raw Floorplan Images