OX28 1DF - 2 bed charming period cottage in Woodgreen, OX28 1DF

View on Property Piper

2 bedroom end of terrace house for sale in Woodgreen, Witney, OX28

Summary - 15 WOODGREEN WITNEY OX28 1DF

2 bed 1 bath End of Terrace

Elegant two-bed Victorian cottage on Woodgreen with private courtyard and no onward chain..
Two bedrooms in a charming Victorian cottage
Good-size sitting room with period features
Contemporary fitted kitchen with integrated appliances
Private, very small courtyard garden — low maintenance
No onward chain, ready to move into
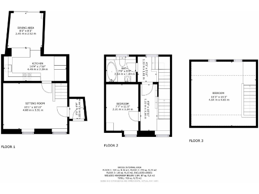
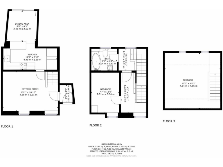
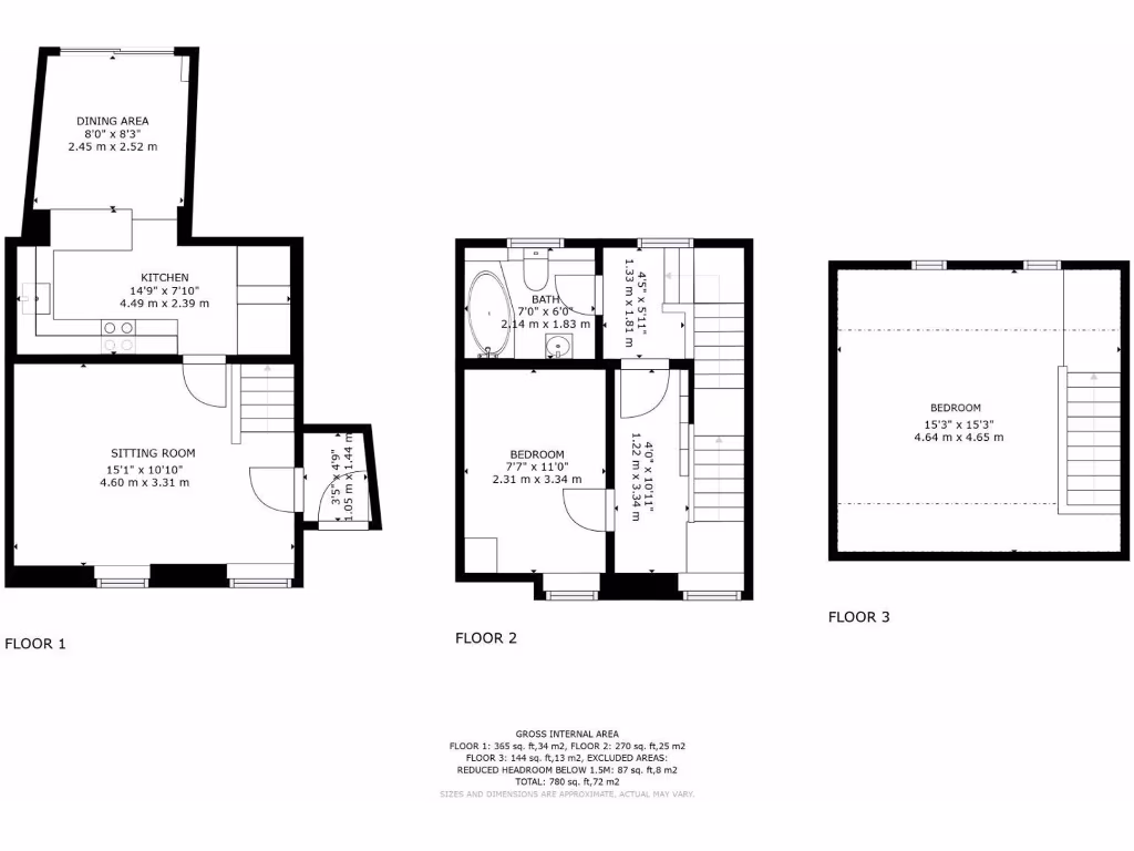
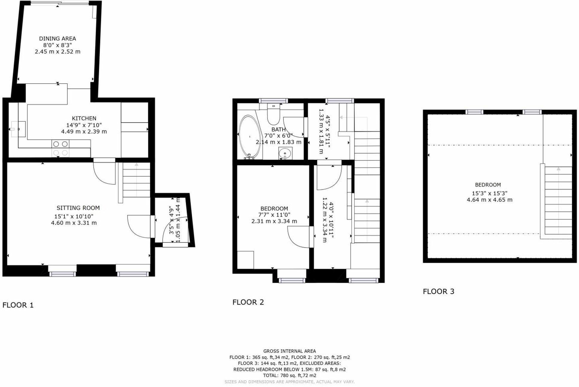
Refitted family bathroom, approx. 780 sq ft
EPC rated E; walls assumed uninsulated (energy upgrade potential)
Freehold; very low crime and fast broadband
A characterful two-bedroom Victorian cottage tucked on Woodgreen, offered with no onward chain and ready to move into. The house combines period charm — sash windows, exposed beams and a slate roof — with a contemporary fitted kitchen and integrated appliances, making day-to-day living straightforward.

The ground floor has a good-size sitting room to the front and an open-plan kitchen/dining area to the rear that floods with natural light from patio doors onto a private courtyard garden. The courtyard is low-maintenance and very private, though the plot is small and not suitable for large lawns or extensive landscaping.

Upstairs are two bedrooms served by a refitted family bathroom. At around 780 sq ft, the layout suits first-time buyers or couples seeking a manageable, character home close to Witney town centre, shops, and well-regarded schools.

Buyers should note practical considerations: the EPC rating is E and the original sandstone/limestone walls are assumed to lack insulation, which may affect energy costs and present improvement opportunities. The property is freehold and in a very low-crime, affluent area with fast broadband and excellent mobile signal.

Property Details

Image Descriptions

Floorplan Description

Rooms

Textual Property Features

Target Audience

AI Tags

Detected Visual Features

EPC Details

Nearby Schools

Nearest Bars And Restaurants

,,,,}

Nearest General Shops

,,}

Nearest Grocery shops

,,}

Nearest Supermarkets

,,}

Nearest Religious buildings

,,}

Nearest Medical buildings

,,,}

Nearest Leisure Facilities

,,,,}

Nearest Tourist attractions

,,}

Nearest Train stations

,,,,}

Nearest Bus stations and stops

,,,,}

Nearest Hotels

,,}

Tags

Local Market Stats

AirBnB Data

Similar Properties

Meta

High Res Images

Compatible Images

Low res Images

Thumbnails

Raw Images

High Res Floorplan Images

Compatible Floorplan Images

Low res Floorplan Images

FloorplanImages Thumbnail

Raw Floorplan Images