Auction sale; chain-free period house requiring full renovation and listed consent.
Grade II listed mid-terrace townhouse, three storeys
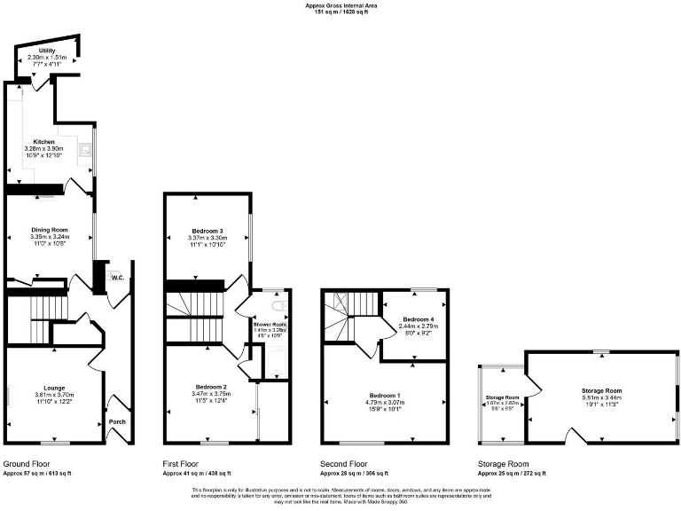
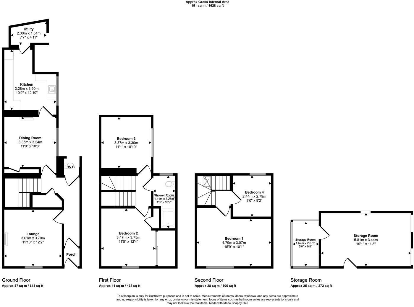
A rare central Haverfordwest opportunity: a Grade II listed mid-terrace townhouse offered chain-free and sold at auction. The three-storey layout provides four bedrooms, two reception rooms and generous storage across approximately 1,628 sq ft — a solid canvas for an investor or buyer wanting to create a family home.
The property requires full modernisation throughout: dated interiors, evidence of past damp risk in places, and older heating arrangements including solid fuel back boiler. Listed status will restrict some alterations and could complicate refurbishment plans; specialist listed-building consent will be needed for significant work.
Externally there is a tiered rear garden and a garage with parking accessed from a rear lane — convenient for town living. EPC rating E and single bathroom are practical constraints to budget for; refurbishment will improve energy performance and resale or rental potential in this market town close to Pembrokeshire’s coast.
This lot suits investors and ambitious renovators comfortable working with period fabric and listed-building requirements. The auction sale and no onward chain mean a swift purchase is possible for a prepared buyer who budgets for conservation-sensitive renovation.
Office for sale in Picton Place, Haverfordwest, Pembrokeshire, SA61 — £120,000 • 1 bed • 2 bath • 1643 ft²
4 bedroom town house for sale in Gloucester Terrace, Haverfordwest, SA61 — £250,000 • 4 bed • 1 bath • 1538 ft²
4 bedroom town house for sale in Haverfordwest, SA61 — £280,000 • 4 bed • 2 bath • 1761 ft²
5 bedroom detached house for sale in Dark Street, Haverfordwest, Pembrokeshire, SA61 — £200,000 • 5 bed • 4 bath • 2436 ft²
4 bedroom end of terrace house for sale in Cleddau View Merlins Terrace, Haverfordwest, Pembrokeshire, SA61 1PH, SA61 — £5,000 • 4 bed • 1 bath
3 bedroom end of terrace house for sale in Queens Square, Haverfordwest, Pembrokeshire, SA61 — £125,000 • 3 bed • 1 bath • 747 ft²






































































