**Standout Features:**
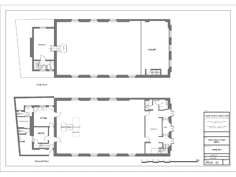
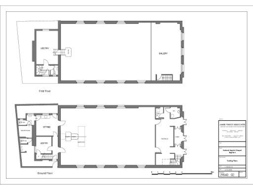
- **Historic Building**: Former Galeed Baptist Chapel, established in 1868.
- **Spacious Interior**: 3,586 square feet with high ceilings and large open-plan areas.
- **Versatile Potential**: Possible conversion to residential use subject to planning consent.
- **Prime Location**: Located in the lively North Laine area, close to Brighton Station.
- **Freehold Tenure**: Chain-free sale with full vacant possession.
- **Local Amenities**: Surrounded by shops, restaurants, and cultural attractions.
**Concerns:**
- **Crime Rate**: Area has a high crime rate.
- **Small Plot Size**: Limited outdoor space.
- **Future Planning**: Any residential conversion is subject to necessary permits.
**Summary:**
Discover the remarkable Galeed Chapel, an expansive freehold property nestled in the vibrant North Laine area of Brighton. With a generous 3,586 square feet of open-plan space adorned with striking high ceilings, this historic building offers a unique canvas for your creative vision, whether for commercial use or a potential residential conversion (subject to planning consent). The property boasts a spacious congregation area, multiple charity and office spaces, and retains its period charm, all while being within a stone’s throw from local amenities and Brighton Station.
While the area features a high crime rate and the plot size is small, the urban charm and transformative possibilities make this an ideal investment or personal project for those looking to leave their mark in a thriving neighborhood. Don’t miss this rare opportunity to breathe life into a piece of Brighton’s history—act now before it vanishes from the market!
Commercial property for sale in St Marks Chapel, Church Place, Brighton, South East, BN2 5JN, BN2 — £750,000 • 1 bed • 1 bath • 7847 ft²
Commercial property for sale in St Philips Church, 71 New Church Road, Hove, BN3 4BB, BN3 — £100,000 • 1 bed • 1 bath
Office for sale in 5 Marlborough Place, Brighton, BN1 1UB, BN1 — £795,000 • 1 bed • 1 bath • 4059 ft²
2 bedroom apartment for sale in Gardner Street, Brighton, BN1 — £450,000 • 2 bed • 1 bath • 884 ft²
4 bedroom end of terrace house for sale in North Road, Brighton, East Sussex, BN1 — £600,000 • 4 bed • 2 bath • 1075 ft²
Terraced house for sale in Lewes Road, Brighton, East Sussex, BN2 — £500,000 • 1 bed • 1 bath • 13020 ft²


























