**Standout Features:**
- 2 bedroom maisonette with spacious layout
- Located on a tranquil residential street in Wembley
- Large front, side, and rear gardens, including a garage
- Chain-free sale with a 125-year lease remaining
- Close to well-regarded schools and major transport links
- Double glazing and mains gas central heating
**Notable Concerns:**
- Average condition requiring some modernization
- High crime rate in the local area
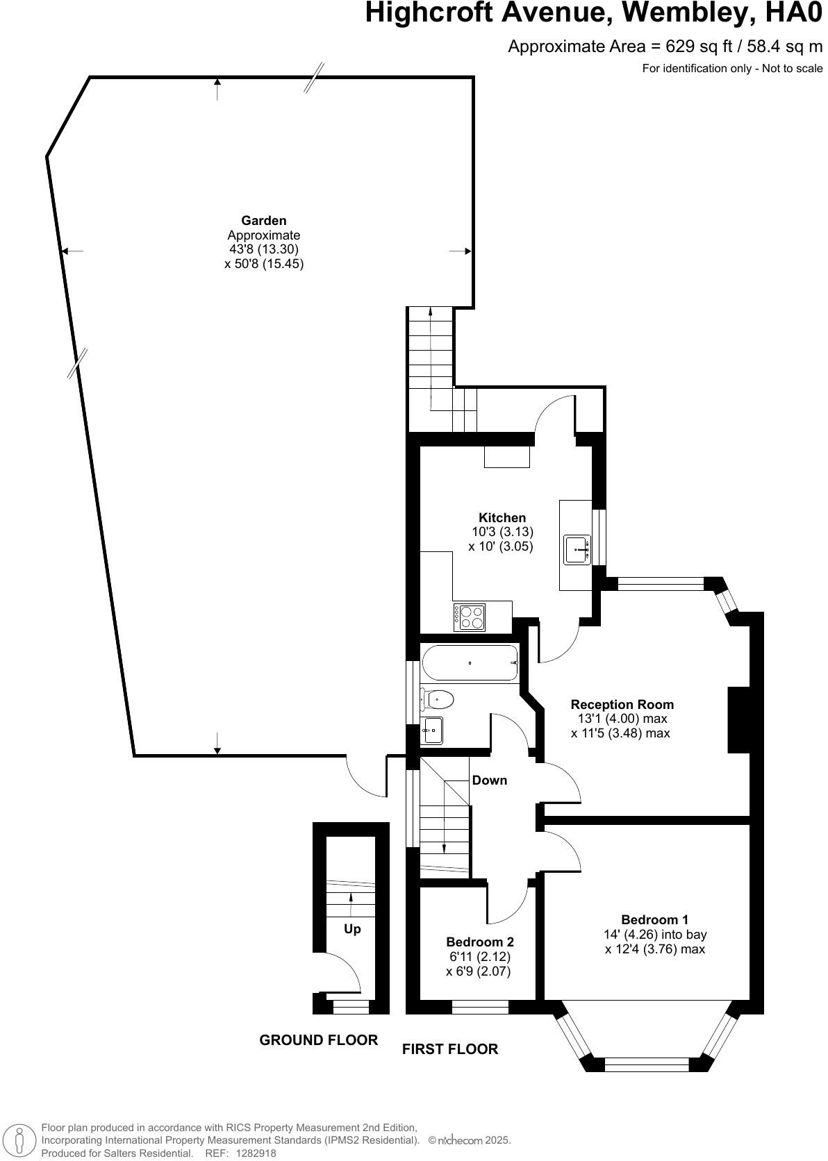
This inviting 2-bedroom maisonette on Highcroft Avenue is perfect for families or first-time buyers seeking comfort and convenience in a superb location. The property features a well-proportioned reception room that flows into a good-sized kitchen, ideal for enjoying home-cooked meals or entertaining guests. Two spacious bedrooms provide cozy retreats, while the expansive gardens—particularly the rear garden—offer ample outdoor space for leisure, gardening, or potential landscaping projects.
Set within a family-friendly neighborhood, you are just a short distance from several highly-rated primary and secondary schools, making it a strong choice for those prioritizing education. The convenient access to A40, North Circular Road, and local train services—including Stonebridge Park and Alperton stations—ensures you're well-connected to London and beyond.
While the property does require some modernization, this presents an excellent opportunity for personalized renovations to make it your own. Don't miss out on this chain-free opportunity to secure a spacious home in a desirable area—schedule a viewing today and imagine the possibilities!
2 bedroom maisonette for sale in Byron Road, Wembley, HA0 — £350,000 • 2 bed • 1 bath • 646 ft²
2 bedroom maisonette for sale in Harrowdene Close, Wembley, HA0 — £400,000 • 2 bed • 1 bath • 762 ft²
2 bedroom maisonette for sale in Barnhill Road, Wembley, HA9 — £335,000 • 2 bed • 1 bath • 548 ft²
2 bedroom maisonette for sale in The Close, Wembley, Middlesex, HA9 — £350,000 • 2 bed • 1 bath • 618 ft²
2 bedroom maisonette for sale in Wembley Hill Road, Wembley, HA9 — £375,000 • 2 bed • 1 bath • 700 ft²
2 bedroom maisonette for sale in Wembley Hill Road, Wembley, HA9 — £400,000 • 2 bed • 1 bath • 838 ft²














































