Large Grade II listed barn conversion with annexe, gated drive and private walled garden.
Grade II listed converted barn with extensive character and exposed timber beams
Extremely large footprint: approximately 3,704 sqft across principal and annexe spaces
Self-contained barn-style annexe with kitchen, shower room and sizable bedroom
Gated entrance, circular driveway, walled private garden and barn-style carport
Oil-fired boiler and radiators; main fuel oil, non-community supply
Solid brick walls (assumed no insulation) — retrofit likely for efficiency
Very slow broadband locally; may affect home working and online services
Listed status may restrict alterations and require specialist consents
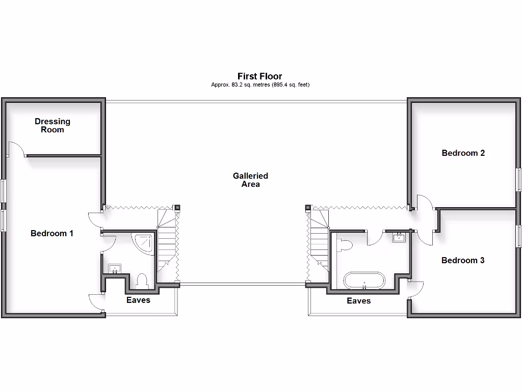
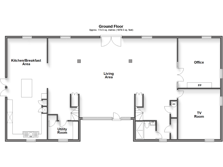
This impressive Grade II listed detached former barn sits on a large private plot in Higham village, offering extremely generous living space across 3,704 sq ft. Original exposed timbers, high vaulted ceilings and large rooms create a striking family home with strong character. A gated entrance leads to a circular driveway, barn-style carport and a walled, private garden — ideal for confident outdoor living and secure parking.
The property includes a self-contained barn-style annexe suitable for guests, older children, home working or rental income. Principal rooms are substantial (living area 37'0 x 31'5; kitchen/breakfast 31'2 x 12'0) and there is a home library, office and multiple reception spaces that suit family life and entertaining.
Buyers should note the listed status: works will require listed-building consents and will limit alterations. Heating is oil-fired boiler with radiator system and the main walls are solid brick with no known insulation, so energy costs and retrofit expense are likely. Broadband speeds are very slow locally, which may affect remote working and streaming. Council tax is described as quite expensive.
Overall this is a rare, characterful village property that will reward buyers who value space, period features and a versatile layout — provided they accept the practical implications of listed status, older construction and rural services.
4 bedroom semi-detached house for sale in Gosmere Farm Barns, Newhouse Lane, Sheldwich, ME13 — £899,995 • 4 bed • 2 bath • 3500 ft²
3 bedroom detached house for sale in High Halden, Ashford, TN26 — £1,395,000 • 3 bed • 1 bath • 3478 ft²
5 bedroom detached house for sale in Marden Road, Staplehurst, Tonbridge, Kent, TN12 — £750,000 • 5 bed • 2 bath • 2530 ft²
5 bedroom detached house for sale in Sand Lane, Frittenden, TN17 — £995,000 • 5 bed • 4 bath • 2020 ft²
4 bedroom barn conversion for sale in Stockett Lane, East Farleigh, Maidstone, ME15 0QD, ME15 — £1,225,000 • 4 bed • 3 bath • 4535 ft²
6 bedroom barn conversion for sale in Grovehurst Lane, Horsmonden, Tonbridge, Kent, TN12 — £1,500,000 • 6 bed • 4 bath • 4274 ft²






































































































































