Converted chapel with modern updates in peaceful Kingskerswell location.
Thatched, characterful former chapel with exposed beams and oak doors
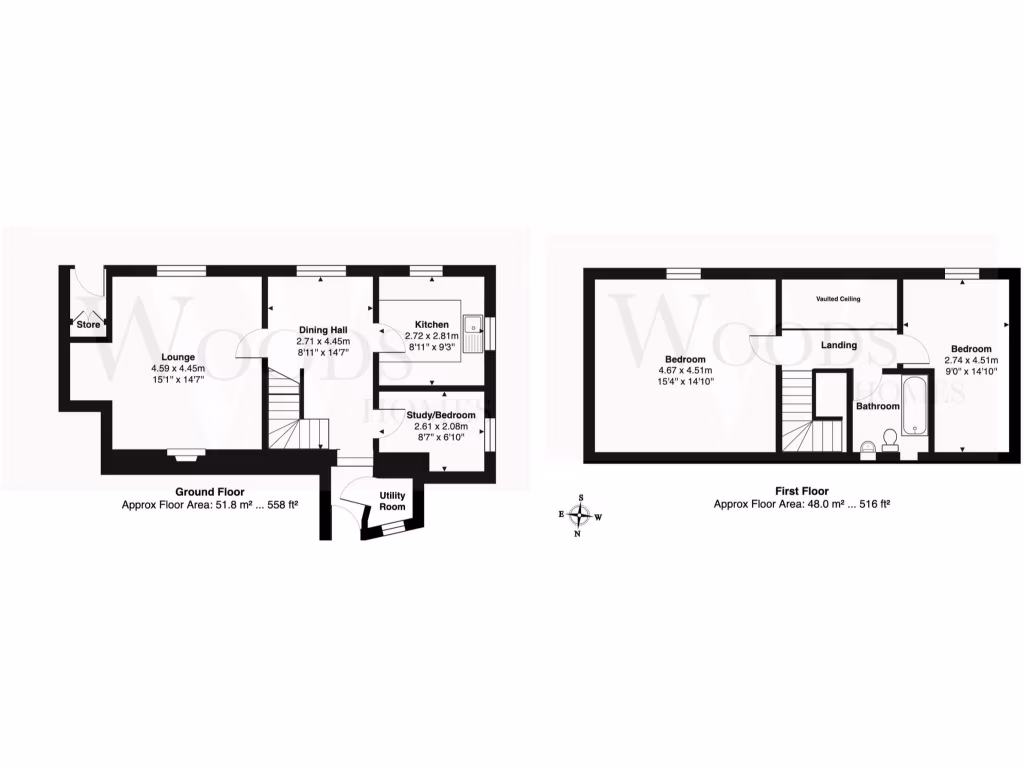
Chapel Cottage is a distinctive thatched village home, converted from a chapel and recently refreshed to blend period character with modern comforts. Exposed beams, oak doors and a galleried landing give the house strong historic charm, while recent works — including a new boiler, redecorated interiors, new flooring and a fitted shaker-style kitchen with integrated appliances — make the layout ready for everyday living.
Arranged over two floors, the house offers flexible living: a welcoming galleried dining hall, a generous living room with rear porch, a ground-floor bedroom that also works well as a study, and two double bedrooms upstairs. The single family bathroom serves the home; both first-floor rooms have high ceilings and good natural light. At about 1,074 sq ft the property feels well-proportioned for its size.
Outside, the small courtyard garden provides a quiet, low-maintenance outdoor space ideal for pots and a seating area rather than extensive gardening. The setting in central Kingskerswell places shops, pubs, schools and countryside within easy reach, with very low local crime, excellent mobile signal and fast broadband supporting homeworking and family life.
Buyers should note practical considerations: the property has a thatched roof which typically requires specialist maintenance and may affect insurance and running costs. There is a medium flood risk for the location and only one family bathroom, so some purchasers may want to factor in additional insurance or modest adaptations. Sold freehold and chain free, the cottage presents a rare, characterful opportunity for buyers seeking a village home with updated services and genuine period appeal.
3 bedroom detached house for sale in School Road, Kingskerswell, Newton Abbot, TQ12 — £375,000 • 3 bed • 2 bath • 1195 ft²
3 bedroom detached house for sale in Chudleigh Knighton, Chudleigh, Newton Abbot, Devon, TQ13 — £290,000 • 3 bed • 2 bath • 815 ft²
2 bedroom character property for sale in The Chapel, Harbertonford, Totnes, Devon, TQ9 — £395,000 • 2 bed • 2 bath • 782 ft²
3 bedroom semi-detached house for sale in Stokeinteignhead, Devon, TQ12 — £450,000 • 3 bed • 2 bath • 1469 ft²
4 bedroom detached house for sale in Combeinteignhead, Newton Abbot, Devon, TQ12 — £650,000 • 4 bed • 3 bath • 1995 ft²
1 bedroom cottage for sale in Totnes Road, Paignton, TQ4 — £210,000 • 1 bed • 1 bath • 541 ft²






























































