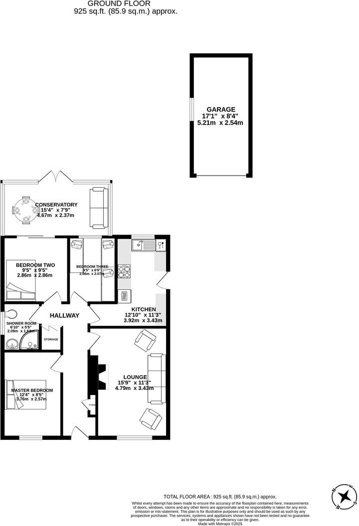
**Standout Features:**
- Three-bedroom detached bungalow
- Chain-free sale
- Private driveway and single detached garage
- Spacious rear garden with patio and pond
- Bright conservatory
- Convenient access to local amenities and transport links
- EPC Rating C
This charming three-bedroom detached bungalow is nestled in the tranquil village of Hoghton, offering the perfect blend of comfort and practicality for families or retirees. With approximately 925 sq. ft. of living space, this single-storey gem features a generous lounge with a fireplace, a modern kitchen equipped with integrated appliances, and three well-sized bedrooms—one boasting fitted wardrobes, ideal for a dressing room. The elegant three-piece shower room complements the layout, with a lovely conservatory at the rear providing a bright space to relax while enjoying garden views.
The exterior invites with a beautifully manicured front garden and a private driveway leading to a single garage. The expansive rear garden is perfect for outdoor enthusiasts, featuring a patio, tranquil pond, and an array of mature greenery, ensuring a peaceful retreat. Located close to local amenities, excellent schools with 'Good' Ofsted ratings, and convenient transport links, this property won’t last long on the market. Experience the serenity and potential of this delightful bungalow before it's gone!
 3 bedroom bungalow for sale in Fowler Close, Hoghton, Preston, Lancashire, PR5 — £410,000 • 3 bed • 1 bath
 3 bedroom bungalow for sale in Fowler Close, Hoghton, Preston, Lancashire, PR5 — £410,000 • 3 bed • 1 bath 3 bedroom detached bungalow for sale in Rossall Close, Hoghton, Preston, PR5 — £279,950 • 3 bed • 2 bath • 1225 ft²
 3 bedroom detached bungalow for sale in Rossall Close, Hoghton, Preston, PR5 — £279,950 • 3 bed • 2 bath • 1225 ft² 2 bedroom bungalow for sale in Bankhead Lane, Hoghton, Preston, Lancashire, PR5 — £235,000 • 2 bed • 1 bath • 970 ft²
 2 bedroom bungalow for sale in Bankhead Lane, Hoghton, Preston, Lancashire, PR5 — £235,000 • 2 bed • 1 bath • 970 ft² 3 bedroom semi-detached bungalow for sale in Hillpark Avenue, Hoghton, PR5 — £200,000 • 3 bed • 1 bath • 995 ft²
 3 bedroom semi-detached bungalow for sale in Hillpark Avenue, Hoghton, PR5 — £200,000 • 3 bed • 1 bath • 995 ft² 2 bedroom bungalow for sale in Westfield Drive, Hoghton, Preston, PR5 0AT, PR5 — £265,000 • 2 bed • 2 bath • 1450 ft²
 2 bedroom bungalow for sale in Westfield Drive, Hoghton, Preston, PR5 0AT, PR5 — £265,000 • 2 bed • 2 bath • 1450 ft² 4 bedroom detached house for sale in Woodhall Crescent, Hoghton, Preston, PR5 — £300,000 • 4 bed • 1 bath • 1136 ft²
 4 bedroom detached house for sale in Woodhall Crescent, Hoghton, Preston, PR5 — £300,000 • 4 bed • 1 bath • 1136 ft²






















































































