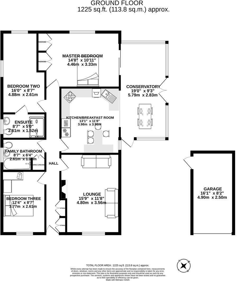
**Standout Features:**
- Three spacious bedrooms in a detached bungalow
- Quiet cul-de-sac location in Hoghton
- Generous garden space with a mix of paved areas and lawn for relaxation and entertaining
- Modern kitchen with integrated appliances and breakfast bar
- Bright conservatory offering views of the garden
- Off-road parking for up to four vehicles and a detached garage
**Notable Concerns:**
- Property built during 1967-1975, potential for modernization
- Cavity walls assumed to have no insulation
- Boiler and heating system depend on mains gas
Nestled in a tranquil cul-de-sac, this charming three-bedroom detached bungalow on Rossall Close in Hoghton offers an ideal canvas for couples seeking the comfort of single-storey living. Spanning approximately 1,225 square feet, this home features a welcoming hallway that connects a spacious, light-filled lounge, a multipurpose bedroom perfect for guests or as a home office, and a vibrant kitchen with modern amenities including a breakfast bar—ideal for casual dining.
The property shines with a generous garden that wraps around the side, providing an intimate retreat framed by mature hedging. The superb conservatory adds additional appeal, creating a serene space to enjoy the stunning outdoor views. With off-road parking for up to four vehicles and a detached garage for extra storage, convenience is at your fingertips. Located close to local amenities and excellent transport links, this property provides both comfort and accessibility. Though some modernization may be needed, the peaceful location, coupled with its potential for renovation, makes this bungalow a must-see for discerning buyers. Don’t miss the chance to own a slice of Hoghton living in this lovely home!
2 bedroom semi-detached bungalow for sale in Lydric Avenue, Hoghton, Preston, PR5 — £200,000 • 2 bed • 1 bath • 823 ft²
3 bedroom detached bungalow for sale in Grange Drive, Hoghton, Preston, PR5 — £227,500 • 3 bed • 1 bath • 925 ft²
2 bedroom bungalow for sale in Bankhead Lane, Hoghton, Preston, Lancashire, PR5 — £235,000 • 2 bed • 1 bath • 970 ft²
3 bedroom detached house for sale in Gregson Lane, Hoghton, Preston, PR5 — £409,950 • 3 bed • 2 bath • 1489 ft²
3 bedroom bungalow for sale in Fowler Close, Hoghton, Preston, Lancashire, PR5 — £410,000 • 3 bed • 1 bath
3 bedroom detached house for sale in Willow Close, Hoghton, Preston, Lancashire, PR5 — £280,000 • 3 bed • 1 bath


































































































