UB6 8JU - 3 bed spacious period family home in Barmouth Avenue, UB6 8…

View on Property Piper

3 bedroom terraced house for sale in Barmouth Avenue, Perivale, Greenford, UB6

Summary - 79 BARMOUTH AVENUE PERIVALE GREENFORD UB6 8JU

3 bed 2 bath Terraced

Three-bedroom terraced home with annex, modern kitchen and nearby top-rated schools.
Bay-front main bedroom with period character
Modern kitchen/diner with garden access
Self-contained annex suitable for guests or rental
Two contemporary bathrooms, reduces peak-time congestion
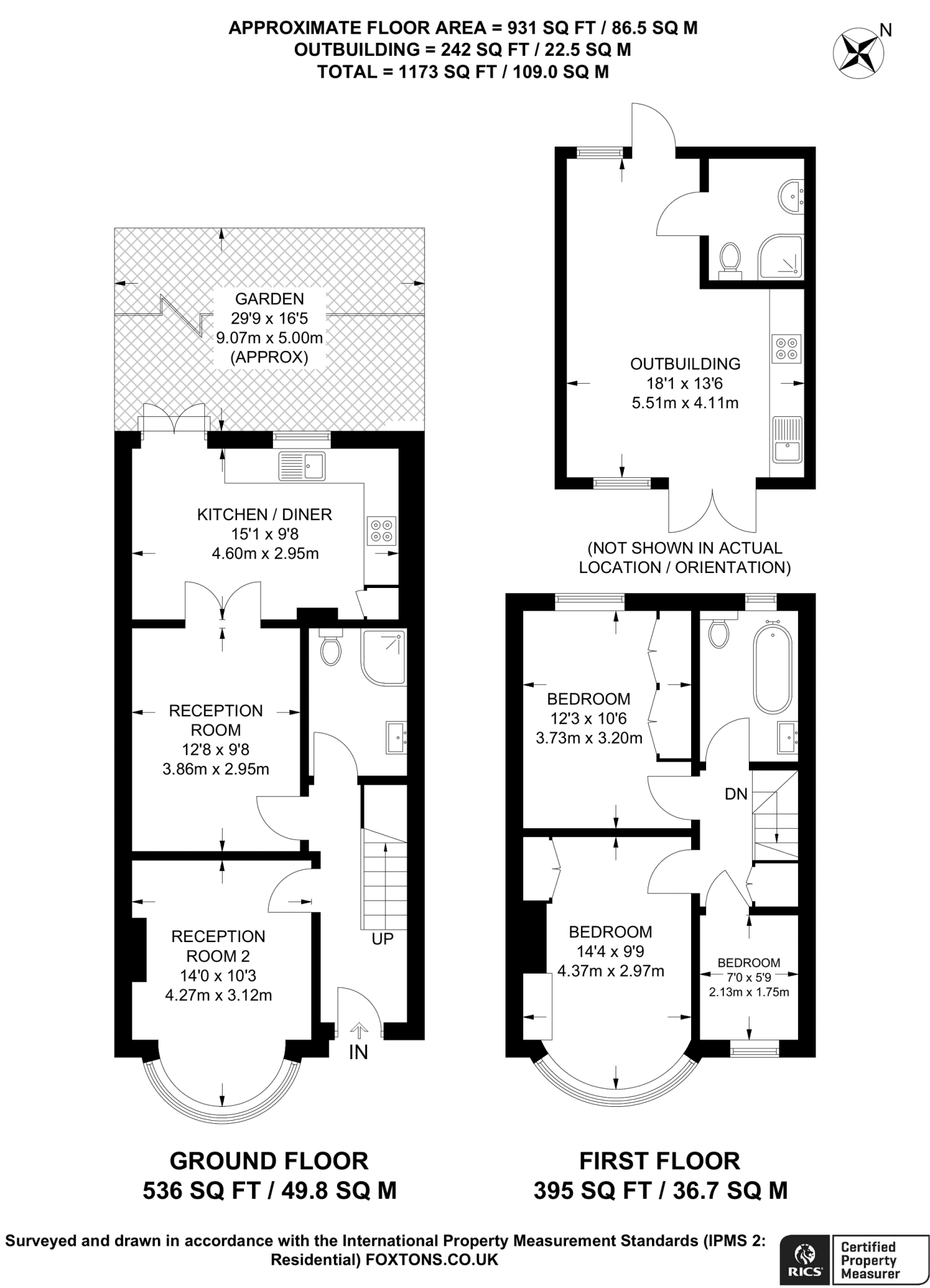
Freehold mid-terrace, approx. 1,173 sq ft
Small rear garden and overall small plot size
Higher-than-average local crime recorded
Cavity walls likely uninsulated; budget for insulation works
Set on a peaceful residential street in Perivale, this three-bedroom mid-terrace offers practical family living across multiple levels. The bay-front master bedroom and two bright reception rooms give a traditional 1930s home a spacious, welcoming feel. A modern kitchen/diner opens to a small rear garden, providing indoor–outdoor flow for everyday family use.

A self-contained annex adds useful flexibility — ideal for a home office, guest suite or potential rental annexe. Two contemporary bathrooms reduce morning congestion for a growing household. The property is freehold and totals approximately 1,173 sq ft, with double glazing and gas-fired central heating by boiler and radiators.

Buyers should be aware of a few material points: the area records higher-than-average crime levels, the plot is small, and the cavity walls are assumed to have been built without insulation. The house is a 1930s build; some buyers may wish to budget for upgrading wall insulation or other period-related maintenance. There is no flooding risk and transport, shops and several highly rated schools are within easy reach, supporting everyday family life.

Property Details

Image Descriptions

Floorplan Description

Rooms

Textual Property Features

Target Audience

AI Tags

Detected Visual Features

EPC Details

Nearby Schools

Nearest Bars And Restaurants

,,,,}

Nearest General Shops

,,}

Nearest Grocery shops

,,}

Nearest Supermarkets

,,}

Nearest Religious buildings

,,}

Nearest Medical buildings

,,,}

Nearest Airports

,}

Nearest Leisure Facilities

,,,,}

Nearest Tourist attractions

,,}

Nearest Train stations

,,,,}

Nearest Bus stations and stops

,,,,}

Nearest Hotels

,,}

Tags

Local Market Stats

AirBnB Data

Similar Properties

Meta

High Res Images

Compatible Images

Low res Images

Thumbnails

Raw Images

High Res Floorplan Images

Compatible Floorplan Images

Low res Floorplan Images

FloorplanImages Thumbnail

Raw Floorplan Images