**Standout Features:**
- Unique development opportunity in the heart of Port Isaac, Cornwall
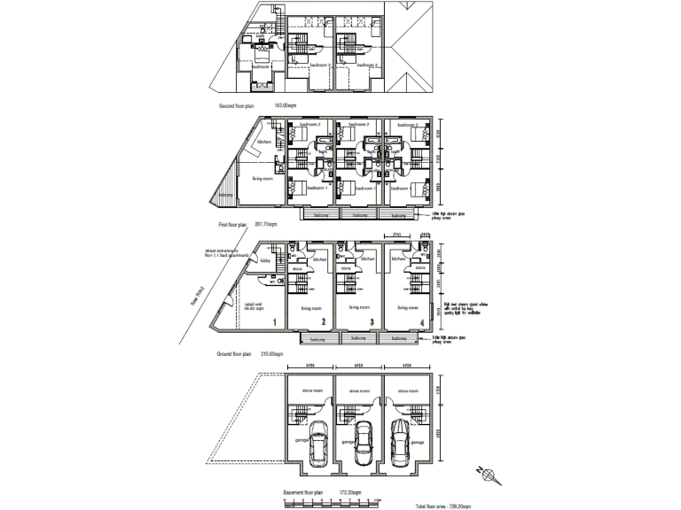
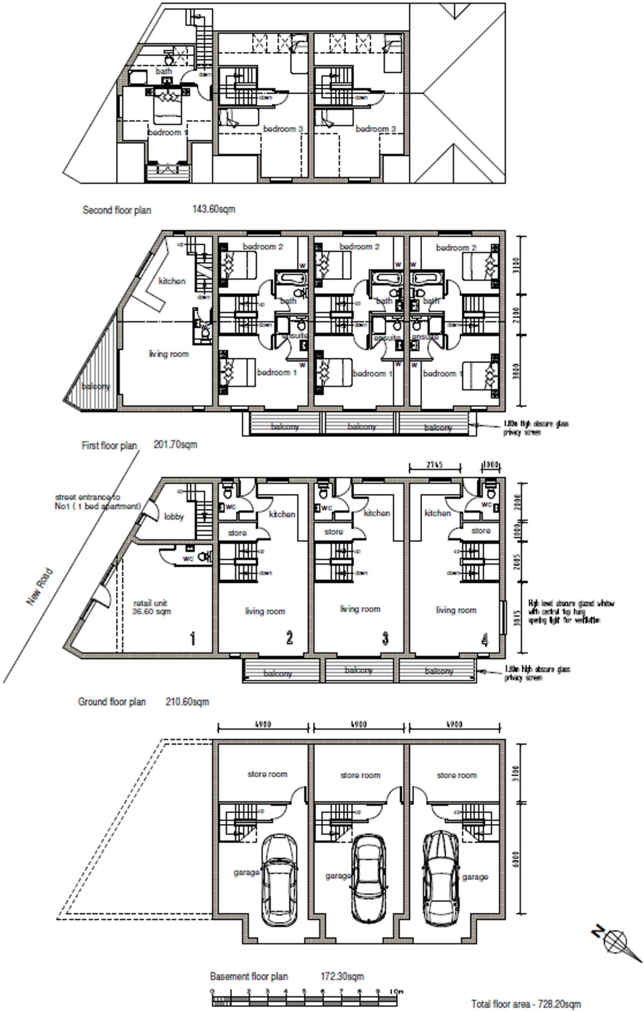
- Approved plans to demolish existing structure and build three townhouses, one apartment, and a retail unit
- Large freehold site of approximately 630 sq. metres with room for 8 vehicles
- Scenic views of the coast, located in a renowned tourist destination
- Previously used as guest accommodation with 22 rooms
**Summary:**
Discover an exceptional investment opportunity in the charming fishing village of Port Isaac, Cornwall. Set on a substantial freehold site of 630 sq. metres, this property comes with approved planning permission for demolishing the existing building and constructing three modern townhouses, an apartment, and a ground-floor retail unit. With stunning scenic views of the coastline, this site not only offers a lucrative project but also showcases the allure of a region famous for its picturesque streets and coastal beauty.
This prime location is just a short stroll from local amenities including boutique shops, traditional pubs, and Michelin-starred restaurants. Although the area boasts low crime rates and a vibrant community atmosphere, potential buyers should note that the existing structure requires demolition. With the opportunity to create something unique in a highly sought-after area, this is a rare find in a market where such parcels are hard to come by. Don't miss your chance to capture a slice of Cornish paradise; opportunities like this are not available for long.
Commercial development for sale in Land At Port Gaverne, Port Isaac, Cornwall, PL29 3SQ, PL29 — £80,000 • 1 bed • 1 bath • 16117 ft²
Land for sale in Mawgan Porth, Cornwall, TR8 4BY, TR8 — £1,000,000 • 1 bed • 1 bath
Land for sale in Mawgan Porth, Cornwall, TR8 4BY, TR8 — £1,000,000 • 1 bed • 1 bath
Plot for sale in 7 New Road, PL29 — £450,000 • 3 bed • 1 bath • 1276 ft²
20 bedroom terraced house for sale in Lusty Glaze Road, Newquay, Cornwall, TR7 — £1,750,000 • 20 bed • 30 bath • 10064 ft²
Plot for sale in Lusty Glaze Road, Newquay, Cornwall, TR7 — £1,750,000 • 20 bed • 1 bath • 10064 ft²






























