Well-located family home with garage and garden, close to Eden Park station.
Three bedrooms with two generous reception rooms
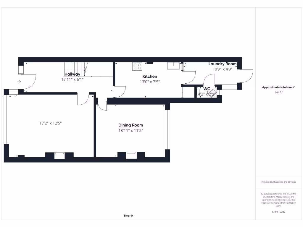
A traditional three-bedroom mid-terrace in Beckenham offering spacious family living across two reception rooms and a private garden. The house retains period character with a red brick bay front and large front window, and benefits from a private garage and handy utility room. Commuters will appreciate Eden Park station about 0.7 miles away, with fast connections into central London.
The accommodation is practical now but shows scope for improvement and modernisation — the property has an EPC rating of D, solid brick walls likely without insulation, and standard mid-century fixtures. There is significant potential to extend subject to planning (STPP), so buyers seeking to add value or create more internal space will find opportunity here. The layout includes a ground-floor WC and separate utility, useful for family life.
Be mindful of local factors: council tax is band E (above average) and the wider area records higher crime and measures of deprivation than surrounding suburbs. For buyers who prioritise location, school access is strong with several ‘Good’ rated primary and secondary schools nearby. Overall, this home suits growing families or investors planning a renovation who want a well-located, characterful property with expansion potential.
3 bedroom end of terrace house for sale in Clock House Road, Beckenham, BR3 — £550,000 • 3 bed • 1 bath • 945 ft²
3 bedroom end of terrace house for sale in Aviemore Way, Beckenham, BR3 — £600,000 • 3 bed • 1 bath • 1049 ft²
3 bedroom terraced house for sale in Wellhouse Road, Beckenham, BR3 — £775,000 • 3 bed • 1 bath • 1134 ft²
3 bedroom terraced house for sale in Upper Elmers End Road, Beckenham, BR3 — £560,000 • 3 bed • 1 bath • 1277 ft²
3 bedroom end of terrace house for sale in Crossways Road, Beckenham, BR3 — £625,000 • 3 bed • 1 bath • 962 ft²
3 bedroom terraced house for sale in Aviemore Way, Beckenham, BR3 — £560,000 • 3 bed • 1 bath • 903 ft²


























































