Cleared freehold plot with planning for a 4/5-bed family home in sought village..
- Full planning permission for a 4/5 bedroom detached family home
- Freehold vacant plot, level and fenced, ready for development
- Quiet semi-rural village location with riverside and countryside walks
- Nearby amenities, golf course and local shops within easy reach
- Site small-to-medium; suited to a single dwelling, not large grounds
- Utilities appear present but buyer must confirm connections and capacity
- Slow broadband and average mobile signal; consider connectivity upgrades
- Nearest state primary school currently rated "Requires improvement"
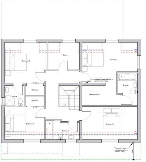
A rare, cleared building plot in the heart of Sturminster Marshall with Full Planning Permission (P/FUL/2024/03562) for a 4/5-bedroom detached family home. The site sits on quiet Back Lane with immediate access to riverside and countryside walks, local shops, a golf course and village amenities. The plot is level and fenced, with neighbouring detached houses on three sides, making it a straightforward infill development within an established village setting.
This is a practical purchase for a family wanting a bespoke home close to village life, or for a developer seeking a single-dwelling project with planning in place. The plot is freehold and benefits from low flood and crime risk. Visible service covers suggest utilities may be nearby, but buyers should confirm connections and capacity before exchange.
Buyers should note a few material points: the site is small-to-medium in size suitable for a single dwelling rather than extensive grounds; broadband speeds are slow and mobile signal is average; and the nearest state primary (Sturminster Marshall First School) currently has an Ofsted rating of "Requires improvement." These factors may influence lifestyle expectations and should be factored into planning for finishes and home working infrastructure.
Overall, this is a convenient semi-rural opportunity to build a family home in a popular village location. With planning permission already granted and pleasant local walks on the doorstep, the plot offers immediate development potential subject to final utility checks and the buyer's design choices.
Land for sale in Three Cross Road, West Moors, Wimborne, Dorset, BH21 — £350,000 • 1 bed • 1 bath • 1430 ft²
Land for sale in Charlton Marshall, Blandford Forum, Dorset, DT11 — £1,300,000 • 1 bed • 1 bath • 4500 ft²
Plot for sale in Dorchester Road, Lytchett Minster, Poole, BH16 — £235,000 • 4 bed • 2 bath • 1600 ft²
Plot for sale in Wimborne Road, Blandford Forum, DT11 — £225,000 • 1 bed • 1 bath • 2800 ft²
Land for sale in Three Cross Road, West Moors, Wimborne, Dorset, BH21 — £350,000 • 1 bed • 1 bath • 22651 ft²
3 bedroom semi-detached house for sale in Townsend, Sturminster Marshall, Wimborne, BH21 — £450,000 • 3 bed • 1 bath • 1084 ft²


































