Almost an acre with planning consent for a substantial single‑storey home — ready for site clearance.
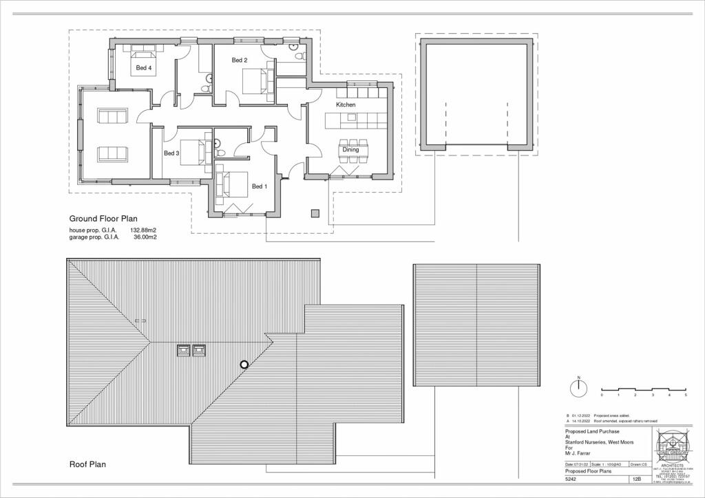
Planning consent granted for 1,430 sq ft bungalow plus 387 sq ft garage
Plot size 0.92 acre — unusually large single building plot
Freehold tenure; no recorded flood risk and very low local crime
Site has overgrown, derelict outbuildings needing demolition and clearance
Semi‑rural location with fast broadband and excellent mobile signal
Close to good schools and local amenities; accessible by road and bus
Buyers must confirm planning conditions and allow for site prep costs
Asking price £350,000 — investment or owner‑builder opportunity
This is a rare single building plot of 0.92 acre in a semi‑rural setting with full planning consent (Dorset Council ref: P/FUL/2023/00234) to demolish the existing structures and build a single‑storey dwelling (1,430 sq ft GIA) plus a 387 sq ft garage. The site sits close to West Moors and local amenities, with fast broadband, excellent mobile signal and very low crime — practical for a permanent home or a high‑value rural development.
The land is largely overgrown with derelict outbuildings and will require full site clearance and demolition before construction. Buyers should allow for site preparation costs and statutory connections. Planning consent is granted, reducing planning risk, but all buyers must verify compliance conditions and any pre‑commencement requirements with Dorset Council.
At the asking price of £350,000 the plot offers substantial scope: a large footprint for a single‑storey dwelling, generous private grounds and opportunity to capitalise on countryside living near good local schools. The location is semi‑rural yet accessible — useful for downsizers seeking a single‑level home or investors aiming to deliver a ready‑to‑build residence to market.
Practical details: freehold tenure, no flood risk recorded, and helpful local infrastructure (bus links, water supply). The existing buildings are untended and uninhabitable; purchasers should budget for demolition, drainage checks and connection works. Verify council conditions attached to P/FUL/2023/00234 before exchange.
Land for sale in Three Cross Road, West Moors, Wimborne, Dorset, BH21 — £350,000 • 1 bed • 1 bath • 22651 ft²
Land for sale in Uddens Drive, Wimborne, BH21 — £140,000 • 1 bed • 1 bath
Plot for sale in Back Lane, Sturminster Marshall, Wimborne, BH21 — £300,000 • 5 bed • 1 bath
3 bedroom bungalow for sale in New Road, West Parley, Ferndown, BH22 — £650,000 • 3 bed • 1 bath • 805 ft²
Detached house for sale in Linford Road, Shobley, Ringwood, BH24 — £295,000 • 1 bed • 1 bath
Land for sale in Chalbury Lane, Horton, BH21 — £100,000 • 1 bed • 1 bath


































