Spacious Victorian garden flat with private entrance and sunny rear garden — ideal for families.
• Large private rear garden with sunny aspect
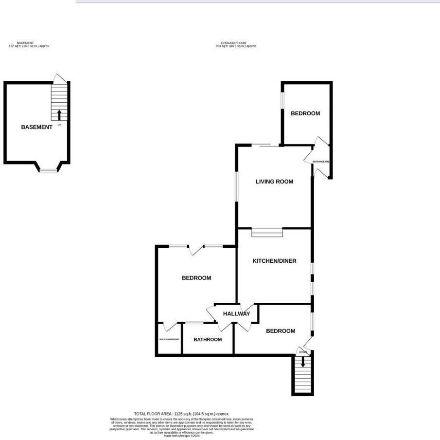
• Private entrance, large cellar and garage parking
• 15ft living room; high ceilings and period features
• Share of freehold; ~118 years remaining on lease
• Double glazing and mains gas boiler heating
• Solid brick walls likely uninsulated — insulation needed
• Area shows above-average crime and local deprivation
• Small annual fee (~£25) for garden access
This spacious ground-floor Victorian garden flat combines period character with generous living space and a large, sunny private rear garden. High ceilings, a 15ft living room and a sizeable kitchen-diner make the flat well suited to family life or buyers seeking roomy, flexible accommodation. The property includes a private entrance, cellar storage and a garage for parking.
The flat is sold with a share of freehold and around 118 years remaining on the lease, giving long-term security. Practical features include double glazing, mains gas central heating with a boiler and radiators, and a low council tax band B. There is a small annual residents’ fee (around £25) for access to St Matthews Gardens.
Buyers should note this is an older solid-brick building (constructed before 1900) and walls are assumed uninsulated; further insulation or energy-efficiency works may be desirable. The area shows higher-than-average crime rates and local deprivation indicators, which may concern some purchasers. Maintenance of communal elements is on an as-and-when basis.
Overall this is a characterful, well-proportioned flat with substantial outdoor space and practical benefits for families or those seeking a roomy, period ground-floor home. It presents immediate liveability with scope for modest improvements to increase comfort and efficiency.
1 bedroom flat for sale in London Road, St. Leonards-On-Sea, TN37 — £250,000 • 1 bed • 1 bath • 722 ft²
2 bedroom flat for sale in Pevensey Road, St. Leonards-On-Sea, TN38 — £325,000 • 2 bed • 1 bath • 888 ft²
2 bedroom flat for sale in Hollington Park Road, St. Leonards-On-Sea, TN38 — £360,000 • 2 bed • 2 bath • 871 ft²
2 bedroom apartment for sale in Warrior Gardens, St. Leonards-On-Sea, TN37 — £285,000 • 2 bed • 1 bath • 591 ft²
2 bedroom flat for sale in Magdalen Road, St. Leonards-On-Sea, TN37 — £195,000 • 2 bed • 1 bath • 668 ft²
2 bedroom flat for sale in Dane Road, St. Leonards-On-Sea, TN38 — £300,000 • 2 bed • 1 bath • 786 ft²














































































































