Contemporary family home with garage, garden and open-plan living.
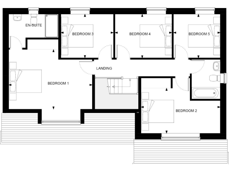
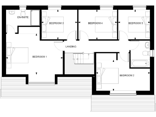
5 double bedrooms including master with en-suite
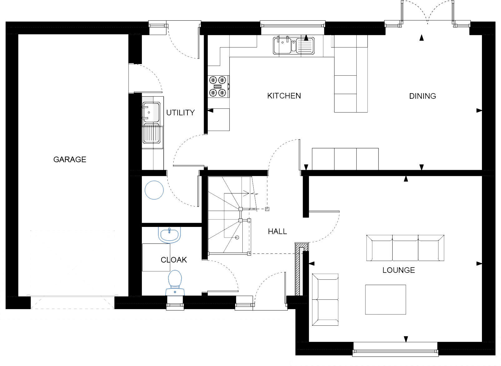
A spacious five-bedroom detached new-build designed for family living, set on a decent private plot with turfed front and rear gardens. The ground floor centres on a large kitchen/diner/family room with French doors to the patio, a separate lounge, utility with garage access and a convenient cloakroom. Upstairs, a galleried landing leads to five double bedrooms, including a master with en-suite and a luxury family bathroom.
Built to modern standards, the home includes cavity and loft insulation, smoke detectors and multipoint locks. The property is freehold and offers a single garage plus parking for two cars — practical for multiple-vehicle households. At about 1,617 sq ft, the house provides family-sized rooms without excessive upkeep.
Buyers should note important local and transactional considerations. The area records a very high crime rate and is classified as deprived, which may affect insurance premiums and resale prospects. A refundable reservation fee of £500 applies to reserve the plot, and some marketing images may show finishes from other plots of the same house type; purchasers should confirm exact specifications before contract.
This home will suit growing families seeking contemporary, low-maintenance accommodation and good nearby schools. It offers immediate move-in potential as a new-build, with straightforward layout and outdoor space for children and pets, but buyers sensitive to local crime statistics or seeking a high-investment-growth area should weigh those factors carefully.
5 bedroom detached house for sale in Church Farm Road, Ripley,
Derbyshire,
DE5 3TT, DE5 — £450,000 • 5 bed • 2 bath • 1531 ft²
5 bedroom detached house for sale in Church Farm Road, Ripley,
Derbyshire,
DE5 3TT, DE5 — £460,000 • 5 bed • 2 bath • 1531 ft²
4 bedroom detached house for sale in Church Farm Road, Ripley,
Derbyshire,
DE5 3TT, DE5 — £400,000 • 4 bed • 2 bath • 1234 ft²
4 bedroom detached house for sale in Church Farm Road, Ripley,
Derbyshire,
DE5 3TT, DE5 — £395,000 • 4 bed • 2 bath • 1234 ft²
5 bedroom detached house for sale in Belfry Way, Ripley, DE5 — £440,000 • 5 bed • 2 bath • 1723 ft²
4 bedroom detached house for sale in Church Farm Road, Ripley,
Derbyshire,
DE5 3TT, DE5 — £415,000 • 4 bed • 2 bath • 1383 ft²


















