New energy-efficient four-bedroom home with garage and driveway for modern family life.
Corner plot in executive development with decent-sized garden
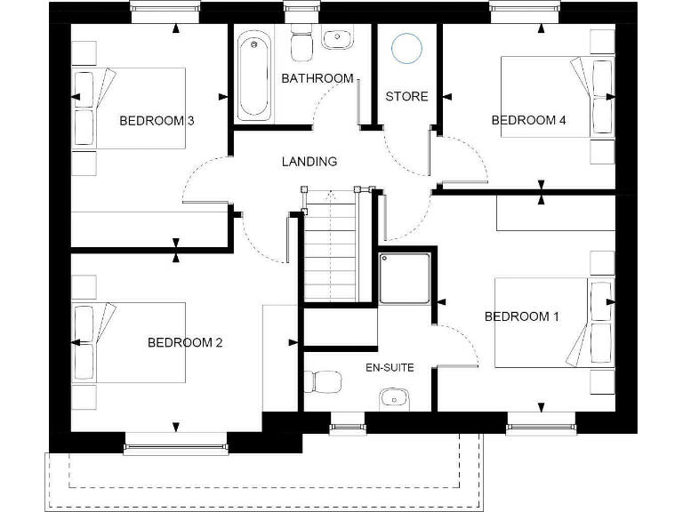
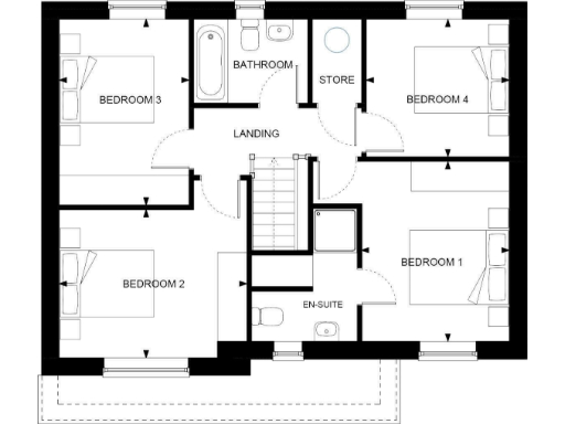
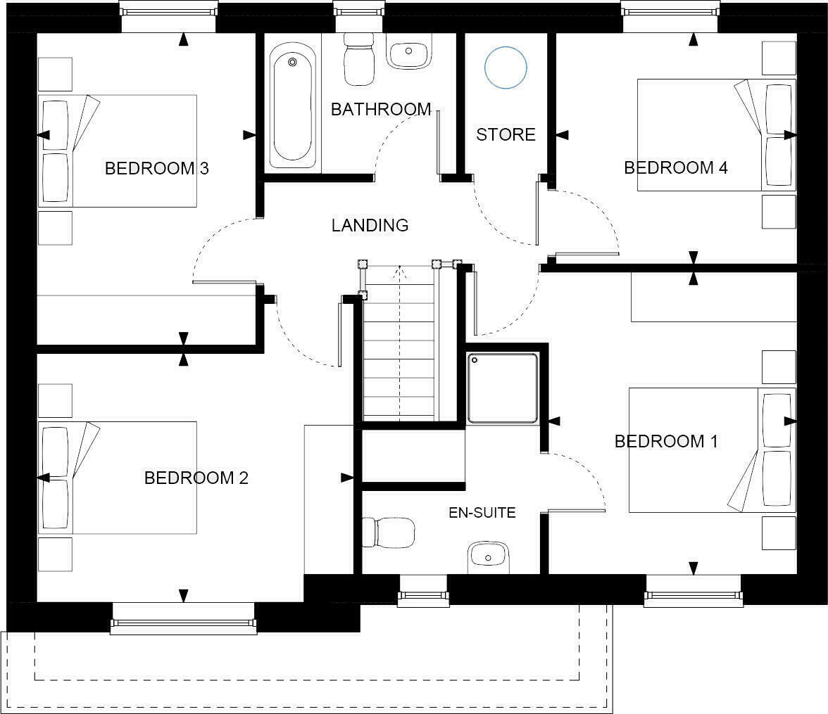
Plot 206 The Fairbank is a new-build four-bedroom detached home on a corner plot within a gated executive-style development. The house is finished to a high energy-efficiency specification with cavity and loft insulation, double glazing, low-energy lighting and an efficient heating system. Built ready to occupy, this home includes integrated kitchen appliances, flooring throughout, a single garage and driveway for two cars.
Downstairs offers a double-aspect lounge and a large open-plan kitchen/diner/family room with island and patio doors to a fully turfed, sunny and fully fenced garden. A utility and cloakroom add practical convenience. Upstairs provides four generous bedrooms, an en-suite to the master and a family bathroom — suitable for families needing space and storage.
Safety features include an intruder alarm, smoke detectors and multipoint locks. Buyers should note a £500 reservation fee applies. The development sits in an area with very high recorded crime and local deprivation indicators; prospective purchasers should factor local safety and insurance implications into their decision.
This property will suit buyers seeking a contemporary, low-maintenance family home with energy-efficient running costs and immediate occupation — but those sensitive to local crime statistics or seeking a secluded rural location may prefer to view nearby alternatives first.
5 bedroom detached house for sale in Church Farm Road, Ripley,
Derbyshire,
DE5 3TT, DE5 — £460,000 • 5 bed • 2 bath • 1531 ft²
4 bedroom detached house for sale in Church Farm Road, Ripley,
Derbyshire,
DE5 3TT, DE5 — £395,000 • 4 bed • 2 bath • 1234 ft²
5 bedroom detached house for sale in Church Farm Road, Ripley,
Derbyshire,
DE5 3TT, DE5 — £455,000 • 5 bed • 2 bath • 1617 ft²
4 bedroom detached house for sale in Church Farm Road, Ripley,
Derbyshire,
DE5 3TT, DE5 — £400,000 • 4 bed • 2 bath • 1234 ft²
4 bedroom detached house for sale in Off Moor Road,
Bestwood Village
Nottingham,
NG6 8ZQ, NG6 — £455,000 • 4 bed • 2 bath • 1414 ft²
5 bedroom detached house for sale in Copthorne Drive, Alfreton, Alfreton, DE55 — £549,950 • 5 bed • 4 bath • 2210 ft²


















































































































































































