Immaculate, characterful three-bedroom home with garden and driveway.
Three good-sized bedrooms and two separate reception rooms
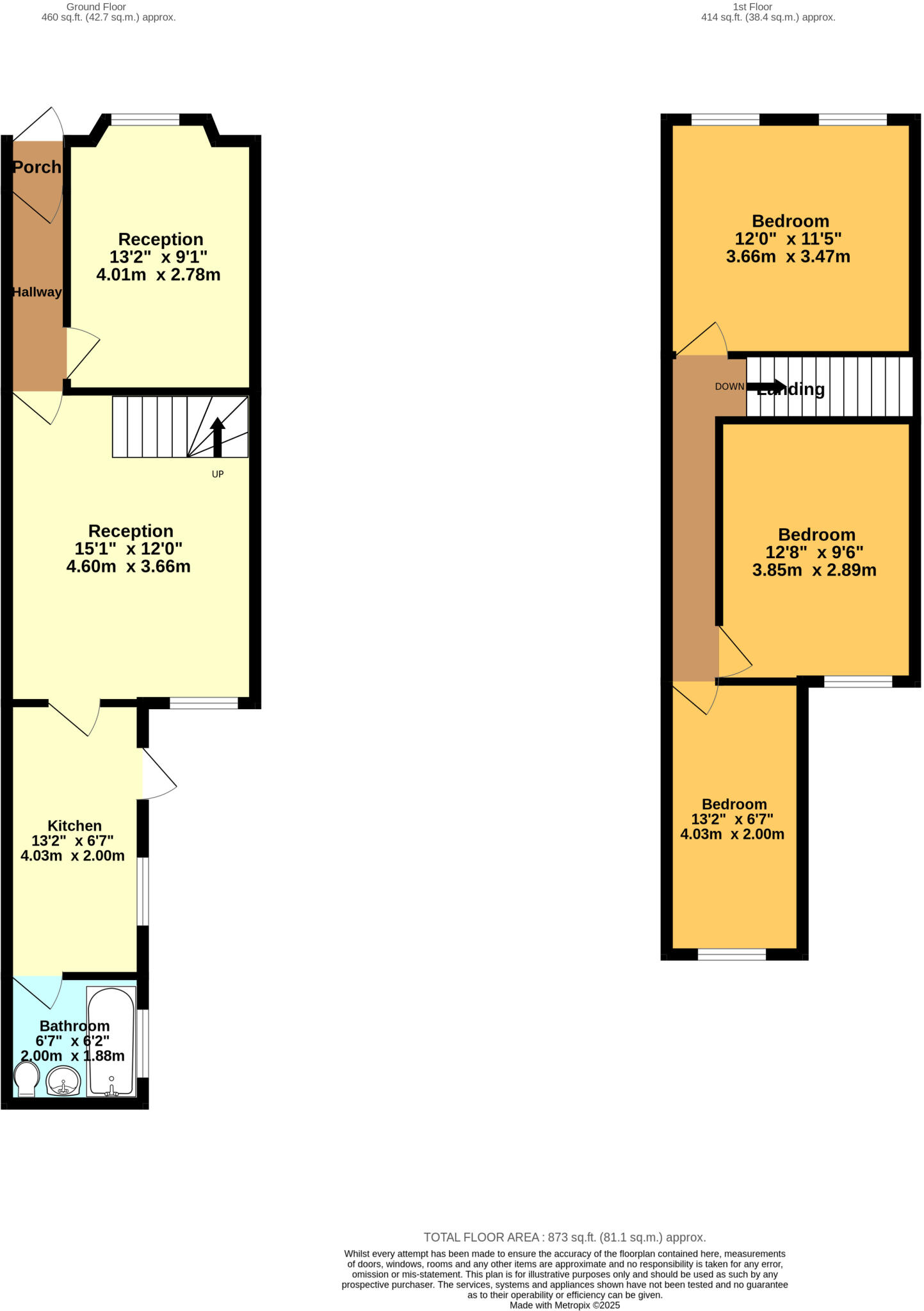
This Edwardian end-terrace offers three good-sized bedrooms and two separate reception rooms across an average-sized 873 sq ft layout, ideal for growing families. High ceilings and original features give the home character, while recent modern touches in the kitchen and well-presented rooms make it move-in ready. Off-street parking and a private garden add practical outdoor space on a small plot.
Practical details suit everyday life: freehold tenure, mains gas boiler with radiators, double glazing (install date unknown) and loft storage accessed by ladder. The property has a single family bathroom and an EPC rating of E. Broadband speeds are fast and mobile signal is excellent, supporting remote working and family connectivity.
Location offers local schools (several rated Good) and nearby shops, parks and bus links, but the area records above-average crime and higher-than-average council tax. The house sits in a more deprived ward, which may concern some buyers but can also mean good value and rental demand for investors.
Buyers should note the solid brick construction (likely uninsulated) and the EPC band E; insulation and energy-efficiency improvements could be worthwhile investments. Overall, the home blends period charm and practical modern living—suitable for families, first-time buyers, or investors seeking a well-kept terrace with renovation upside.
3 bedroom semi-detached house for sale in Bleak Hill Road, Birmingham, B23 7EJ, B23 — £240,000 • 3 bed • 1 bath • 1054 ft²
3 bedroom semi-detached house for sale in Milverton Road, BIRMINGHAM, B23 — £280,000 • 3 bed • 1 bath • 944 ft²
3 bedroom semi-detached house for sale in Crowther Road, Birmingham, B23 — £220,000 • 3 bed • 2 bath • 799 ft²
3 bedroom terraced house for sale in Marsh Lane, Birmingham, B23 — £210,000 • 3 bed • 1 bath • 799 ft²
3 bedroom semi-detached house for sale in 156 Court Lane, Birmingham, B23 5RG, B23 — £250,000 • 3 bed • 1 bath • 924 ft²
3 bedroom semi-detached house for sale in Bucklands End Lane, Birmingham, West Midlands, B34 — £300,000 • 3 bed • 1 bath • 1026 ft²










































































































