Comfortable family starter home with garden and parking close to schools.
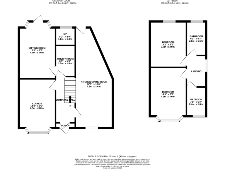
3 bedrooms with two reception rooms and an extended kitchen
Freehold property approximately 1,026 sq ft total space
Small, low-maintenance garden with patio for outdoor use
Off-street gravel driveway provides private parking space
Single family bathroom; only one bathroom for three bedrooms
Exterior requires slight touch-ups; some updating likely needed
Area shows high crime levels and higher local deprivation
Fast broadband and excellent mobile signal; convenient connectivity
This three-bedroom, semi-detached home offers practical family living across two storeys with about 1,026 sq ft of space. The layout includes two reception rooms, an extended kitchen with utility, ground-floor WC and one family bathroom — convenient for everyday life and entertaining. Off-street parking and a small, low-maintenance garden with a patio add useful outdoor space.
The property is freehold and sits in a well-connected part of Birmingham with fast broadband and excellent mobile signal. Local schools include several rated Good by Ofsted, which will suit families with primary and secondary children. The house is an average-sized post-war build with typical ceiling heights and simple, modern finishes throughout.
Buyers should note a few material considerations: the area records higher crime rates and general deprivation, which will influence local amenities and resale perceptions. The plot is small and the property exterior needs slight touch-ups; internal modernisation beyond cosmetic updating may be required if a buyer wants a fully contemporary finish. There is only one bathroom for three bedrooms.
At a £300,000 guide, this home is well-suited to families or first-time buyers seeking a straightforward, freehold starter home with good digital connectivity and nearby schools, and to purchasers willing to invest modestly in external maintenance and interior updates.
3 bedroom end of terrace house for sale in Kelynmead Road, Birmingham, West Midlands, B33 — £200,000 • 3 bed • 1 bath • 707 ft²
3 bedroom semi-detached house for sale in Heath Way, Hodge Hill, Birmingham, B34 — £300,000 • 3 bed • 1 bath • 1064 ft²
3 bedroom semi-detached house for sale in Wyndhurst Road, Birmingham, West Midlands, B33 — £280,000 • 3 bed • 2 bath • 956 ft²
3 bedroom semi-detached house for sale in Alvechurch Road, Birmingham, West Midlands, B31 — £290,000 • 3 bed • 2 bath • 953 ft²
3 bedroom end of terrace house for sale in Queslett Road, Birmingham, B43 — £240,000 • 3 bed • 1 bath • 639 ft²
3 bedroom end of terrace house for sale in 9 Kew Close, Birmingham, B37 — £225,000 • 3 bed • 1 bath • 793 ft²






























































