**Standout Features:**
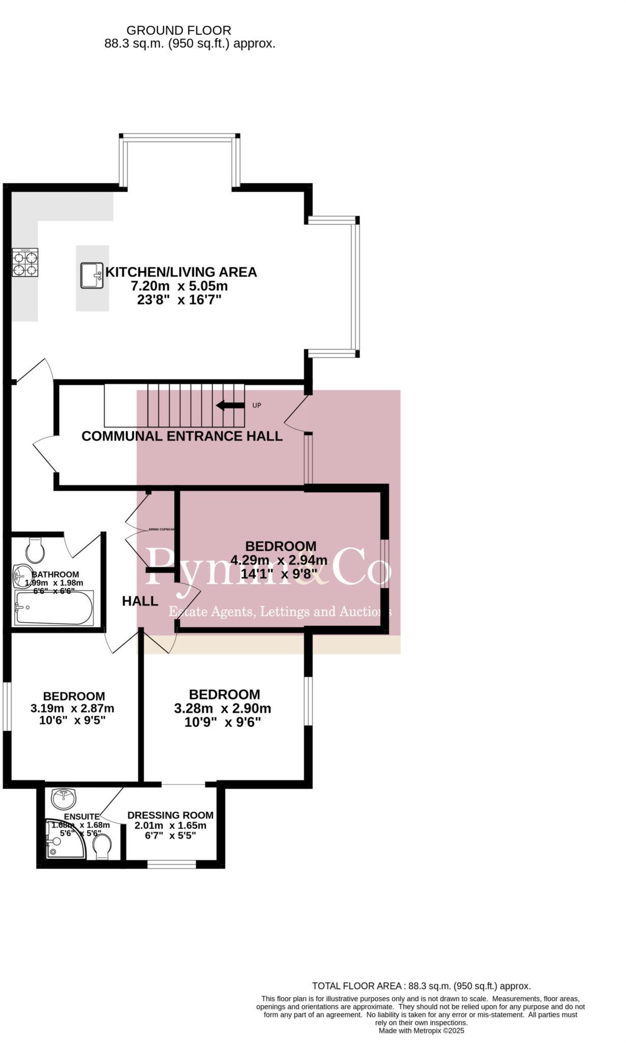
- Elegant three-bedroom ground floor apartment with 950 sqft of refined living space.
- Expansive open-plan lounge/kitchen/diner with dual bay windows providing a bright ambiance.
- Luxurious master bedroom with private en-suite shower room and walk-in dressing area.
- Sleek family bathroom finished to a high standard.
- Contemporary kitchen with integrated Zanussi appliances and carbon steel worktops; Porcelanosa tiling adds modern aesthetic.
- Allocated off-road parking and beautifully landscaped communal gardens.
- Ideal location: short walk to Sheringham's beach, shops, cafes, and scenic woodland walks.
- No onward chain; GUIDE PRICE £360,000-£375,000.
This stunning, ground floor three-bedroom apartment in the sought-after coastal town of Sheringham presents a unique opportunity for discerning buyers or families. With sleek finishes and inviting interiors, the open-plan design promotes a warm and sociable atmosphere perfect for modern living. The standout master suite offers the luxury of a private en-suite and an expansive dressing area, adding a touch of elegance. High ceilings throughout amplify the feeling of space and light, creating a comfortable retreat.
While the property boasts impressive contemporary features such as energy-efficient windows and air source heat pumps, prospective buyers should consider the renovation potential for personalization. The well-kept communal gardens offer a peaceful escape, and the allocated off-road parking enhances convenience. Situated near local amenities and the scenic coastline, this apartment blends the best of town and coastal life in a friendly community. With no onward chain, you can swiftly embark on your new adventure—don’t miss out on this elegant offering which perfectly marries comfort and modern functionality!
2 bedroom apartment for sale in St Nicholas Place, Sheringham, NR26 — £375,000 • 2 bed • 2 bath • 974 ft²
3 bedroom apartment for sale in St Nicholas Place, Sheringham, NR26 — £325,000 • 3 bed • 2 bath • 1000 ft²
2 bedroom apartment for sale in The Boulevard, Sheringham, NR26 — £290,000 • 2 bed • 1 bath • 697 ft²
3 bedroom ground floor flat for sale in Sheringham, NR26 — £335,000 • 3 bed • 1 bath • 745 ft²
3 bedroom apartment for sale in Sheringham, NR26 — £160,000 • 3 bed • 1 bath • 923 ft²
3 bedroom flat for sale in Sheringham, NR26 — £230,000 • 3 bed • 2 bath • 979 ft²


















































































































