Quiet courtyard living near the beach and station for easy coastal days.
Newly refurbished throughout with modern kitchen and utilities
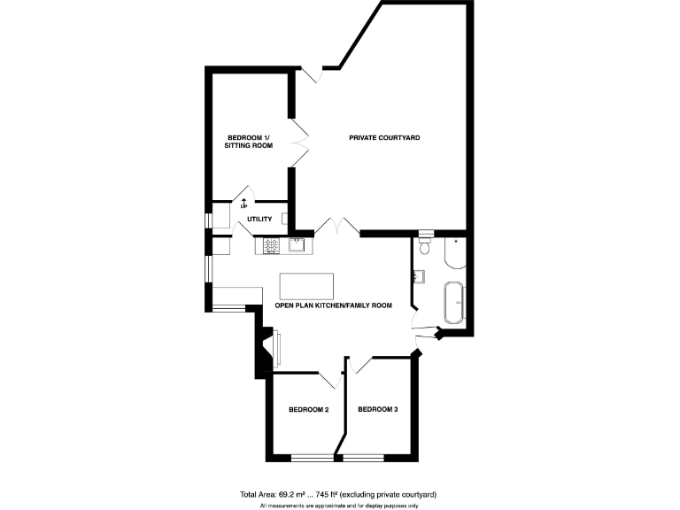
Set on the ground floor of an imposing Victorian building, this newly refurbished three-bedroom apartment blends period character with contemporary finishes. The open-plan kitchen/family room and exposed brickwork create an airy social hub, while French doors open to a private south-facing courtyard for outdoor sitting and easy access to the rear parking.
Ideal for downsizers seeking coastal convenience, the flat offers a generous communal front garden, off-street parking via Sadlers Lane and easy walking distance to Sheringham town centre, train station and Blue Flag beach. The layout includes a versatile main room that can serve as a sitting room or principal bedroom, plus two further bedrooms and a luxurious bathroom with a claw-foot bath.
The owners have completed a full refurbishment: new heating system, modern boiler and radiators, updated electrics, contemporary kitchen and utility fittings. The property comes with a share of the freehold on the balance of a long residential lease (approximately 983 years) and an annual service charge of £1,494 which includes buildings insurance.
Practical points to note: the apartment is modest in overall size (approximately 745 sq ft) and the Energy Performance is rated D. The lease contains a clause preventing holiday lets, which limits short-term rental income potential. These are offset by immediate move-in readiness and low council tax banding, making it a straightforward, low-hassle coastal home.
3 bedroom flat for sale in Sheringham, NR26 — £230,000 • 3 bed • 2 bath • 979 ft²
2 bedroom flat for sale in Sheringham, NR26 — £200,000 • 2 bed • 1 bath • 804 ft²
1 bedroom apartment for sale in Weybourne Road, Sheringham, NR26 — £150,000 • 1 bed • 1 bath • 581 ft²
1 bedroom ground floor flat for sale in Cliff Road, Sheringham, NR26 — £285,000 • 1 bed • 1 bath • 608 ft²
3 bedroom apartment for sale in Sheringham, NR26 — £210,000 • 3 bed • 1 bath • 1128 ft²
1 bedroom apartment for sale in Sheringham, NR26 — £100,000 • 1 bed • 1 bath • 399 ft²






































































