Popular village location with parking and scope to extend for growing families.
Bay-fronted dining room and large lounge with feature fireplace|Detached garage with rear driveway parking|Well-stocked front and rear gardens with open views|Side extension providing downstairs shower room and WC|Three bedrooms, one upstairs bathroom only|Chain-free sale, easy immediate move possible|Potential to extend further subject to planning permission|Cavity walls likely uninsulated — consider insulation work
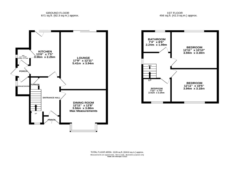
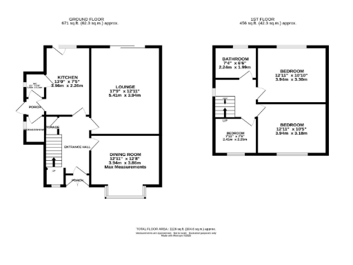
Set on a popular Highfield Road in Mellor, this 1930s three-bedroom semi offers well-proportioned living space and attractive, established gardens. The layout includes a bay-fronted dining room, large lounge with feature fireplace, breakfast kitchen and a rear extension that increases ground-floor living. A side extension provides a convenient downstairs shower room and WC.
Outside, a rear driveway leads to a detached garage and provides off-road parking. The lawned front and rear gardens are well stocked and enjoy open, far-reaching views. The house is chain-free and sits close to local amenities, good schools and transport links into Manchester.
The property has genuine potential to extend further (subject to planning) and will suit a family seeking village location with scope to personalise. Practical points: the home has a single main bathroom upstairs, double glazing of unknown age, cavity walls with no assumed insulation and an average overall size, so some modernisation and insulation upgrades may be desirable.
Overall, this is a characterful, period semi with useful outbuildings and parking, strong school and transport links, and clear scope to increase living space and value with updating or extension.
3 bedroom semi-detached house for sale in Moor End Road, Mellor, SK6 — £439,950 • 3 bed • 2 bath • 1489 ft²
4 bedroom semi-detached house for sale in Longhurst Lane, Mellor, SK6 — £699,950 • 4 bed • 2 bath • 1910 ft²
4 bedroom detached house for sale in , Moor End Road, Mellor, SK6 — £650,000 • 4 bed • 2 bath • 3500 ft²
3 bedroom terraced house for sale in Longhurst Lane, Mellor, SK6 — £485,000 • 3 bed • 1 bath • 711 ft²
5 bedroom semi-detached house for sale in Longhurst Lane, Mellor, Stockport SK6 — £899,950 • 5 bed • 2 bath • 2424 ft²
4 bedroom detached house for sale in 97 Longhurst Lane, Mellor, Stockport, SK6 — £850,000 • 4 bed • 1 bath • 1897 ft²


























































