**Standout Features:**
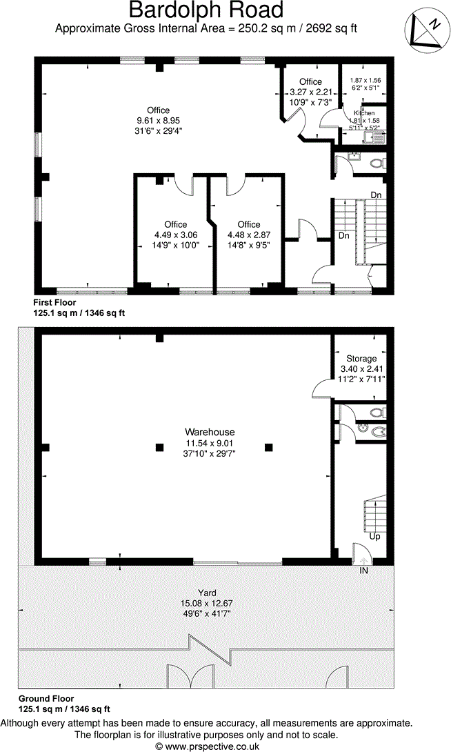
- Total size: 125 m² office space + 125 m² warehouse + 191 m² off-street parking and yard
- Freehold tenure with significant redevelopment potential
- Located in a thriving and affluent inner city area (TW9 2LH)
- Current layout includes office and warehouse spaces, with large windows for natural light
- Approximate dimensions: 22m x 15m; 9 rooms total
- Excellent location near high-performing schools and various amenities
**Summary:**
Explore this exceptional redevelopment opportunity in the highly sought-after TW9 2LH postcode, where urban growth is rapidly transforming the landscape. The current property comprises a large two-story building featuring both office (125 m²) and warehouse (125 m²) space, alongside an expansive 191 m² open yard and off-street parking. Future buyers will appreciate the immense potential for reimagining this property to suit a range of commercial or mixed-use applications, subject to the necessary planning approvals.
Nestled in an affluent area with excellent mobile and broadband connectivity, this prime site is perfectly positioned amid a vibrant community, boasting numerous amenities – from schools with outstanding Ofsted ratings to cafes and retail outlets. Whether you're a forward-thinking developer or an investor seeking a lucrative project, seize the chance to capitalize on this rapidly evolving urban locale while it lasts. Don’t miss out on shaping the future of this promising site!
Mixed use property for sale in 14 Bardolph Road, Richmond, London, TW9 — £1,500,000 • 1 bed • 1 bath • 2639 ft²
Warehouse for sale in Market Road, London, TW9 — £1,000,000 • 1 bed • 1 bath • 3277 ft²
Plot for sale in High Street, Brentford, TW8 — £3,000,000 • 1 bed • 1 bath • 1000 ft²
Plot for sale in Plough Lane, Teddington, TW11 — £695,000 • 1 bed • 1 bath • 3473 ft²
Commercial property for sale in Rear 86-88, The Green, Twickenham, TW2 5AG, TW2 — £75,000 • 1 bed • 1 bath • 1200 ft²
Light industrial facility for sale in 20 Bull Lane, Edmonton, Greater London, N18 — £2,700,000 • 1 bed • 1 bath • 9687 ft²






















