Ready-made rental income with garden annex and parking.
Freehold HMO with apparent five lettable rooms
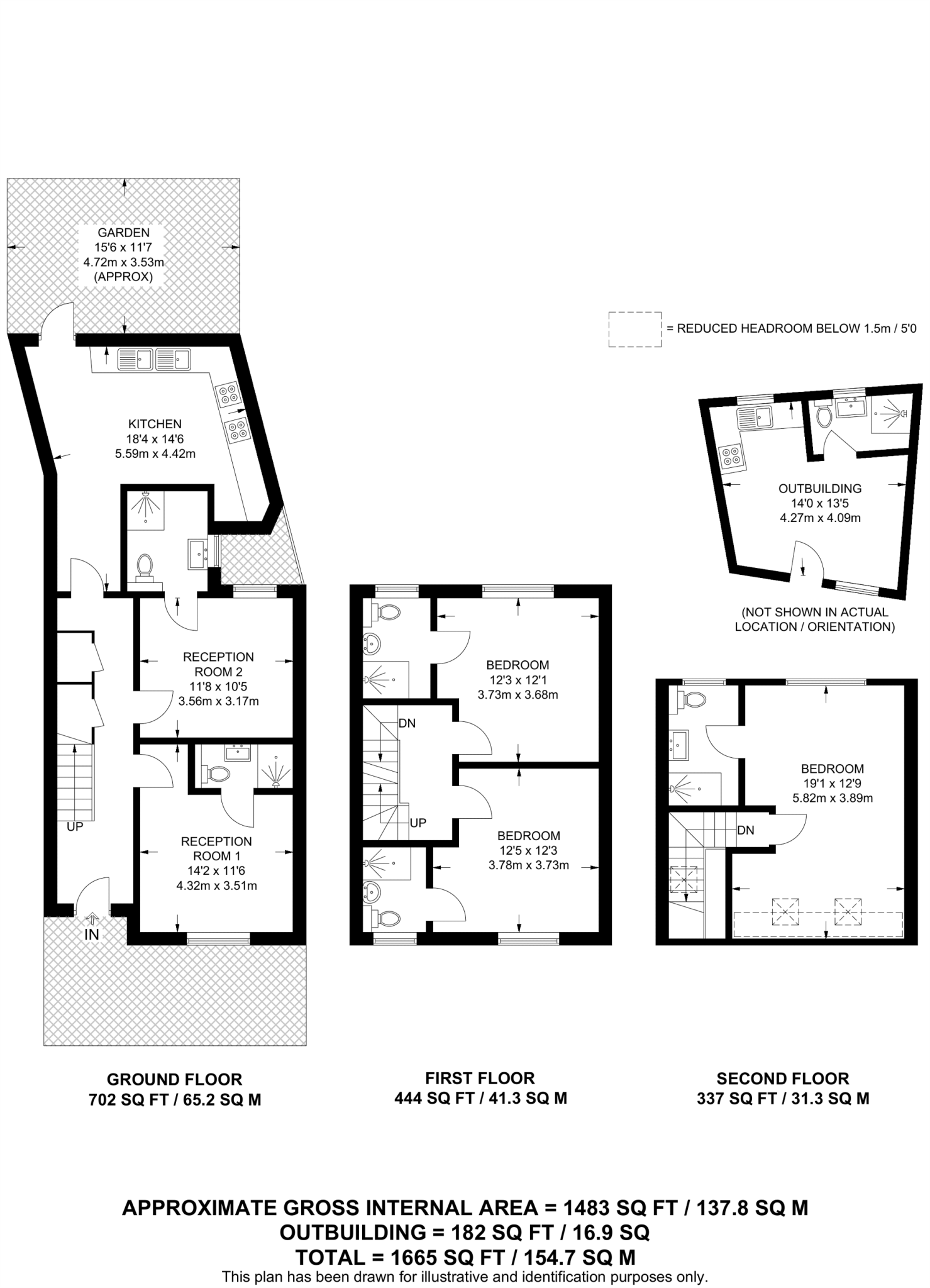
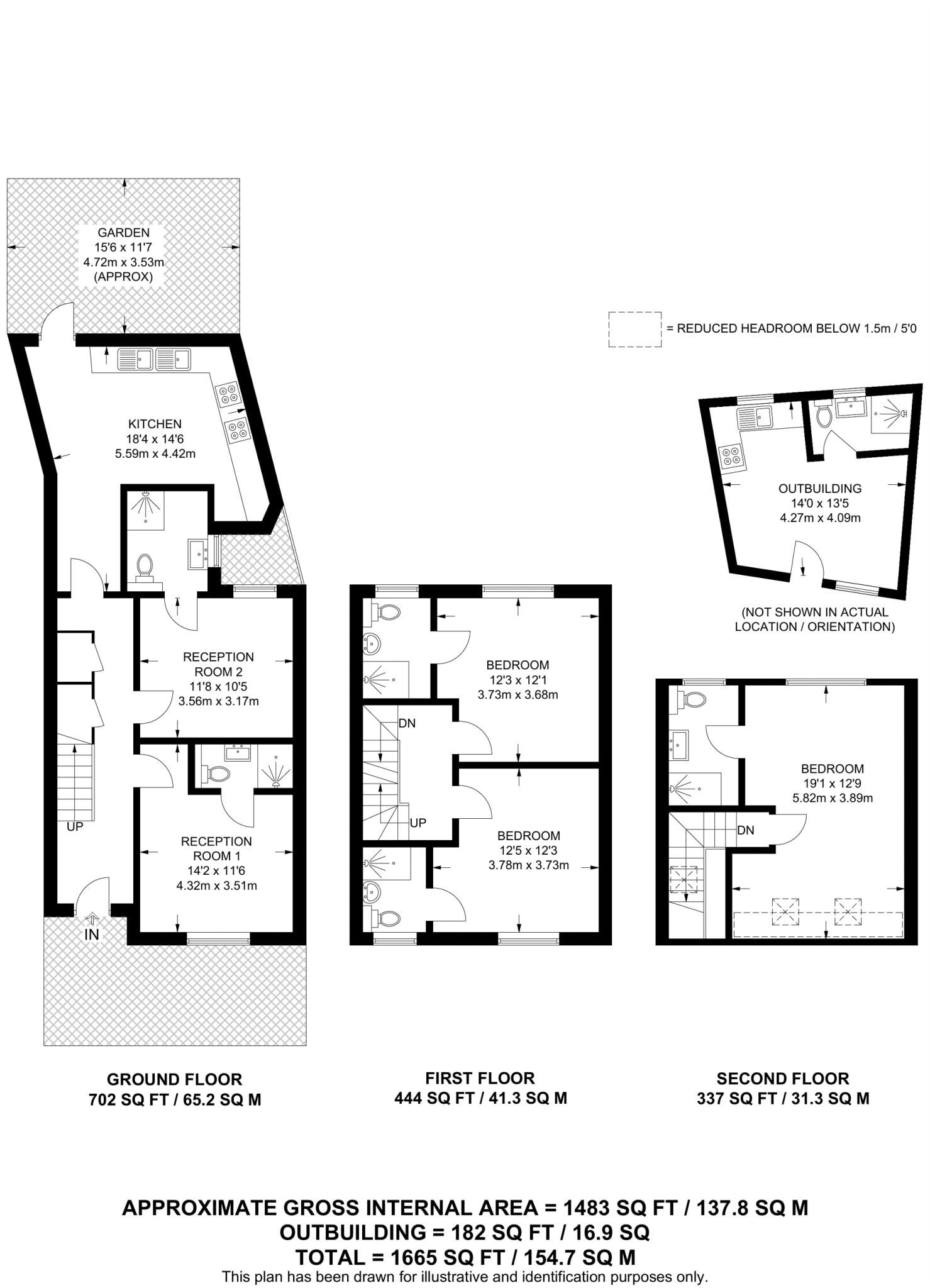
A newly refurbished freehold HMO on Coles Green Road presented as a ready-made investment in NW2. The property offers five self-contained letting rooms, secure off-street parking and a long, landscaped 117ft garden with a self-contained annex — features that support strong rental demand and flexible use.
Projected ERVs of £60–72k per annum indicate clear income potential for a landlord. The house is presented with a modern eat-in kitchen, generously sized rooms and recent internal refurbishment, reducing immediate capital expenditure for incoming owners. Good transport links (Neasden Jubilee Line, A406) and nearby amenities including Brent Cross increase tenant appeal.
Buyers should note material points: the area records above-average crime levels and high local deprivation, factors that affect tenant profiles and lettings risk. There is conflicting data about bathroom provision (structured data shows one bathroom; marketing notes mention en suites) — this should be verified before offer. The building dates from the 1930s with solid brick walls (no confirmed insulation) and double glazing of unknown install date, so longer-term maintenance or thermal upgrades may be needed.
Overall this freehold HMO suits investors seeking an active income asset with immediate rental potential and room for value growth. It will also interest purchasers willing to manage tenanted accommodation and who appreciate the trade-off between location-driven income and local area challenges.
5 bedroom terraced house for sale in Dawpool Road, Neasden, London, NW2 — £790,000 • 5 bed • 1 bath • 1482 ft²
5 bedroom semi-detached house for sale in Waterloo Road, London, NW2 — £749,995 • 5 bed • 2 bath • 1302 ft²
5 bedroom house for sale in Somerton Road, Cricklewood, London, NW2 1SA, NW2 — £850,000 • 5 bed • 2 bath • 1162 ft²
6 bedroom house share for sale in Randall Avenue, London, NW2 — £750,000 • 6 bed • 1 bath • 1999 ft²
4 bedroom semi-detached house for sale in St. Marys Road, Willesden junction, London, NW10 — £1,200,000 • 4 bed • 3 bath • 2206 ft²
5 bedroom semi-detached house for sale in Wells House Road, London, NW10 — £615,000 • 5 bed • 2 bath • 1108 ft²


































































































































































































