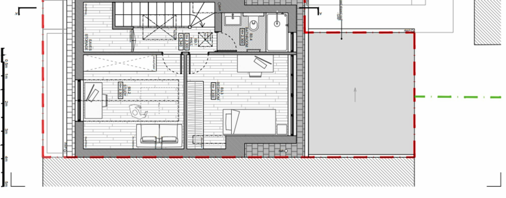
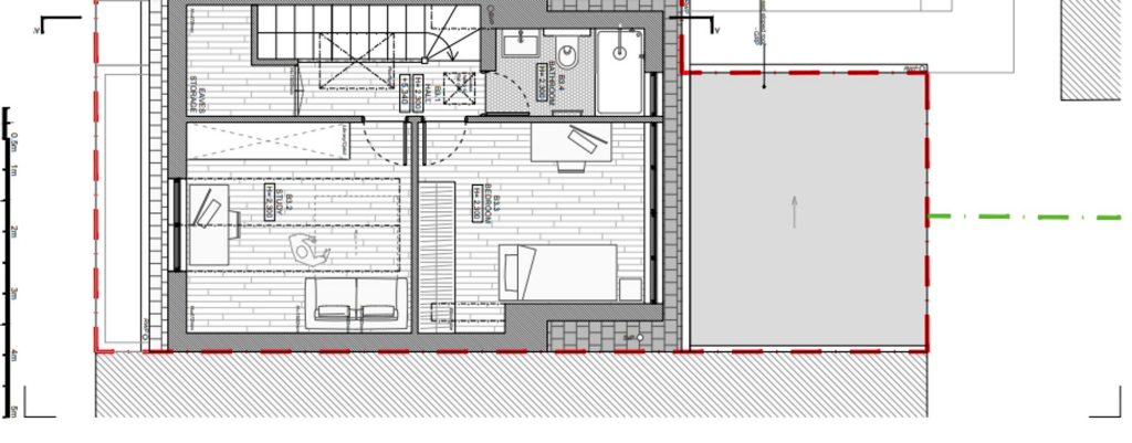
Two planned four-bedroom homes close to the beach, suitable for an experienced investor or developer.
- Full plans available to build two 4-bed, two-storey dwellings
- Small plot size suited to compact development
- Walking distance to beach, shops, and tourist amenities
- Excellent mobile signal and fast broadband
- Area classified as very deprived with very high crime
- Sold at auction: 10% deposit and additional buyer fees apply
- Tenure unknown; buyer must verify legal title before bidding
- No flood risk reported
A small development plot in Bond Street, Blackpool, offered with full plans (available on application) to build two modern two-storey homes, each with four bedrooms. The site sits within walking distance of the beach, local shops and tourist amenities, and benefits from excellent mobile signal and fast broadband — useful for holiday-let or long-term rental demand.
The plot is being sold at auction with immediate exchange and completion 28 days after. Buyers should factor in the advertised additional costs: a 10% non-refundable exchange deposit, a compulsory Buyer Information Pack fee (£300), and a Reservation Fee of 4.2% (minimum £6,000). Tenure is listed as unknown and must be checked prior to bidding.
The local area is classified as very deprived with very high crime levels and a mixed population (migrant families and student neighbourhoods). These realities will affect lettability, resale perceptions and mortgage availability; however, projected finished values are indicated at approximately £200,000–£220,000 per unit, which may interest investors or builders able to manage local market risks.
This is a short-timescale auction purchase aimed at buyers experienced with conditional sales and local market challenges. The site’s small plot size and planning for modern, energy-efficient homes suit a compact development strategy rather than a large-scale project.
Commercial development for sale in 122 Bolton Street, Blackpool, Lancashire FY1 6AA, FY1 — £110,000 • 1 bed • 1 bath
Commercial development for sale in New South Promenade, Blackpool, Lancashire, FY4 — £750,000 • 1 bed • 1 bath
Commercial development for sale in 9 Rigby Road, Blackpool, Lancashire, FY1 — £450,000 • 1 bed • 1 bath • 6000 ft²
Commercial property for sale in 136-144 Watson Road, Blackpool, Lancashire FY4 3EE, FY4 — £200,000 • 1 bed • 1 bath
Commercial property for sale in 29 Birley Street, Blackpool FY1 1EG, FY1 — £95,000 • 1 bed • 1 bath
4 bedroom end of terrace house for sale in Yates Street, Blackpool, FY1 — £75,000 • 4 bed • 4 bath






















































