Ground-floor Victorian conversion with garden and parking potential.
Private paved garden with secure-gate access for possible off-street parking
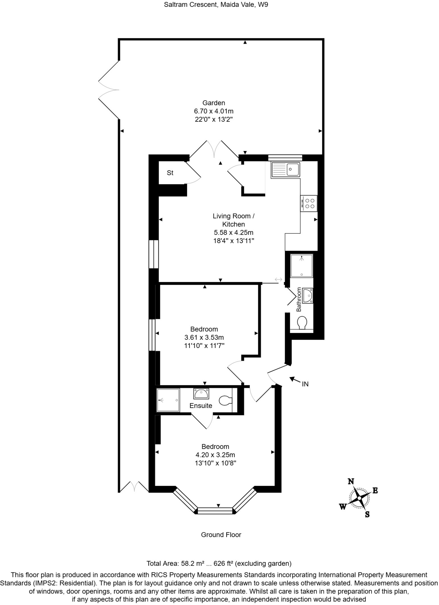
Two double bedrooms; principal bedroom has an en suite shower
Open-plan kitchen/living area with French doors and wood flooring
Share of freehold; underlying lease c.101 years remaining
Chain-free sale for a quicker transaction
High annual service charge (£9,999.96) — budget accordingly
Area records above-average crime and higher deprivation metrics
Good public transport: Queen's Park tube/overground under 0.3 miles
Quietly tucked on Saltram Crescent, this ground-floor Victorian conversion combines period character with modern convenience. The apartment offers two double bedrooms, two contemporary shower rooms and an open-plan living/kitchen that opens onto a private paved garden — rare for a conversion and adaptable for off-street parking via secure gates.
Finished with wood floors and double glazing, the property is move-in ready for first-time buyers seeking space and outdoor access in a highly sought Maida Vale pocket. Queens Park, Salusbury Road shops and cafés, and three nearby stations (Queen’s Park, Maida Vale, Westbourne Park) are all within easy walking distance, making commuting and weekend leisure straightforward.
Buyers should note material facts: the flat is share-of-freehold with c.101 years remaining on the underlying lease, and the advertised annual service charge is substantial (£9,999.96). The immediate area records above-average crime and higher local deprivation metrics compared with neighbouring wards — factors to consider for safety and insurance. Council Tax sits at Band D.
Overall, this is a rare ground-floor apartment with private outdoor space and parking potential, suited to first-time buyers who prioritise outside space, transport links and period charm, but who must budget for higher service charges and consider local area indicators.
1 bedroom apartment for sale in Saltram Crescent, Maida Vale, London, W9 — £475,000 • 1 bed • 1 bath • 617 ft²
2 bedroom flat for sale in Fermoy Road, Maida Vale, W9 — £750,000 • 2 bed • 2 bath • 800 ft²
2 bedroom flat for sale in Saltram Crescent, London, W9 — £695,000 • 2 bed • 1 bath • 655 ft²
2 bedroom ground floor flat for sale in Lanhill Road, London, W9 — £625,000 • 2 bed • 1 bath • 636 ft²
1 bedroom flat for sale in Saltram Crescent, London, W9 — £475,000 • 1 bed • 1 bath • 593 ft²
2 bedroom apartment for sale in Maida Vale, London, W9 — £575,000 • 2 bed • 1 bath • 622 ft²






















































