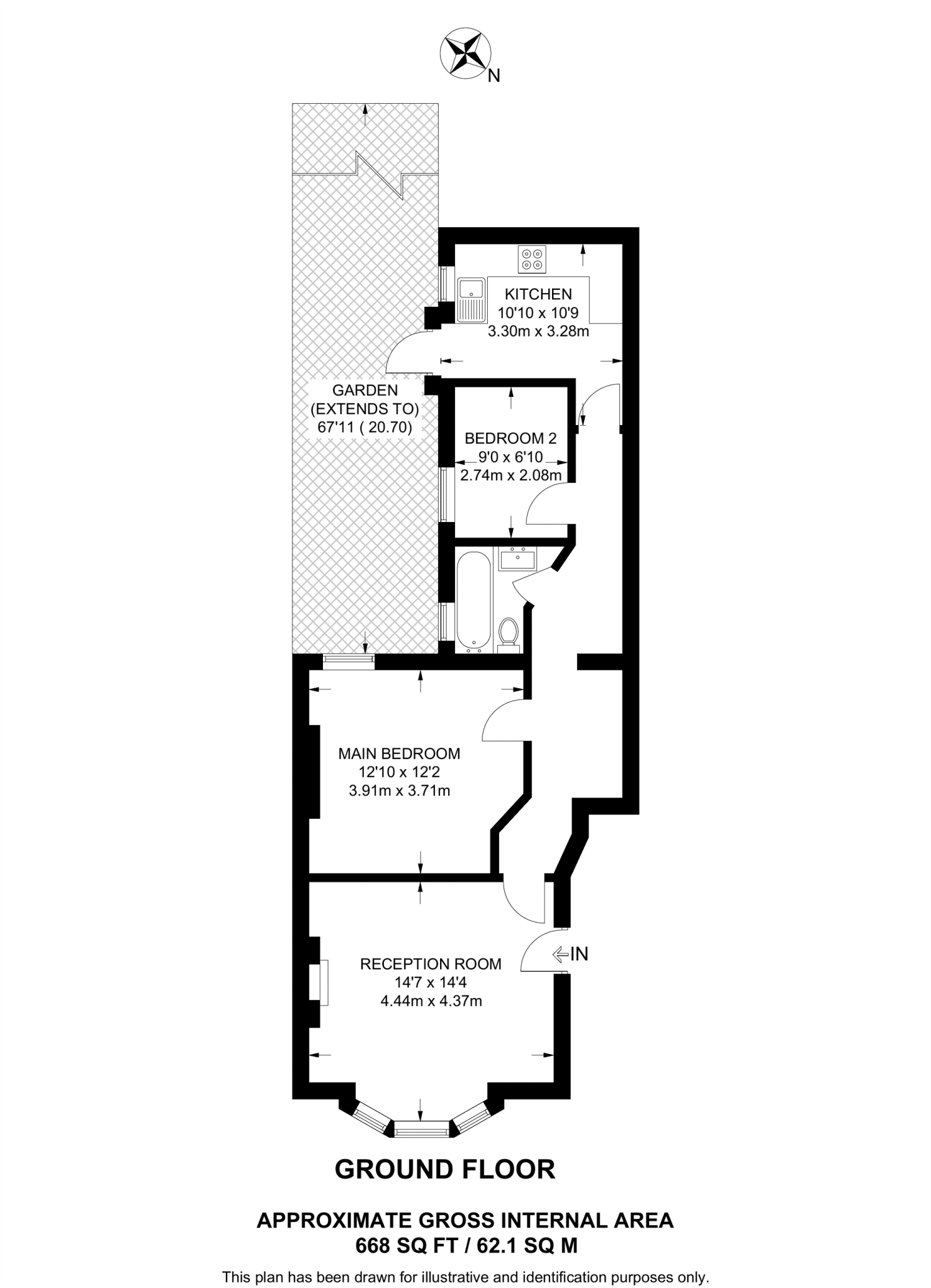
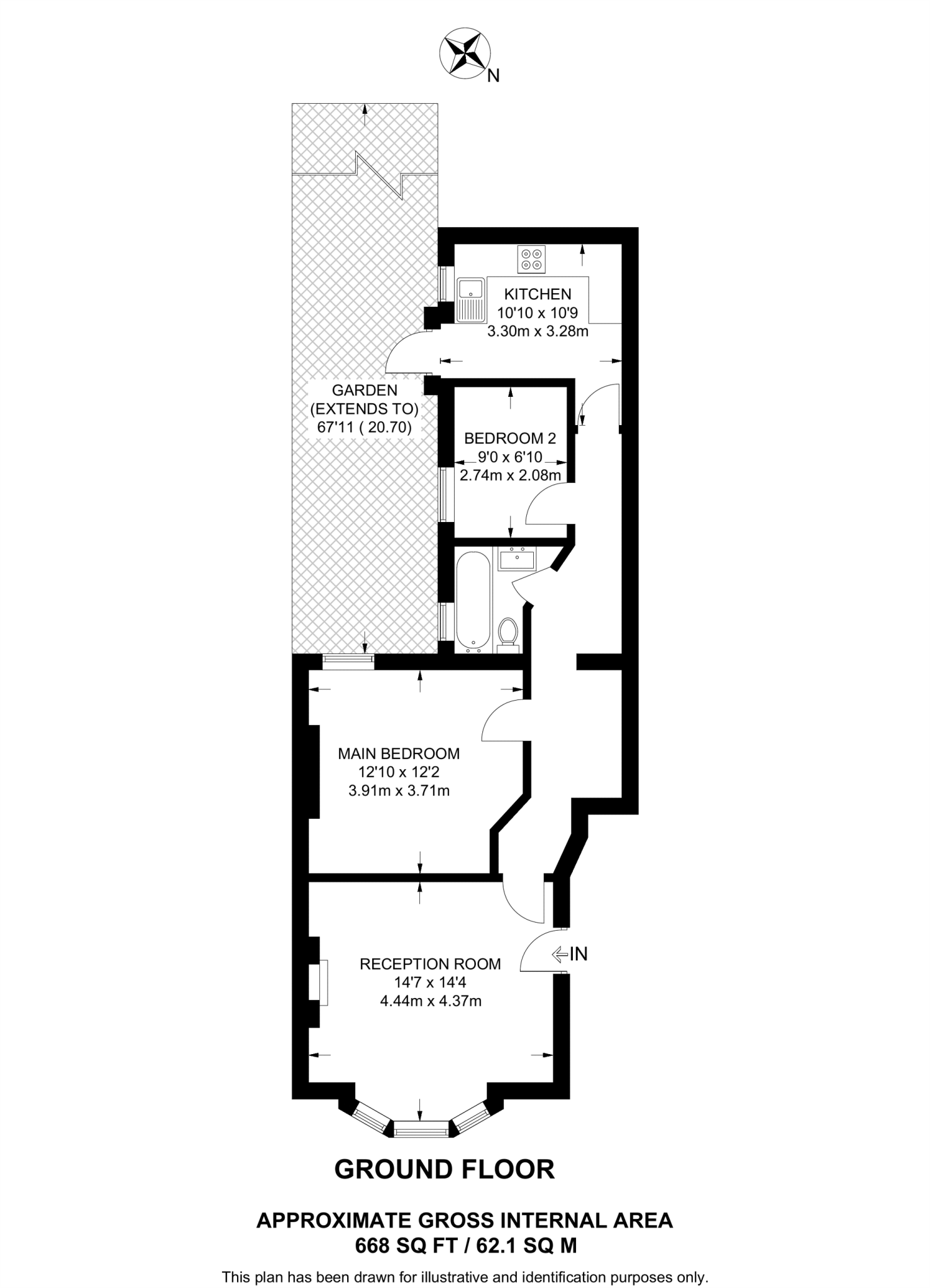
Two-bedroom ground-floor flat with private garden and excellent Woolwich transport links.
Victorian ground-floor flat with period bay window
This charming two-bedroom ground-floor flat sits in a Victorian terrace on a quiet residential street, offering comfortable living with a private section of rear garden. The reception room has a period bay window and high ceilings, while a separate kitchen and practical layout provide everyday convenience for a small family or commuter couple.
The location is a major selling point: excellent transport links via Woolwich Elizabeth Line, DLR and National Rail make city and Canary Wharf commutes straightforward. Local parks, shops and a range of primary and secondary schools — including two rated Good and one Outstanding nearby — add convenience for families.
Practical considerations: the property is leasehold and the interior will benefit from modernization (dated carpeting and general cosmetic updating). There is one bathroom and on-street parking only. Broadband and mobile signal are strong, and the area has low crime and an affluent profile, making this a sensible long-term buy for buyers seeking commuter convenience with scope to add value through refurbishment.
2 bedroom flat for sale in Gilbert Close, Woolwich, London, SE18 — £425,000 • 2 bed • 1 bath • 816 ft²
2 bedroom flat for sale in Ancona Road, London, SE18 — £300,000 • 2 bed • 1 bath • 680 ft²
1 bedroom flat for sale in Herbert Road, Shooters Hill, London, SE18 — £335,000 • 1 bed • 1 bath • 619 ft²
1 bedroom flat for sale in Eglinton Hill, Shooters Hill, SE18 — £300,000 • 1 bed • 1 bath • 797 ft²
2 bedroom flat for sale in Plum Lane, London, SE18 — £280,000 • 2 bed • 1 bath • 624 ft²
5 bedroom terraced house for sale in Genesta Road, Shooters Hill, London, SE18 — £575,000 • 5 bed • 2 bath • 1515 ft²


































































