**Standout Features:**
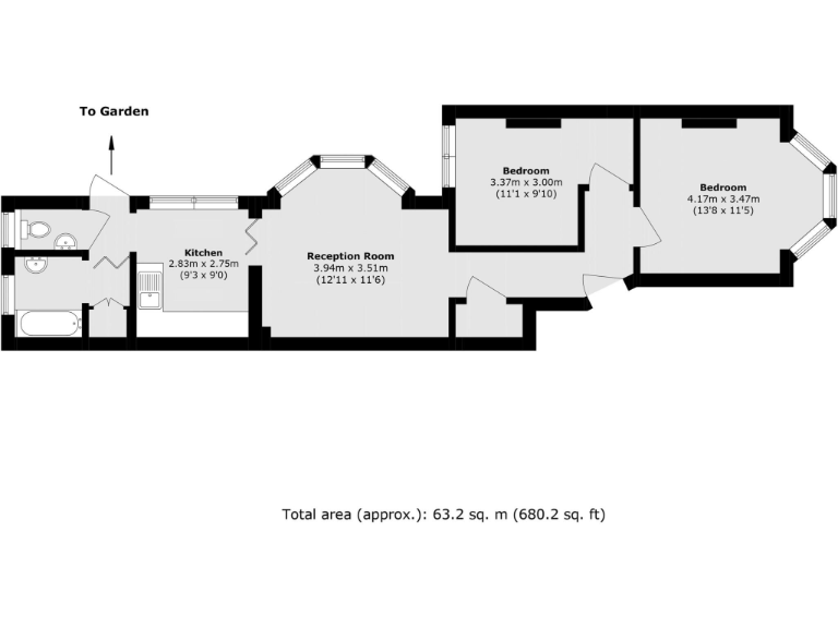
- Spacious ground-floor flat with two double bedrooms
- Generous private garden ideal for outdoor activities
- Double glazed windows and well-proportioned kitchen
- Conveniently located near natural green spaces and transport links
- Share of freehold, with no service charge or ground rent
- Within walking distance of vibrant Royal Arsenal Riverside
- Recommended schools nearby with Good Ofsted ratings
**Potential Concerns:**
- Constructed before 1900, requiring potential updates
- Solid brick walls with no assumed insulation may affect energy efficiency
- Average crime rate in the area, typical for urban settings
This charming Victorian flat in SE18 is perfect for first-time buyers, families, or savvy investors looking for value in a vibrant area. Offering two generously-sized double bedrooms, a bright living room, and a well-equipped kitchen, this home combines comfort and functionality. The standout feature, a beautifully maintained private garden, presents an oasis for relaxation or entertaining. Nestled between Oxleas Wood and Shrewsbury Park, outdoor enthusiasts will appreciate the lush surroundings.
With Woolwich Arsenal Station just a short stroll away, commuting becomes effortless, with fast connections to Central London and Heathrow via the new Elizabeth Line. Plus, the local amenities and excellent schools nearby enhance this property’s appeal, making it a prime location for young families.
Don't miss this fantastic opportunity to own an inviting space that offers both charm and potential for future value. With the option to personalize or update, you have the canvas for your dream home in this thriving community.
2 bedroom flat for sale in Congleton Grove, London, SE18 — £375,000 • 2 bed • 2 bath • 789 ft²
1 bedroom apartment for sale in Sundorne Road, Charlton, SE7 — £375,000 • 1 bed • 1 bath • 567 ft²
2 bedroom flat for sale in Wellington Gardens, Charlton, SE7 — £350,000 • 2 bed • 1 bath • 735 ft²
2 bedroom flat for sale in Plum Lane, London, SE18 — £280,000 • 2 bed • 1 bath • 624 ft²
2 bedroom flat for sale in Herbert Road, Woolwich, SE18 — £272,000 • 2 bed • 1 bath • 560 ft²
2 bedroom flat for sale in Flat , Elmdene Road, London, SE18 — £300,000 • 2 bed • 1 bath • 527 ft²






























