Five-bedroom family home near top schools and park with large west garden.
Five bedrooms across 2,260 sq ft ideal for family living
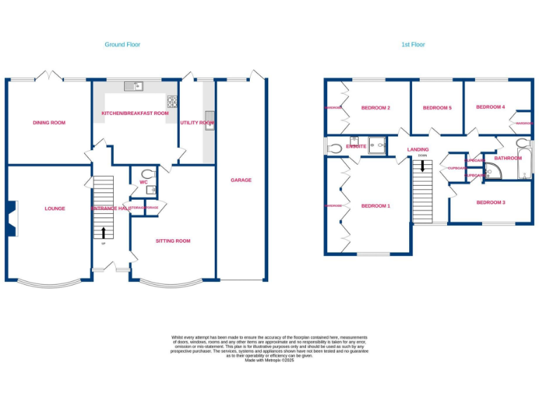
Set on a large plot in a quiet residential avenue, this five-bedroom detached house delivers generous family accommodation across 2,260 sq ft. Ground floor living includes a 19'6" lounge, separate dining room, substantial study and a well-sized kitchen with adjoining utility — layout suited to home-working and family life. The rear garden faces west and offers privacy and scope for children to play or for extension (subject to permissions).
The property sits moments from highly rated primary and secondary schools, local shops and Wickford station, making school runs and commuting straightforward. The driveway provides in-and-out parking for multiple vehicles and an integral garage offers extra storage or a converted gym space.
Practical points: the rear swimming pool requires repair or removal, and the EPC is rated D. The integral garage is currently used as a gym and may need reinstating if vehicle storage is required. Council tax is on the higher side. Overall this home provides immediate comfortable living with clear potential to personalise and improve value through modest works.
4 bedroom detached house for sale in Oak Avenue, Wickford, SS11 — £600,000 • 4 bed • 2 bath • 1604 ft²
4 bedroom detached house for sale in Jacks Close, Wickford, SS11 — £550,000 • 4 bed • 2 bath • 1485 ft²
5 bedroom detached house for sale in Swan Lane, Wickford, SS11 — £900,000 • 5 bed • 3 bath
4 bedroom detached house for sale in Radwinter Close, Wickford, Essex, SS12 — £475,000 • 4 bed • 3 bath • 1249 ft²
4 bedroom detached house for sale in Fanton Walk, Wickford, Essex, SS11 — £700,000 • 4 bed • 3 bath • 1792 ft²
5 bedroom detached house for sale in Sandown Road, Wickford, SS11 — £670,000 • 5 bed • 4 bath • 2106 ft²


















































































































































