New two-bedroom apartment with communal lounge and guest suite.
Exclusively for over-60s retirement living
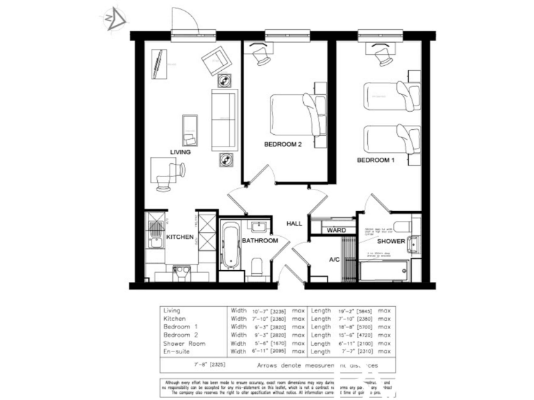
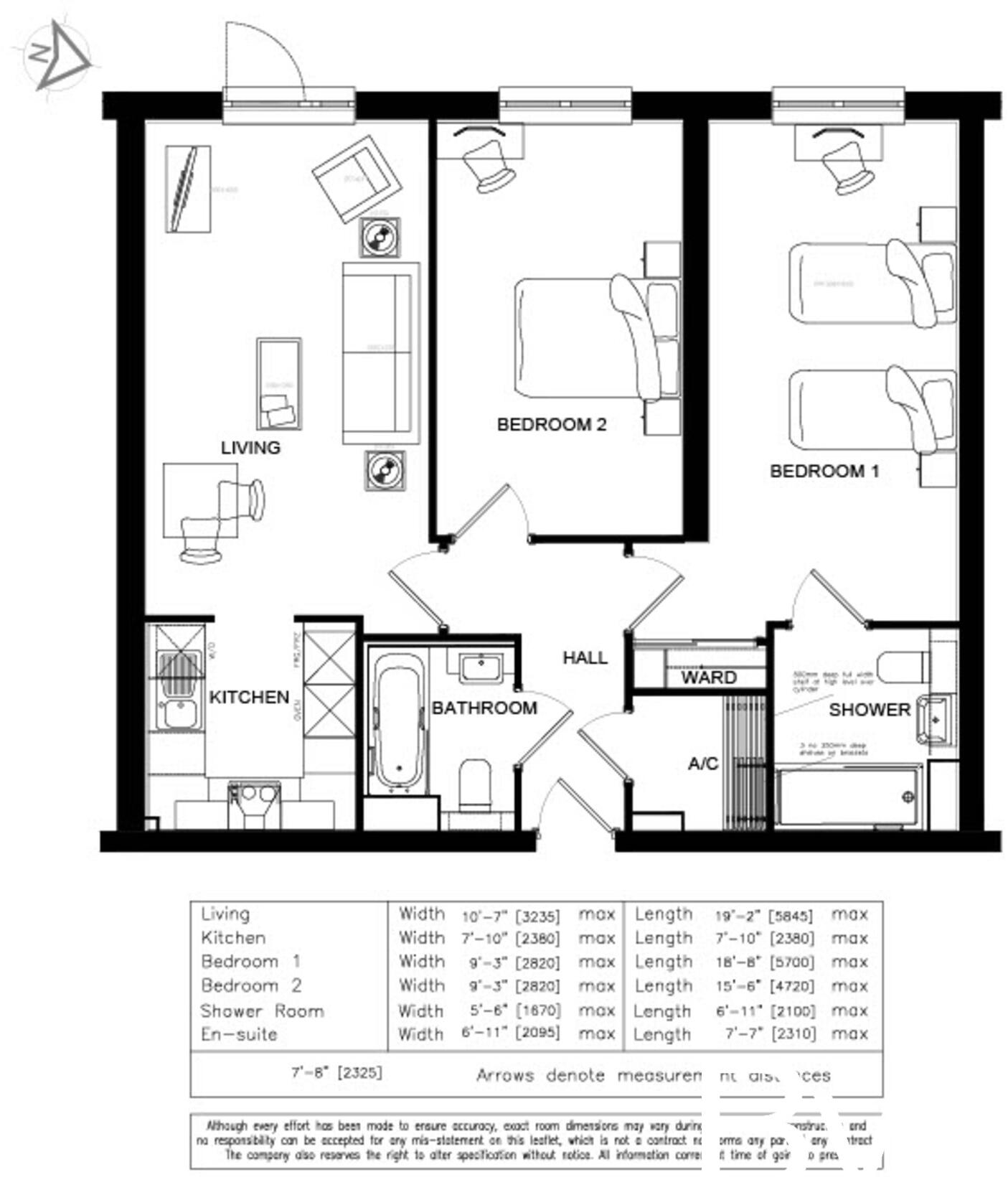
A bright two-bedroom apartment in Cleves Lodge offers purpose-built retirement living close to Haverhill town centre. The apartment is part of a new development with landscaped communal gardens, an Owners’ Lounge with coffee bar and a guest suite for visitors — amenities that support a sociable, low-maintenance lifestyle.
Designed for comfort and safety, the home has an energy-efficient heating system, fitted kitchen with integrated oven, hob and fridge/freezer, a walk-in wardrobe in the main bedroom and a level-access shower room. All apartments are self-contained with their own front doors and benefit from a 24-hour call-centre emergency system, secure camera entry and a Lodge Manager on site.
Important practical points: this is a leasehold property in a development situated in an area with higher crime and local deprivation measures than average. The apartment has one bathroom for two bedrooms and communal facilities are shared, which may suit those seeking sociable independence but could be less private than a standalone home.
Overall, Cleves Lodge is well suited to over-60s looking to downsize without losing social amenities and security. The combination of new-build specification, on-site support and communal spaces delivers convenience; buyers should consider the leasehold status and local area factors when deciding whether this community fits their needs.
1 bedroom apartment for sale in Cleves Lodge, Camps Road, Haverhill, Suffolk, CB9 — £249,950 • 1 bed • 1 bath • 670 ft²
2 bedroom house for sale in Cleves Lodge, Camps Road, Haverhill, Suffolk, CB9 — £385,950 • 2 bed • 1 bath • 690 ft²
2 bedroom retirement property for sale in 2 Bed Apartment, Cleves Lodge, Haverhill, CB9 — £239,365 • 2 bed • 2 bath • 767 ft²
1 bedroom retirement property for sale in 1 Bed Apartment, Cleves Lodge, Haverhill, CB9 — £174,965 • 1 bed • 1 bath • 762 ft²
2 bedroom flat for sale in Camps Road, Haverhill, Suffolk, CB9 — £245,000 • 2 bed • 1 bath • 509 ft²
1 bedroom ground floor flat for sale in Camps Road, Haverhill, Suffolk, CB9 — £239,995 • 1 bed • 1 bath • 2710 ft²










































































































