Purpose-built retirement flat with communal social spaces and guest suite.
One-bedroom new-build apartment with fitted kitchen and integrated appliances
A bright, purpose-built one-bedroom apartment in Cleves Lodge, designed for independent over-60s living. The new-build flat offers a fitted kitchen with integrated appliances, a walk-in wardrobe in the bedroom and energy-efficient heating to keep running costs lower. Residents benefit from communal features including an Owners’ Lounge with coffee bar, guest suite for visitors, landscaped grounds and a Lodge Manager on site.
Safety and convenience are priorities: the development includes a 24-hour emergency call system, secure camera entry and off-street parking. The apartment is self-contained with its own front door and lift access to all floors, making it practical for single occupants or couples seeking low-maintenance retirement accommodation.
Buyers should note this is a leasehold retirement property with communal management — associated service charges and ground rent will apply. The building is in an area with relatively high crime rates and local deprivation indicators; prospective purchasers should consider local conditions and security in person.
Overall this apartment suits someone seeking a sociable, low-upkeep retirement base close to Haverhill amenities, with good mobility, on-site support and modern, energy-efficient fittings.
2 bedroom apartment for sale in Cleves Lodge Apartments, Camps Road, Haverhill, Suffolk, CB9 — £341,950 • 2 bed • 1 bath • 1182 ft²
1 bedroom retirement property for sale in 1 Bed Apartment, Cleves Lodge, Haverhill, CB9 — £174,965 • 1 bed • 1 bath • 762 ft²
2 bedroom house for sale in Cleves Lodge, Camps Road, Haverhill, Suffolk, CB9 — £385,950 • 2 bed • 1 bath • 690 ft²
1 bedroom ground floor flat for sale in Camps Road, Haverhill, Suffolk, CB9 — £239,995 • 1 bed • 1 bath • 2710 ft²
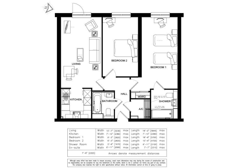
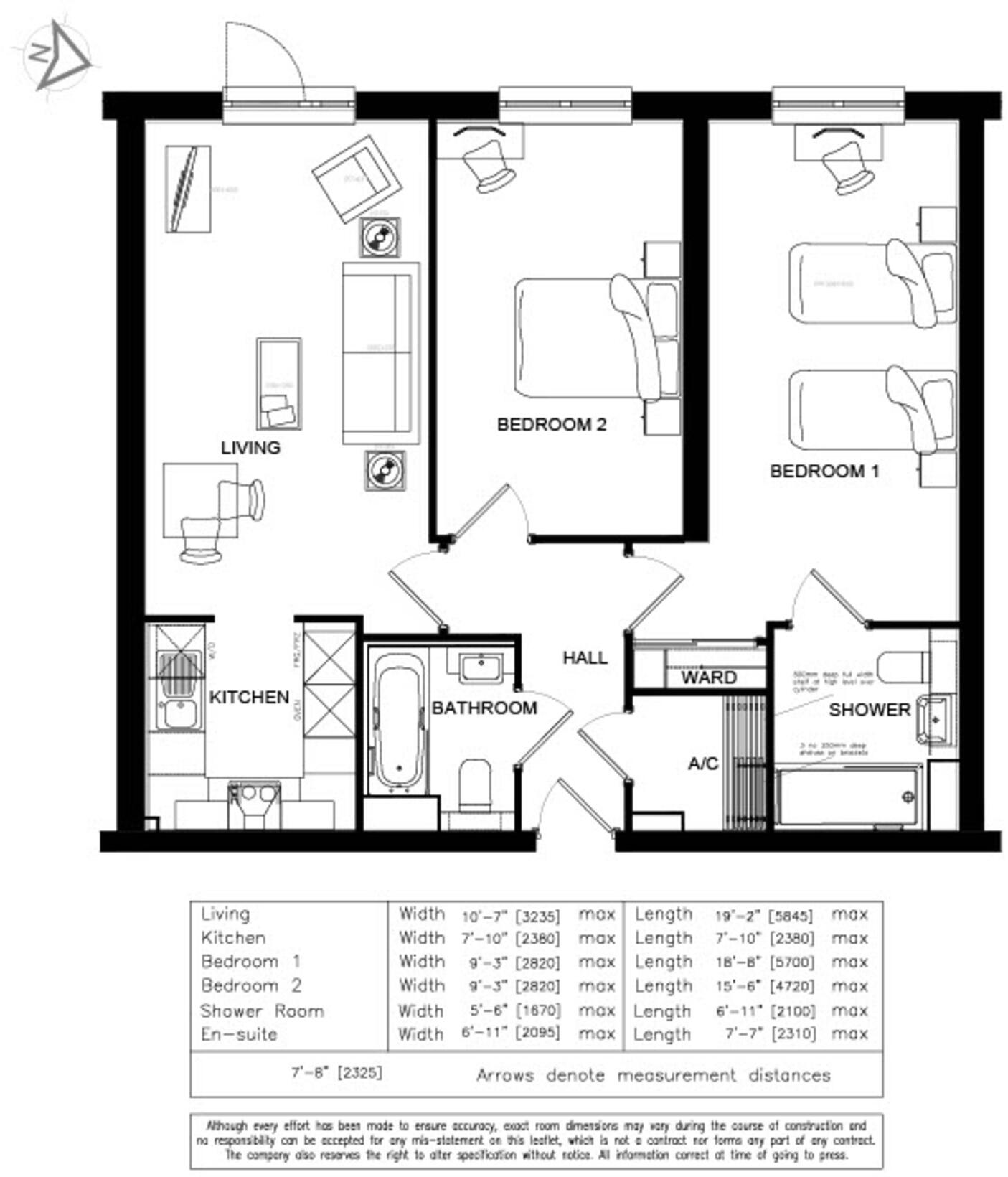
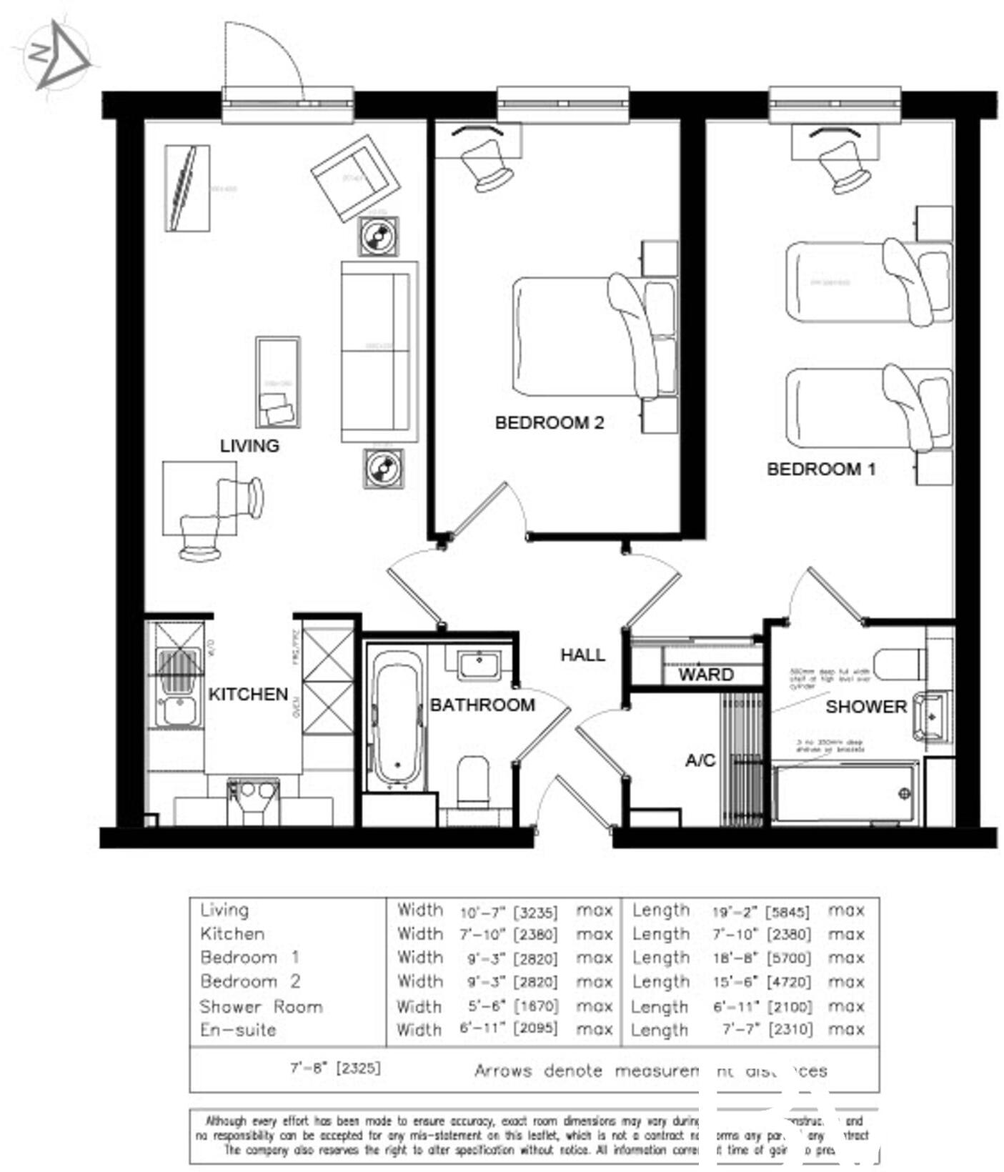
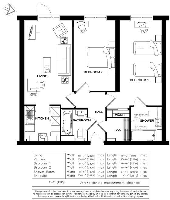
2 bedroom retirement property for sale in 2 Bed Apartment, Cleves Lodge, Haverhill, CB9 — £239,365 • 2 bed • 2 bath • 767 ft²
2 bedroom flat for sale in Camps Road, Haverhill, Suffolk, CB9 — £245,000 • 2 bed • 1 bath • 509 ft²


































































































































































































































