Large two-bed apartment with skyline views, concierge and parking—ideal for commuters or investors.
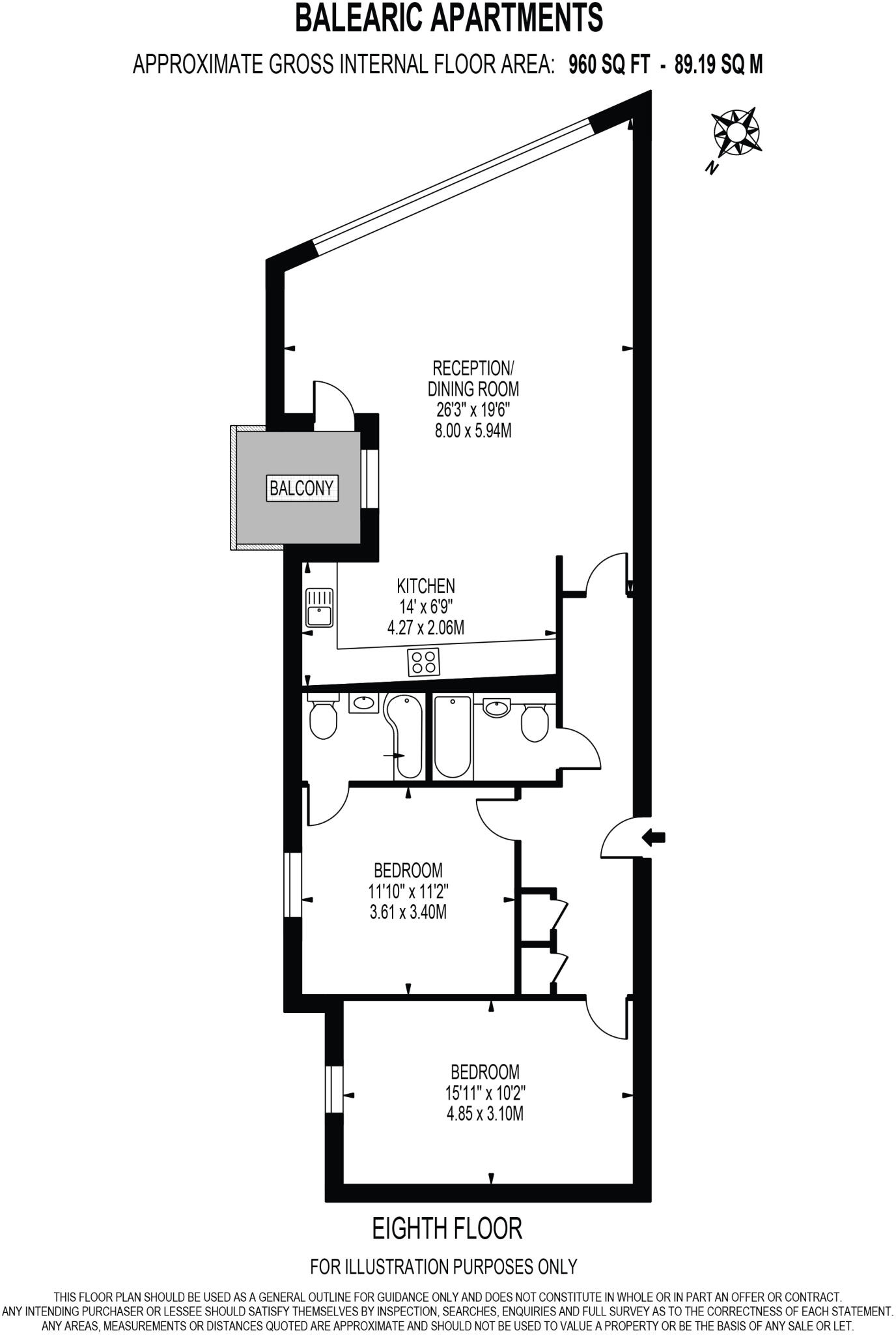
Large 960 sqft apartment with private balcony and panoramic O2/Canary Wharf views
Eighth-floor position provides strong natural light and quieter outlook
Two bedrooms and two bathrooms; master includes ensuite
24-hour concierge, on-site gym and secure underground parking included
Excellent transport links: DLR, Crossrail nearby, Jubilee Line within walking distance
Leasehold with c.133 years remaining; ground rent £500 (average)
Electric room heaters (no gas central heating) — consider running costs
Council tax band noted as expensive; factor service charges and upkeep
Spacious eighth-floor apartment offering 960 sqft of internal space, private balcony and twin views of the O2 and Canary Wharf. The open-plan living area and large windows capture strong natural light, making the apartment feel bright and contemporary. Residents benefit from 24-hour concierge, on-site gym and secure underground parking — practical amenities for city living.
The property is set within Royal Victoria Docks, a lively waterfront location with bars, restaurants and close transport links. Royal Victoria, Custom House (DLR), the nearby Crossrail station and Canning Town (Jubilee Line) provide fast connections across London, attractive for commuters or lettings demand.
Important considerations: the home is leasehold with approximately 133 years remaining and a ground rent of £500 (average). Heating is electric via room heaters rather than gas central heating. Council tax band is described as expensive. Buyers should factor ongoing service charges and potential retrofit costs when budgeting.
Overall, this apartment suits buyers seeking a large, modern riverside home or an investment in a high-demand transport corridor. The layout, views and building amenities give immediate lifestyle appeal, while the leasehold and electric heating are practical points to review pre-purchase.
2 bedroom flat for sale in Western Gateway,
Silvertown, E16 — £550,000 • 2 bed • 2 bath • 948 ft²
2 bedroom apartment for sale in Western Gateway, London, E16 — £375,000 • 2 bed • 2 bath • 997 ft²
2 bedroom apartment for sale in Coral Apartments, Royal Victoria Dock, E16 — £550,000 • 2 bed • 2 bath • 1060 ft²
3 bedroom apartment for sale in Alaska Apartments, Royal Victoria Dock, London, E16 — £700,000 • 3 bed • 2 bath • 1140 ft²
2 bedroom flat for sale in Western Beach Apartments, 36 Hanover Avenue, London, E16 — £500,000 • 2 bed • 2 bath • 852 ft²
2 bedroom apartment for sale in Oceanis Apartments, London, E16 — £420,000 • 2 bed • 1 bath • 680 ft²










































