TN24 0BG - 3 bedroom end of terrace house for sale in Cudworth Road, S…

View on Property Piper

3 bedroom end of terrace house for sale in Cudworth Road, South Willesborough, Ashford, Kent, TN24

Summary - 11 CUDWORTH ROAD WILLESBOROUGH ASHFORD TN24 0BG

3 bed 1 bath End of Terrace

Spacious lounge, conservatory and landscaped garden near Ashford International — ideal family commuter home.
Near Ashford International station and fast M20 access
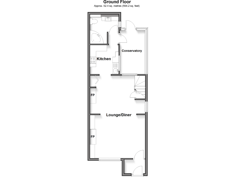
This Victorian end-of-terrace offers practical family living in popular Willesborough, a short walk from Ashford International and with quick access to the M20. A large open-plan lounge/dining room and an added conservatory create flexible entertaining and family space, while two good-sized bedrooms provide comfortable sleeping accommodation.

The rear garden is landscaped with a modern patio and turf, creating a low-maintenance outdoor area for children and summer entertaining. Off-street parking and freehold tenure add practical value for everyday life. At around 840 sq ft, the property sits on a small plot but makes efficient use of space with a clear, traditional layout.

Buyers should note the house dates from before 1900 with solid brick walls and no known wall insulation, and the double glazing was installed before 2002. There is a single family bathroom and a relatively compact kitchen, so some updating or improvements could be considered to personalise the home and improve energy efficiency.

This home will suit families or first-time buyers seeking a well-located, characterful property with good transport links and a ready-to-live-in garden. Important practical details, including appliances, tenure verification and any permitted alterations, should be confirmed before purchase.

Property Details

Image Descriptions

Floorplan Description

Rooms

Textual Property Features

Target Audience

AI Tags

Detected Visual Features

EPC Details

Nearby Schools

Nearest Bars And Restaurants

,,,,}

Nearest General Shops

,,}

Nearest Grocery shops

,,}

Nearest Supermarkets

,,}

Nearest Religious buildings

,,}

Nearest Medical buildings

,,,}

Nearest Leisure Facilities

,,,,}

Nearest Tourist attractions

,,}

Nearest Train stations

,,,,}

Nearest Bus stations and stops

,,,,}

Nearest Hotels

,,}

Tags

Local Market Stats

AirBnB Data

Similar Properties

Meta

High Res Images

Compatible Images

Low res Images

Thumbnails

Raw Images

High Res Floorplan Images

Compatible Floorplan Images

Low res Floorplan Images

FloorplanImages Thumbnail

Raw Floorplan Images