Compact, contemporary home with garden and garage for modern family life.
New build three-bedroom semi-detached home with modern finishes
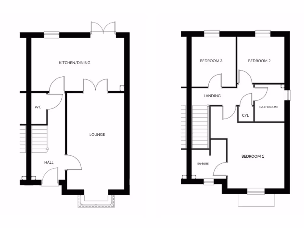
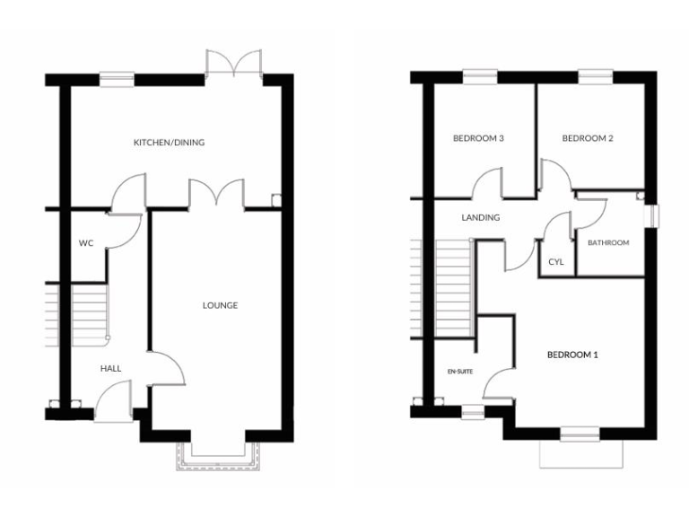
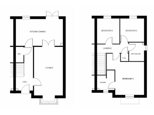
A freshly released three-bedroom semi-detached new build in Waltham, Plot 137 offers bright open-plan living designed for modern family life. The ground floor features a contemporary kitchen/diner with included floor tiles and French doors that open onto an enclosed rear garden, while a separate lounge provides flexible reception space. The master bedroom includes an en suite and there is a separate family bathroom with an upgraded specification.
Practical extras include a garage, block‑paved driveway and freehold tenure. The property is presented move‑in ready with neutral contemporary finishes, integrated kitchen appliances and tiled floors in key areas. Broadband and mobile signal are reported strong, and the location is close to primary and secondary schools rated Good.
Be aware the internal footprint is compact at around 805 sq ft, so this is a mid‑sized family home rather than a large family house. The layout suits couples, young families or buy‑to‑let purchasers seeking low-maintenance new build accommodation with outdoor space. Any specific measurements and finishes should be checked at viewing; photographs and floorplans are illustrative.
3 bedroom semi-detached house for sale in Plot 136, 2 Dunnock Avenue, Waltham., DN37 — £249,950 • 3 bed • 1 bath • 805 ft²
3 bedroom terraced house for sale in Plot 44, 44 Dunnock Avenue, Waltham., DN37 — £229,950 • 3 bed • 1 bath • 835 ft²
3 bedroom end of terrace house for sale in Plot 43, 46 Dunnock Avenue, Waltham., DN37 — £244,950 • 3 bed • 1 bath • 808 ft²
3 bedroom semi-detached house for sale in Plot 51, The Green, Waltham, DN37 — £259,950 • 3 bed • 2 bath • 1061 ft²
2 bedroom end of terrace house for sale in Plot 47, The Hyde, Waltham., DN37 — £174,950 • 2 bed • 1 bath • 625 ft²
3 bedroom semi-detached house for sale in The Green, Cheapside, Waltham, DN37 — £275,000 • 3 bed • 2 bath














































