New-build family home with garage, upgraded bathroom and a gifted deposit to help you move.
5% gifted deposit included to assist buyers
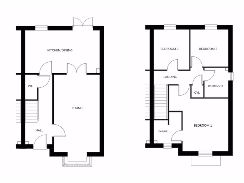
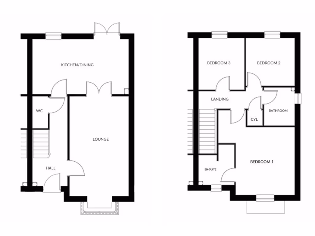
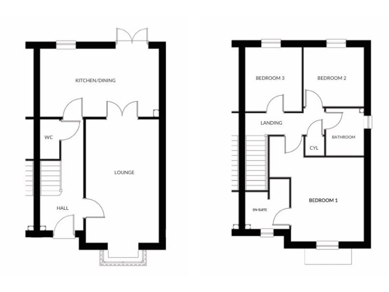
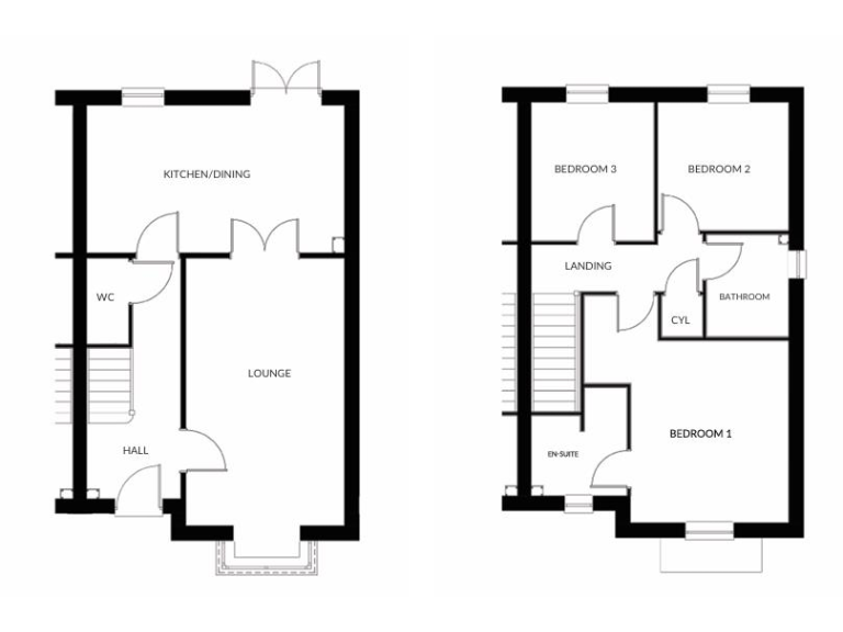
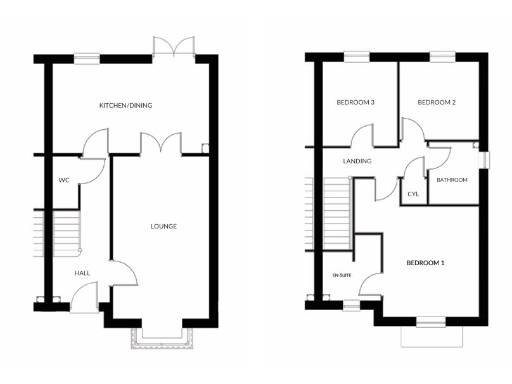
A newly built three-bedroom home designed for modern family living, completed to an upgraded specification. The open-plan kitchen/diner features included floor tiling and contemporary fitted units, while the lounge opens via French doors to an enclosed rear garden. The principal bedroom benefits from an en-suite and there is a separate family bathroom with enhanced fittings.
Practical extras make moving easier: a garage with block-paved driveway and a 5% gifted deposit are included. The footprint is compact (approximately 805 sq ft), so rooms are well-proportioned rather than expansive — a good fit for first-time families or downsizers seeking low-maintenance living.
Buyers should note this is a new-build plot with anticipated completion in winter 25/26; brochure photographs are illustrative and internal finishes may vary. The rear garden is modest in size and the overall plot is typical of contemporary suburban developments, so outside space is adequate but not large.
3 bedroom semi-detached house for sale in Plot 137, 4 Dunnock Avenue, Waltham., DN37 — £234,950 • 3 bed • 1 bath • 805 ft²
3 bedroom terraced house for sale in Plot 44, 44 Dunnock Avenue, Waltham., DN37 — £229,950 • 3 bed • 1 bath • 835 ft²
4 bedroom detached house for sale in Plot 149, 22 Kestrel Drive, Waltham, DN37 — £349,950 • 4 bed • 2 bath • 1164 ft²
3 bedroom terraced house for sale in Plot 46, 40 Dunnock Avenue, Waltham, DN37 — £189,950 • 3 bed • 1 bath • 748 ft²
3 bedroom end of terrace house for sale in Plot 43, 46 Dunnock Avenue, Waltham., DN37 — £244,950 • 3 bed • 1 bath • 808 ft²
4 bedroom detached house for sale in Plot 148, 1 Dunnock Avenue, Waltham, DN37 — £324,950 • 4 bed • 2 bath • 1197 ft²






























































































