New, low-maintenance two-bed home on an over-50s countryside park.
Brand-new 40'x20' park home, fully furnished
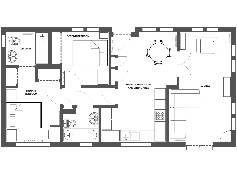
This brand-new, fully furnished 40'x20' park home sits in a peaceful over-50s residential park near Chelmsford, offering easy countryside living with town amenities close by. The open-plan living space flows into a modern fitted kitchen; two double bedrooms include built-in wardrobes and an en-suite to one bedroom. At around 800 sq ft the layout feels compact but well planned, ideal for downsizers seeking low-maintenance living.
Practical points are clear: site fees are quoted at £240 per month and ground rent is high at £2,880 annually. The home's tenure is described as Virtual Freehold (buy the home, lease the land); these homes are often not mortgageable, so buyers should check finance options and park rules before committing. Broadband speeds are reported slow despite excellent mobile signal.
The park is set in a prosperous countryside hamlet surrounded by trees and hedgerows, with low crime and accessible local services including shops, medical facilities and good commuter links to Chelmsford and London. The home is cat friendly and part-exchange is offered for a quicker sale, which may appeal to those wanting a straightforward move.
This property is best for over-50s seeking a newly renovated, low-upkeep home in a quiet setting. It delivers modern design and practical comforts, but buyers should factor in ongoing site costs, the high ground rent, tenure implications and limited broadband when deciding to view.
1 bedroom park home for sale in Chelmsford, Essex, CM2 — £120,000 • 1 bed • 1 bath • 400 ft²
2 bedroom park home for sale in Bakers Lane, West Hanningfield, Chelmsford, CM2 — £125,000 • 2 bed • 1 bath
2 bedroom detached house for sale in Temple Grove Park, Bakers Lane, West Hanningfield, Chelmsford, CM2 — £100,000 • 2 bed • 1 bath • 415 ft²
1 bedroom park home for sale in Templeton Park, West Hanningfield, Chelmsford, CM2 — £130,000 • 1 bed • 1 bath
Park home for sale in Two Bed Wessex Canford (45x20), Crowsheath Estate, Downham, Billericay, Essex, CM11 1JT, CM11 — £285,995 • 1 bed • 1 bath
2 bedroom park home for sale in Hockley, Essex, SS5 — £195,000 • 2 bed • 1 bath • 500 ft²


































