Easy-care detached bungalow-style living near Chelmsford for over‑40s.
- One double bedroom plus separate study
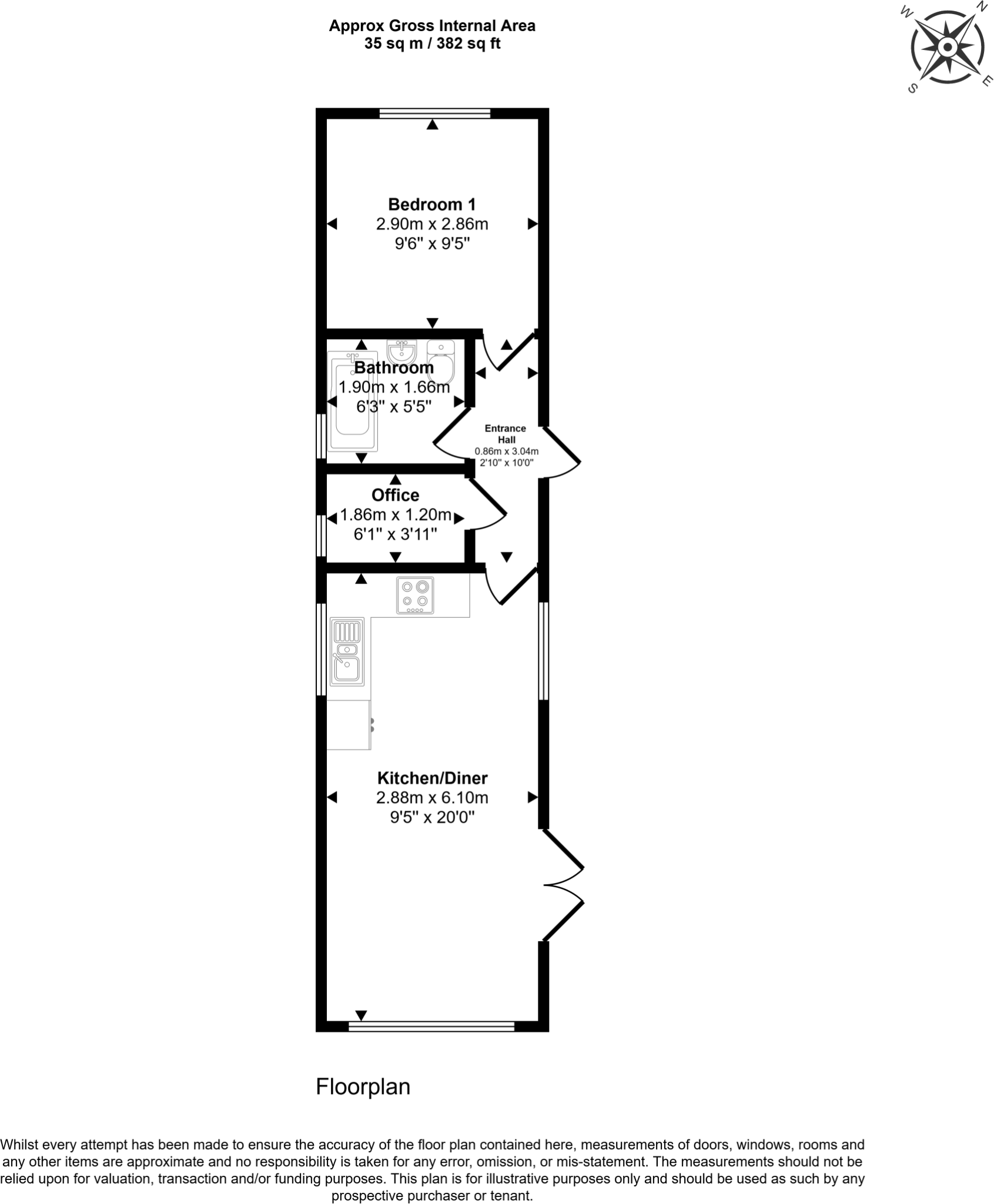
A compact, low‑maintenance park home suited to buyers looking to downsize without compromising on detached, bungalow-style living. The open-plan living, one double bedroom and separate study make this 40'x10' Homeseeker Langdale a practical, easy-care base close to Chelmsford with commuter links into London.
Outside there’s a private garden with a 6'x4' shed, an allocated parking space and access to a communal lawn in an established, over‑40s residential park. The site is well maintained and set in attractive Essex countryside, with local shops and medical facilities within a few miles.
Buyers should note this is a small home (around 400 sq ft) on a virtual freehold pitch: park homes are commonly not mortgageable, so legal advice is recommended. Ongoing costs include a monthly site fee (listed at £252.08) and a high ground‑rent figure shown (£3,024.96). Broadband speeds are reported as slow, although mobile signal is excellent.
Part‑exchange is offered for a hassle‑reduced move. The property will suit a single person or couple seeking low‑upkeep, single‑level accommodation in a sociable, age‑restricted community, provided they are comfortable with the tenure and ongoing site charges.
2 bedroom park home for sale in Bakers Lane, West Hanningfield, Chelmsford, CM2 — £115,000 • 2 bed • 1 bath
1 bedroom park home for sale in Templeton Park, West Hanningfield, Chelmsford, CM2 — £125,000 • 1 bed • 1 bath
1 bedroom park home for sale in Bakers Lane, West Hanningfield, CHELMSFORD, CM2 — £120,000 • 1 bed • 1 bath • 753 ft²
2 bedroom park home for sale in Chelmsford, Essex, CM2 — £285,000 • 2 bed • 2 bath • 800 ft²
1 bedroom park home for sale in Bakers Lane, West Hanningfield, Chelmsford, CM2 — £60,000 • 1 bed • 1 bath
2 bedroom park home for sale in Brentwood, Essex, CM13 — £135,000 • 2 bed • 1 bath • 720 ft²






























































