Sunny rear garden and good commuter links for London.
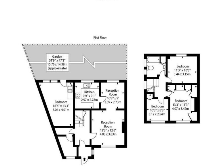
Extended semi-detached with side extension providing extra bedroom and bathroom
Set on a quiet cul-de-sac in Elstree, this extended semi-detached house offers practical family living with scope to personalise. The property includes a full-length side extension currently arranged as an additional bedroom and bathroom, flexible for a home office, guest suite or fourth bedroom. A bright through lounge/diner opens to a south‑west facing garden, ideal for outdoor play and summer entertaining.
The house is offered freehold and benefits from off-street parking, double glazing and mains gas central heating. It is compact in overall size (circa 913 sq ft) but well laid out across two storeys; nearby bus links provide regular services into London within a five-minute walk. Broadband speeds are fast and mobile signal is excellent, supporting modern working-from-home needs.
There is clear potential to increase living space (subject to planning permission) and to add value by updating the kitchen, bathrooms and general decor. The property is habitable as-is but does require some modernisation and redecoration; fixtures and finishes are dated in places.
Buyers should note some practical considerations: the local recorded crime level is above average, and the overall footprint is on the smaller side for a four-bedroom home. That said, the generous south‑west garden, extension already in place and proximity to well-regarded independent schools make this a sensible choice for families seeking space to grow or for investors targeting lettings in a commuter town.
3 bedroom semi-detached house for sale in Delius Close, Elstree, Borehamwood, WD6 — £461,650 • 3 bed • 1 bath • 1065 ft²
4 bedroom semi-detached house for sale in Edulf Road, Borehamwood, WD6 — £650,000 • 4 bed • 1 bath • 971 ft²
3 bedroom house for sale in West View Gardens, Elstree, WD6 — £499,950 • 3 bed • 1 bath • 1167 ft²
4 bedroom detached house for sale in Georges Mead, Elstree, WD6 — £1,500,000 • 4 bed • 2 bath • 2261 ft²
3 bedroom semi-detached house for sale in Walshford Way, Borehamwood, Hertfordshire, WD6 — £575,000 • 3 bed • 1 bath • 992 ft²
5 bedroom detached house for sale in Deacons Hill Road, Elstree, Hertfordshire, WD6 — £1,400,000 • 5 bed • 3 bath • 2130 ft²














































