NR35 2EW - 4 bedroom barn conversion for sale in Ellingham, NR35

View on Property Piper

4 bedroom barn conversion for sale in Ellingham, NR35

Summary - Station Farm Barn, Station Road, Ellingham NR35 2EW

4 bed 3 bath Barn Conversion

**Standout Features:**
- Idyllic detached barn conversion with breathtaking field views
- Expansive plot measuring approximately 0.5 acres (stms)
- Four spacious bedrooms, including a master suite with an en-suite bathroom
- Versatile layout with a potential annexe in the detached brick outbuilding (stp)
- Large living room with a vaulted ceiling and natural light
- Generously-sized kitchen breakfast room, utility room, study, and garden room
- Beautifully established gardens, workshop, off-road parking, and a garage
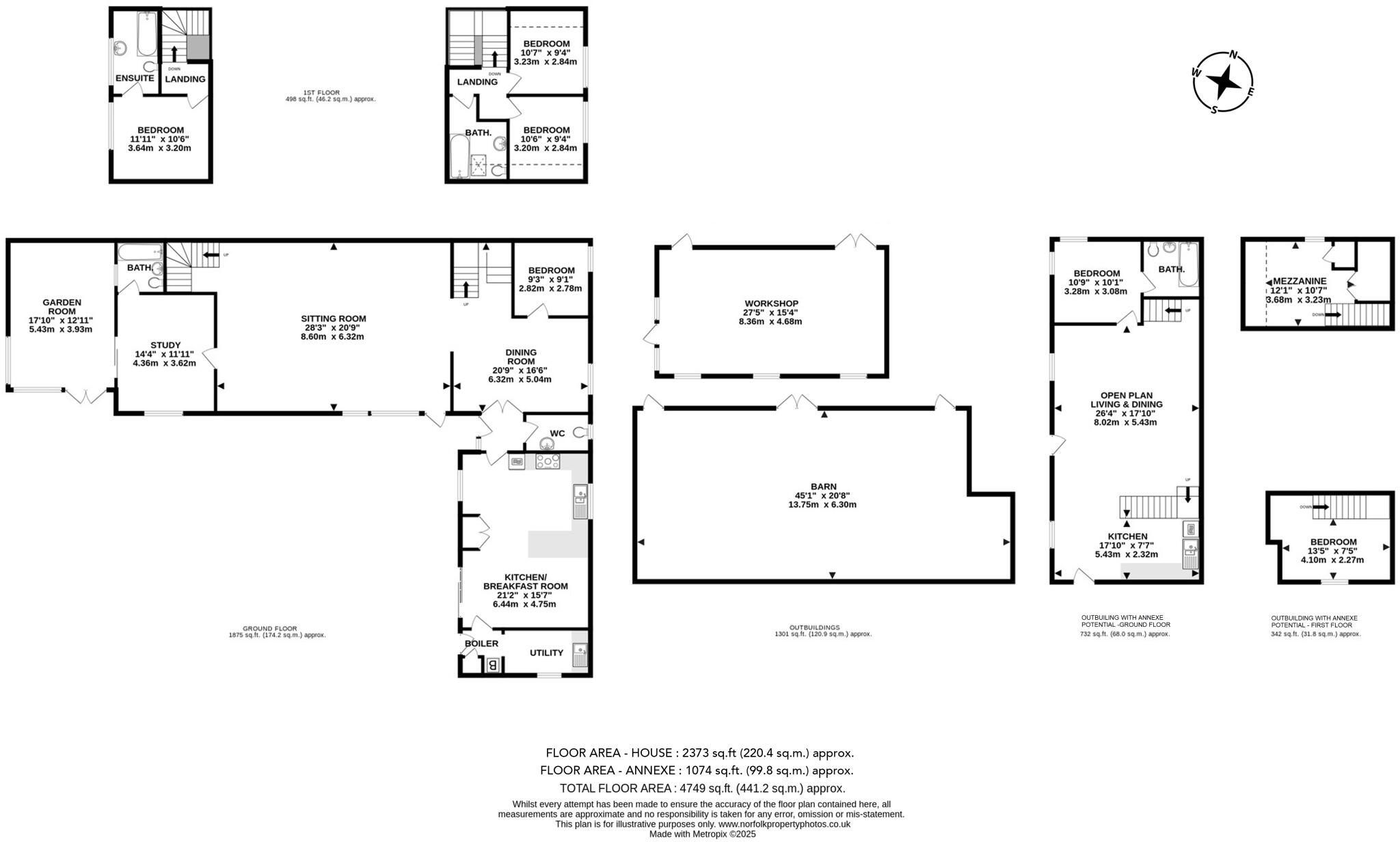
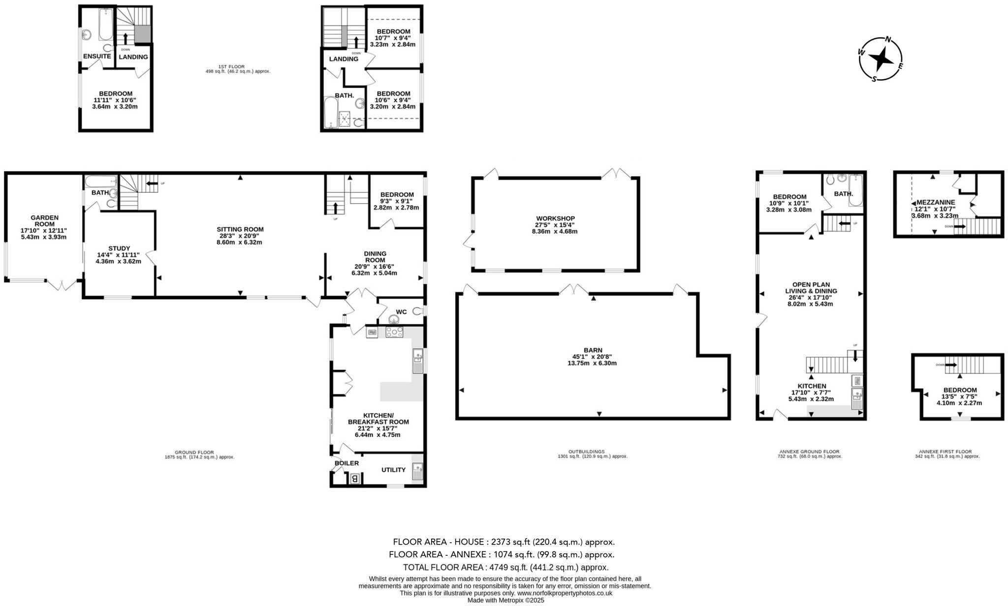
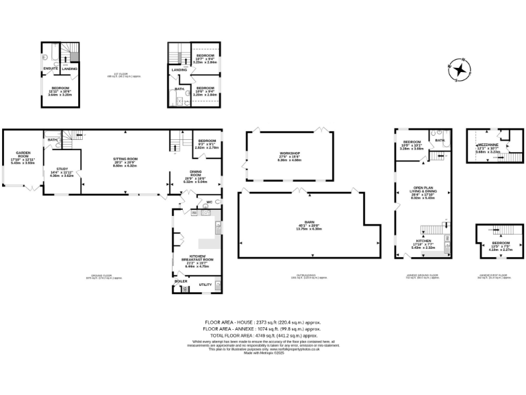
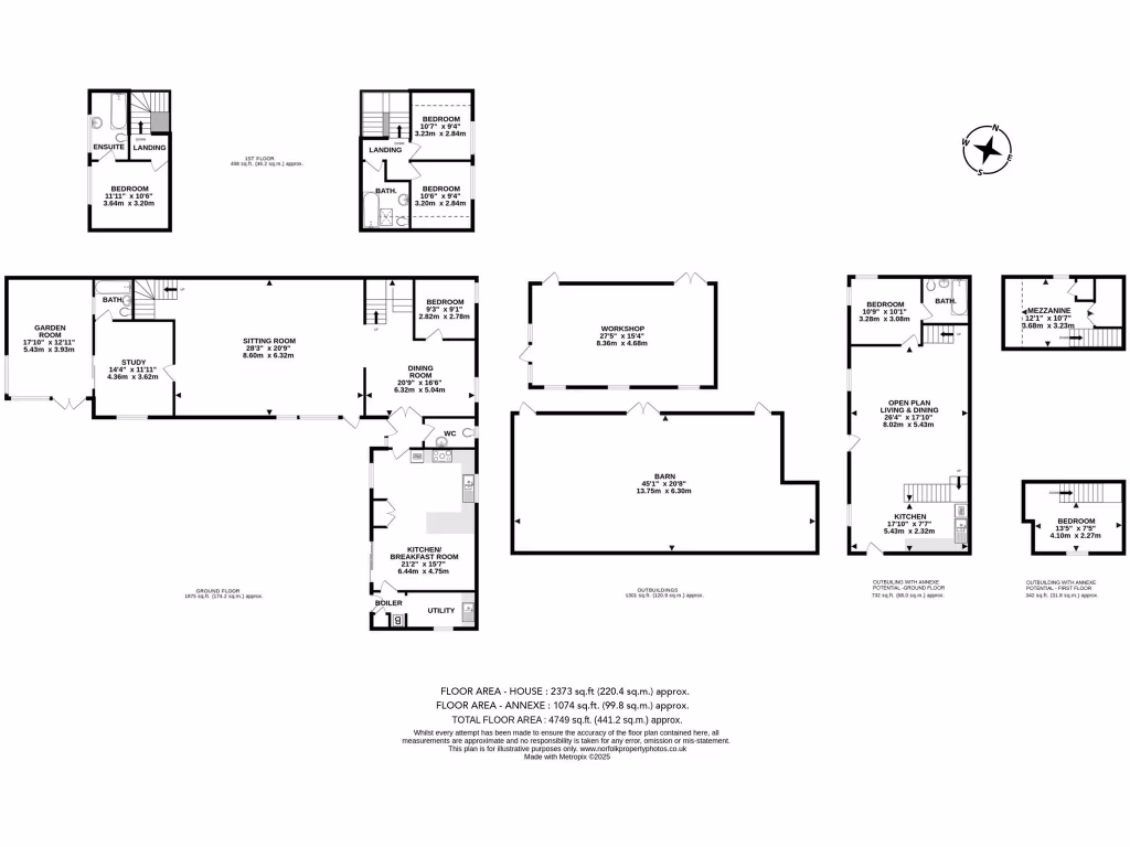
- Total accommodation size of 4,749 sq.ft.
- Energy rating: E

This stunning barn conversion in the picturesque village of Ellingham offers a perfect blend of rustic charm and modern living. Set amidst striking countryside views, this spacious home is designed for family comfort and entertaining, featuring a grand living room with vaulted ceilings and an abundance of windows that bathe the area in natural light. With four sizable bedrooms and potential for further development via the outbuilding, this property provides excellent versatility.

The landscaped gardens enhance this tranquil retreat, allowing for outdoor enjoyment in your generous green space. Ideal for families, the property is within proximity to well-regarded local schools, ensuring a nurturing environment for children. With a strong sense of community and low crime rates, this home encapsulates secure, family-friendly living.

While the barn conversion is largely in good condition, prospective buyers should be aware of the energy rating of E and consider any future improvements. Seize the opportunity to own a unique country home, perfectly positioned to enjoy rural charm and modern convenience—properties like this rarely come to market!

Property Details

Brochure Descriptions

Image Descriptions

Floorplan Description

Rooms

Textual Property Features

Detected Visual Features

EPC Details

Nearby Schools

Nearest Bars And Restaurants

,,,,}

Nearest General Shops

,,}

Nearest Grocery shops

,,}

Nearest Supermarkets

,,}

Nearest Religious buildings

,,}

Nearest Medical buildings

,,,}

Nearest Leisure Facilities

,,,,}

Nearest Tourist attractions

,,}

Nearest Train stations

,,,,}

Nearest Bus stations and stops

,,,,}

Nearest Hotels

,,}

Tags

Local Market Stats

AirBnB Data

Similar Properties

Meta

High Res Images

Compatible Images

Low res Images

Thumbnails

Raw Images

High Res Floorplan Images

Compatible Floorplan Images

Low res Floorplan Images

FloorplanImages Thumbnail

Raw Floorplan Images