**Standout Features:**
- Impressive 6-bedroom detached home
- Arts & Crafts architectural style with original period features
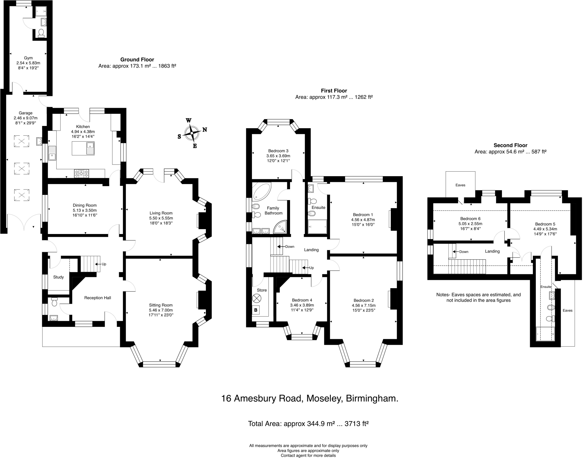
- Expansive layout across three floors, totaling 3,713 sq ft
- Beautifully maintained gardens on a large 0.26-acre plot
- Located in desirable Amesbury Road, Moseley, close to Cannon Hill Park
- Within the catchment area for King Edward VI Camp Hill Grammar School
- Detached garage and ample off-road parking
- Fast broadband and average mobile signal
**Summary:**
Discover this stunning 6-bedroom detached Arts & Crafts house on the prestigious Amesbury Road, Moseley. This generous property offers a unique blend of character and space with original features, including an exquisite stained glass entryway and richly detailed fireplaces. The ground floor boasts three elegantly designed reception rooms, a formal dining space, and a family-friendly kitchen that flows seamlessly into the lush rear garden—perfect for entertaining or family gatherings.
Upstairs, you will find five spacious bedrooms, including a luxurious master complete with an ensuite and dressing room, plus a sizeable family bathroom. Venturing to the second floor, an additional double bedroom and ample storage await, ideal for growing families or guests. The outdoor spaces include a beautifully landscaped garden and a generous driveway leading to a tandem garage, offering practicality alongside aesthetic charm.
Situated just a half-mile from Moseley Village with its vibrant shops, bars, and restaurants, this home combines comfort, elegance, and convenience, making it a coveted opportunity for families seeking both space and a strong sense of community. The property is also well-connected to excellent local schools and parks, creating an ideal family haven. Don’t miss your chance to own this exquisite home in one of Birmingham's most sought-after neighborhoods.
6 bedroom detached house for sale in Amesbury Road, Moseley, B13 — £1,295,000 • 6 bed • 3 bath • 4294 ft²
6 bedroom detached house for sale in Moor Green Lane, Moseley, Birmingham, B13 — £950,000 • 6 bed • 3 bath • 3810 ft²
6 bedroom detached house for sale in Grove Avenue, Moseley, Birmingham, B13 — £700,000 • 6 bed • 3 bath • 1841 ft²
6 bedroom detached house for sale in Goodby Road, Birmingham, B13 — £600,000 • 6 bed • 1 bath • 1800 ft²
6 bedroom detached house for sale in Moor Green Lane, Moseley, B13 — £995,000 • 6 bed • 3 bath • 2878 ft²
6 bedroom detached house for sale in Amesbury Road, Moseley, Birmingham, B13 — £1,295,000 • 6 bed • 4 bath • 1721 ft²














































































































