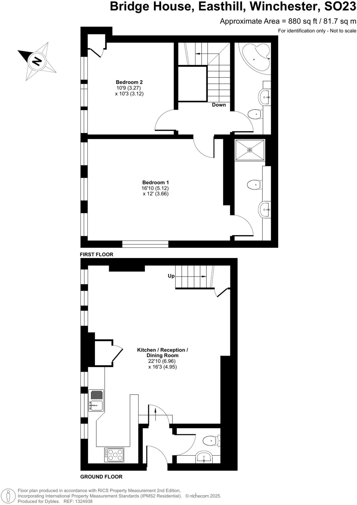
**Standout Features:**
- Two spacious double bedrooms with en suite Master bedroom
- Open-plan living and dining area, ideal for entertaining
- Downstairs WC for convenience
- Private entrance with additional on-street permit parking
- Low crime rate in an affluent setting
**Potential Concerns:**
- Requires modernization and renovation
- Leasehold tenure with modest ground rent
Discover the perfect blend of comfort and convenience in this two-bedroom split-level maisonette located in desirable Winchester. Offering a generous 880 square feet, this home features a spacious open-plan living area adorned with modern touches, while the original Victorian industrial character adds unique charm. The upstairs is home to two ample bedrooms, including a master suite with an en suite shower, making it ideal for families, couples, or professionals seeking a home office.
Enjoy the luxury of a private entrance, on-street permit parking, and a host of local amenities including restaurants, parks, and tranquil river walks, all just a stone's throw from Winchester Train Station. Though the property requires some renovation, it presents an exciting opportunity to create a personalized sanctuary in a vibrant, affluent community. With no forward chain, this listing won't last long—don't miss your chance to secure a centrally located slice of Hampshire living!
1 bedroom maisonette for sale in The Walk, Winchester, SO22 — £210,000 • 1 bed • 1 bath • 388 ft²
2 bedroom flat for sale in 66 Trussell Crescent, SO22 — £150,000 • 2 bed • 1 bath • 753 ft²
1 bedroom maisonette for sale in Bath Place, Winchester, SO22 — £72,000 • 1 bed • 1 bath • 473 ft²
1 bedroom apartment for sale in Firmstone Road, Winchester, SO23 — £180,000 • 1 bed • 1 bath • 312 ft²
2 bedroom maisonette for sale in Winchester, SO22 — £280,000 • 2 bed • 1 bath • 497 ft²
2 bedroom flat for sale in Clifton Lodge Block 2, Clifton Road, Winchester, Hampshire, SO22 — £300,000 • 2 bed • 1 bath • 676 ft²






































































