**Standout Features:**
- One-bedroom maisonette with share of freehold
- Private courtyard garden - ideal for outdoor relaxation
- Open-plan lounge/kitchen/dining area that is bright and welcoming
- Modern kitchen with integrated appliances and ample storage
- Short walk from the city center and local amenities
- On-street parking available with resident permit
**Concerns:**
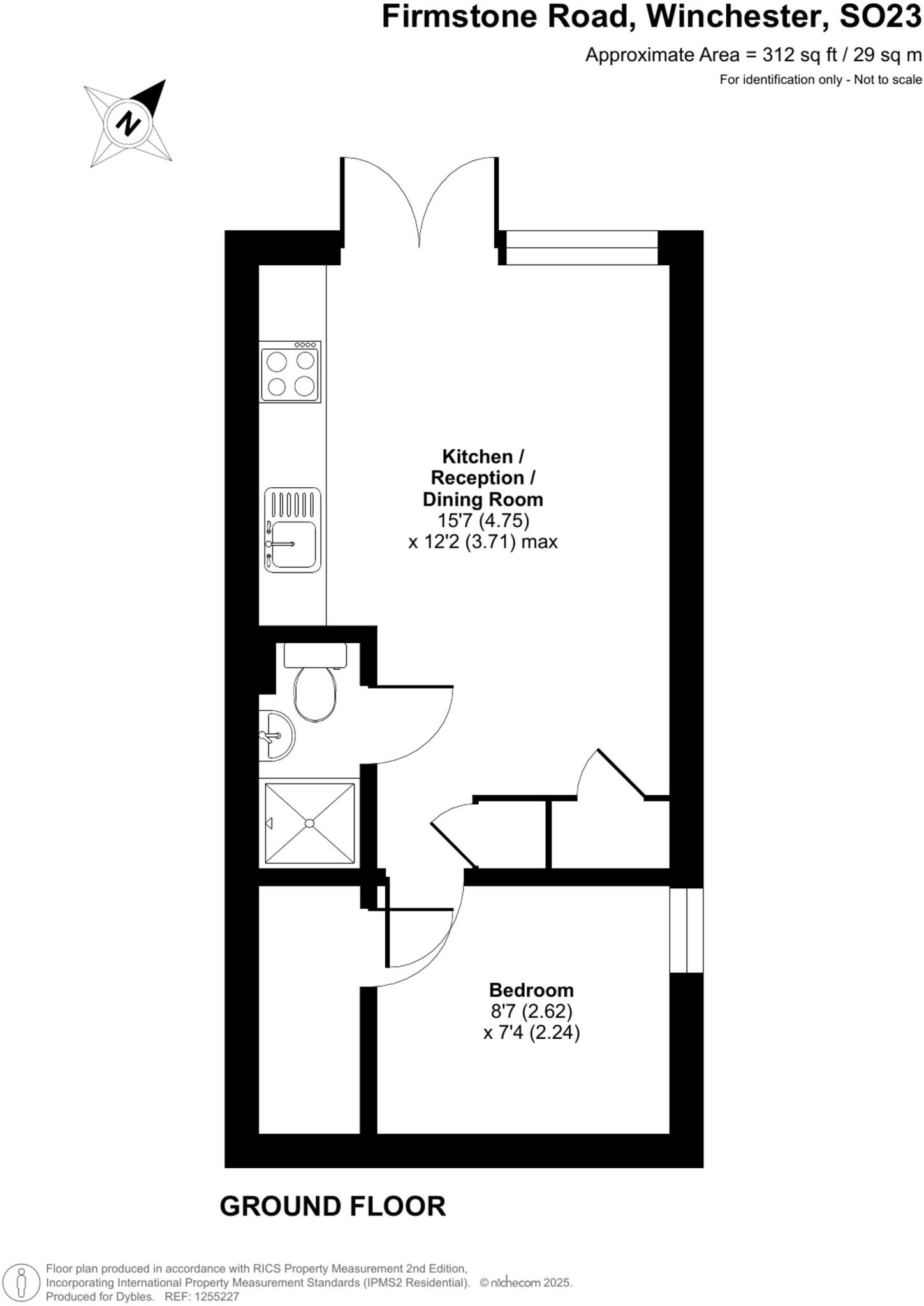
- Small overall size at 312 square feet
- High local crime rate
- Internet broadband speeds are slow
- Potential for maintenance or renovation due to age of property (constructed 1983-1990)
This delightful one-bedroom maisonette in the vibrant area of Winnall, Winchester, is a perfect opportunity for first-time buyers or couples looking for comfort and convenience. Enjoy the bright open-plan living space that seamlessly combines lounging and dining, complemented by a modern kitchen designed for both functionality and style. Step outside to your own private courtyard, a rare find for urban living, where you can unwind in tranquility.
Conveniently located just a short stroll from the city center, you’ll have easy access to a variety of shops, dining options, and transport links. With well-rated local schools and essential amenities nearby, this property strikes a balance between suburban charm and city life.
While the apartment presents a cozy space ripe for personalization, be mindful of its small size and the high local crime rates. The property would benefit from some future maintenance or renovation. Act quickly—opportunities like this are just as rare as they are enticing in Winchester!
1 bedroom apartment for sale in Quarry Road, Chilcombe Heights Quarry Road, SO23 — £270,000 • 1 bed • 1 bath • 490 ft²
1 bedroom maisonette for sale in Bath Place, Winchester, SO22 — £72,000 • 1 bed • 1 bath • 473 ft²
1 bedroom maisonette for sale in The Walk, Winchester, SO22 — £210,000 • 1 bed • 1 bath • 388 ft²
1 bedroom apartment for sale in Upper High Street, Chancery House, SO23 — £220,000 • 1 bed • 1 bath • 440 ft²
1 bedroom flat for sale in Bar End Road, Winchester, Hampshire, SO23 — £225,000 • 1 bed • 1 bath • 419 ft²
1 bedroom flat for sale in Chesil Street, Winchester, Hampshire, SO23 — £190,000 • 1 bed • 1 bath • 398 ft²






























































