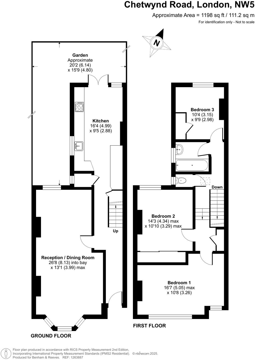
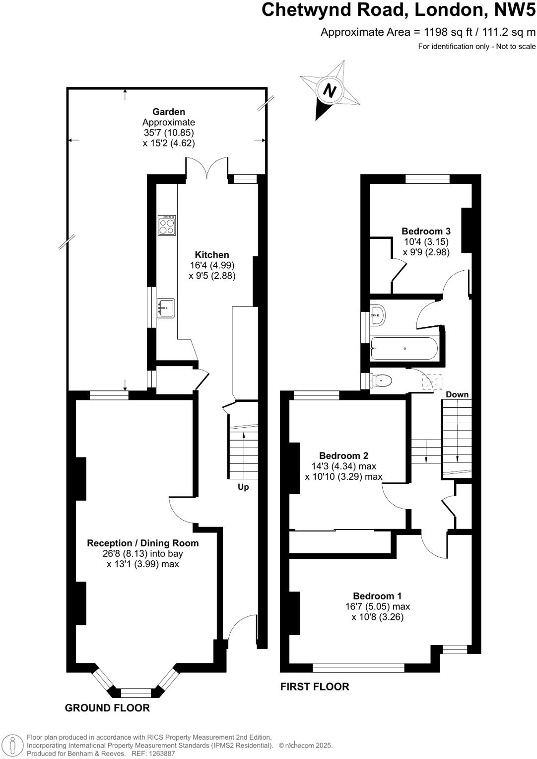
**Standout Features:**
- Charming Victorian terrace with classic architectural details
- Generously sized 26’8 double reception room with bay window and period fireplace
- 16’4 Kitchen/breakfast room leading to a south-facing rear garden
- Potential for renovation with unconverted large loft space
- Excellent transport links and proximity to amenities in Dartmouth Park
**Potential Concerns:**
- Average-sized accommodation and small plot size
- Older double glazing installed before 2002 may require some updates
- Property constructed between 1900-1929 may need maintenance checks
**Summary Description:**
Nestled in the desirable Dartmouth Park Conservation Area, this charming Victorian terraced home offers an inviting blend of period elegance and modern living. The impressive double reception room, with its high ceilings and bay windows, creates a welcoming ambiance, perfect for family gatherings. The spacious kitchen/breakfast room opens directly to the sunny south-facing garden, ideal for leisure and entertaining.
With three well-proportioned bedrooms and a large loft space that holds significant renovation potential, this property is perfect for families looking to settle in a vibrant urban neighborhood. The area boasts a variety of top-rated schools, an eclectic mix of local shops, cafes, and excellent transport links, making it suitable for both families and professionals alike.
While the home may require some updates—such as modern double glazing and potential insulation improvements—its classic features and prime location present a unique opportunity. Don’t miss your chance to own this distinctive Victorian gem; properties in this sought-after area don't stay on the market long!
3 bedroom terraced house for sale in Chetwynd Road, Dartmouth Park, NW5 — £1,300,000 • 3 bed • 1 bath • 1180 ft²
4 bedroom terraced house for sale in Chetwynd Road, Dartmouth Park, London, NW5 — £1,450,000 • 4 bed • 2 bath • 1450 ft²
2 bedroom flat for sale in Chetwynd Road, Dartmouth Park, NW5 — £800,000 • 2 bed • 1 bath • 645 ft²
5 bedroom house for sale in Croftdown Road, Dartmouth Park, NW5 — £2,800,000 • 5 bed • 2 bath • 2815 ft²
2 bedroom flat for sale in Chetwynd Road, Dartmouth Park, NW5 — £800,000 • 2 bed • 1 bath • 809 ft²
4 bedroom apartment for sale in Dartmouth Park Hill, London, NW5 — £1,100,000 • 4 bed • 2 bath • 1590 ft²


















































































