Ground-floor conversion with garden and strong rental potential near tram links.
- Sold at auction; prior-purchase option available
- Cash buyers only; leasehold tenure
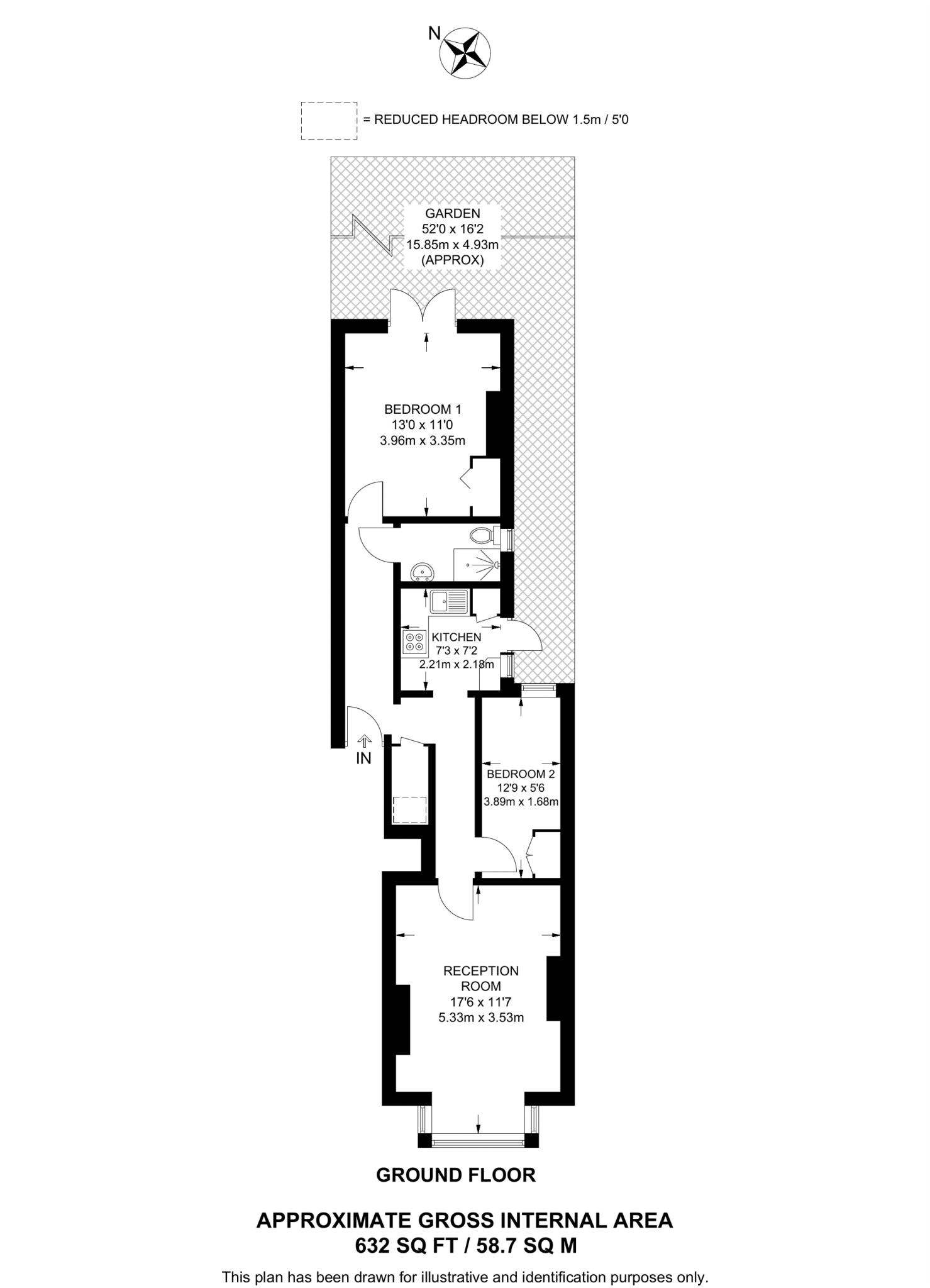
- Ground-floor flat with private rear garden
- Two well-proportioned double bedrooms
- About 632 sq ft; high ceilings and period character
- Mains gas boiler and radiators; double glazing
- Solid brick walls likely without insulation; refurbishment needed
- Local area has above-average crime; proximity to tram stop
Set on the ground floor of a 1930s mid-terrace conversion, this two-bedroom flat offers a bright reception room, a separate smart kitchen and a private rear garden. At about 632 sq ft the layout is well proportioned and benefits from high ceilings and period character in a convenient Addiscombe location. Fast broadband and excellent mobile signal support modern living or letting.
Sold via auction with a prior-purchase option, the property is leasehold and marked Cash Buyers Only. It will suit an investor or a buyer comfortable with auction purchase mechanics. The location is commuter-friendly: Addiscombe tram stop, local buses and the shops, cafés and services on Lower Addiscombe Road are all within easy walking distance.
The building dates from 1930–1949 and has solid brick walls (no known insulation). The flat has double glazing and mains gas central heating via a boiler and radiators. There is refurbishment potential to improve energy performance and modernise finishes, which could increase rental income or resale value.
Buyers should note practical drawbacks clearly: the sale is leasehold and by auction (cash-only purchases expected), and the local area records above-average crime levels. These factors, alongside the age of construction and likely need for insulation and updating, are important when assessing cost and yield.
2 bedroom flat for sale in Colworth Road, Croydon, CR0 — £200,000 • 2 bed • 1 bath • 632 ft²
2 bedroom flat for sale in Furze Court, Ashburton Road, Croydon, CR0 — £250,000 • 2 bed • 1 bath • 699 ft²
2 bedroom flat for sale in Lower Addiscombe Road, Croydon, CR0 — £200,000 • 2 bed • 1 bath • 661 ft²
2 bedroom flat for sale in Kestrel Way, Croydon, Surrey, CR0 — £185,000 • 2 bed • 1 bath • 733 ft²
2 bedroom flat for sale in Flat 4 Innova Court, 1A Leslie Park Road, Croydon, CR0 6AT, CR0 — £205,000 • 2 bed • 1 bath • 732 ft²
2 bedroom flat for sale in Selhurst Place, LONDON, London, SE25 — £200,000 • 2 bed • 1 bath • 564 ft²






















































