Newly converted three-bed garden flat near Tooting Broadway, move-in ready.
Three double bedrooms, newly converted in 2024
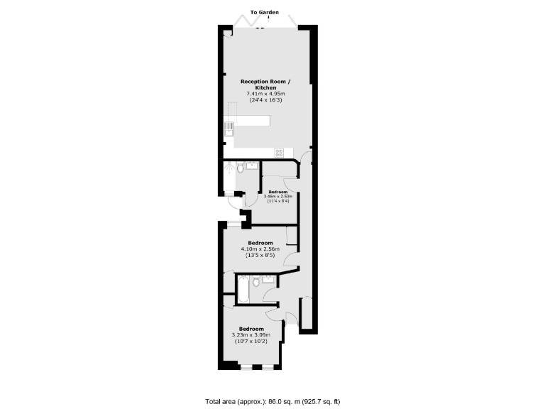
A newly converted three-double-bedroom ground-floor garden flat arranged linearly from street to private rear garden. The open-plan kitchen/reception at the rear is a key feature, finished with a bespoke fitted kitchen, integrated appliances, wooden floors and bi-folding doors that connect living space directly to a low-maintenance contemporary garden.
Well located for Tooting Broadway (Northern Line) and the area’s shops, restaurants and amenities, the flat offers good transport links and excellent mobile signal. At about 925 sq ft the accommodation feels mid-sized with a notably large reception/kitchen and three genuine double bedrooms, making it suitable for family occupation or buy-to-let investment.
Practical points to note: the property is leasehold, constructed in 2024 as part of a conversion, with a below-average service charge of £200 and no annual ground rent. Broadband speeds in the area are reported as very slow, and the rear garden is small-to-average, designed for low maintenance rather than extensive outside living.
Overall this is a modern, well-presented flat in good decorative order that will suit buyers seeking move-in ready accommodation near Tooting’s amenities, or investors wanting a ready-made three-bed rental layout. Confirm tenure details and measurements before proceeding.
3 bedroom maisonette for sale in Coverton Road, London, SW17 — £675,000 • 3 bed • 1 bath • 1392 ft²
2 bedroom flat for sale in Byton Road, Tooting, SW17 — £550,000 • 2 bed • 2 bath • 970 ft²
2 bedroom flat for sale in Byton Road, London, SW17 — £550,000 • 2 bed • 2 bath • 668 ft²
3 bedroom flat for sale in Tooting Bec Road, London, SW17 — £575,000 • 3 bed • 1 bath • 779 ft²
3 bedroom apartment for sale in Garratt Terrace, London, SW17 — £715,000 • 3 bed • 3 bath • 856 ft²
2 bedroom flat for sale in Coverton Road, Tooting, SW17 — £525,000 • 2 bed • 1 bath • 673 ft²














































