BN11 4EF - 4 bed victorian four bedroom terrace in Elizabeth Road, BN1…

View on Property Piper

4 bedroom terraced house for sale in Elizabeth Road, Worthing, West Sussex, BN11

Summary - 6 ELIZABETH ROAD WORTHING BN11 4EF

4 bed 1 bath Terraced

Newly renovated period home near shops, schools and transport links.
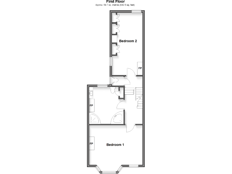
Four double bedrooms with high ceilings and bay window
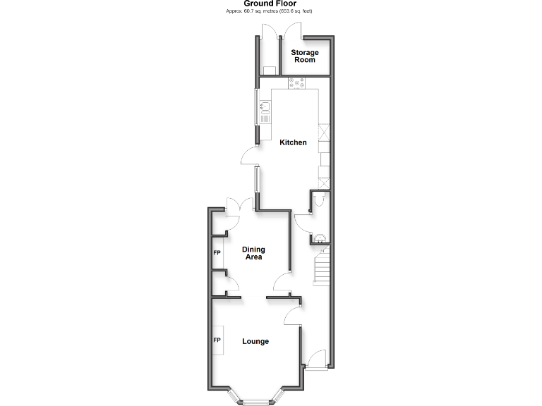
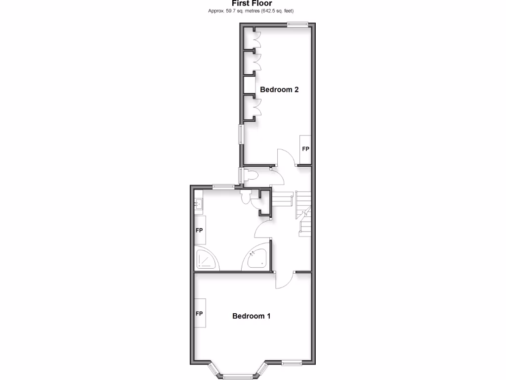
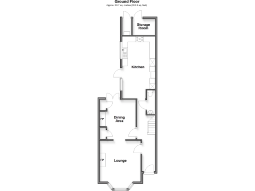
This four-bedroom Victorian terraced house blends original period features with recent renovation work, offering spacious bedrooms and high ceilings across roughly 1,152 sq ft. The ground floor includes a bay-fronted lounge, separate dining room and a long eat-in kitchen, while a secluded rear garden provides an outdoor retreat in a small plot.

The property has been lovingly updated with a contemporary kitchen, modern bathroom and double glazing installed after 2002, making it largely move-in ready. Excellent mobile signal, fast broadband and good transport links place local shops, cafes and schools within easy reach — convenient for family life.

Buyers should note material practical points: there is a single family bathroom for four bedrooms, the area is classified as very deprived with higher local crime levels, and the cavity walls are assumed to have no insulation which could affect running costs. The house is freehold and built c.1900-1929, so interested parties should verify construction details, services and any consents for alterations.

Overall, this is a characterful, newly renovated family home in central Worthing that suits buyers seeking period charm and space close to amenities — provided they accept the small plot, single bathroom layout, and local area challenges.

Property Details

Image Descriptions

Floorplan Description

Rooms

Textual Property Features

Target Audience

AI Tags

Detected Visual Features

EPC Details

Nearby Schools

Nearest Bars And Restaurants

,,,,}

Nearest General Shops

,,}

Nearest Grocery shops

,,}

Nearest Supermarkets

,,}

Nearest Religious buildings

,,}

Nearest Medical buildings

,,,}

Nearest Leisure Facilities

,,,,}

Nearest Tourist attractions

,,}

Nearest Train stations

,,,,}

Nearest Bus stations and stops

,,,,}

Nearest Hotels

,,}

Tags

Local Market Stats

AirBnB Data

Similar Properties

Meta

High Res Images

Compatible Images

Low res Images

Thumbnails

Raw Images

High Res Floorplan Images

Compatible Floorplan Images

Low res Floorplan Images

FloorplanImages Thumbnail

Raw Floorplan Images