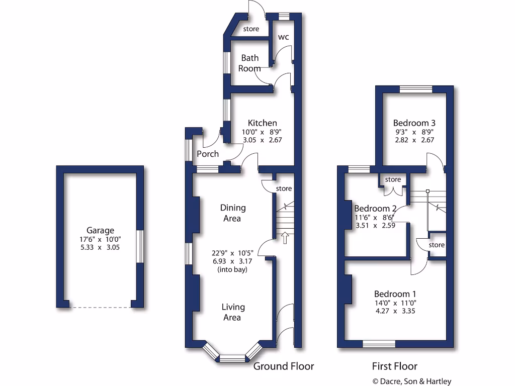
### Standout Features:
- **Three Bedrooms**: Spacious enough to fit double beds.
- **End Terrace with Character**: Charming Victorian design, featuring classic stonework and bay windows.
- **Parking & Garage**: Off-road parking along with a single garage.
- **Beautiful Garden**: Charming outdoor space with splendid views of the greenery and hills.
- **Central Location**: Short walk to the town center and easy access to local amenities.
- **No Onward Chain**: Quick and convenient purchase process.
### Summary:
Discover this inviting three-bedroom end terrace home boasting traditional Victorian charm nestled in a central location in Settle. With its characteristic stone facade and bay windows, this property combines historical appeal with modern conveniences, including off-road parking and a single garage. The generous living spaces feature an open-plan layout, providing a bright and airy atmosphere, perfect for family living or entertaining.
The garden offers delightful views and could be transformed into a tranquil oasis, while the interior is ripe for modernization to suit your style. Located within walking distance to the vibrant Market Square, this home is ideally positioned for accessing schools, public transport, and recreational facilities. Whether you're a first-time buyer or an investor, this property is a must-see—offering potential and convenience without the hassle of onward chains. Act quickly to secure this unique opportunity!
3 bedroom terraced house for sale in East View, Settle, North Yorkshire, BD24 — £279,950 • 3 bed • 2 bath • 1301 ft²
2 bedroom terraced house for sale in High Hill Grove Street, Settle, North Yorkshire, BD24 — £199,950 • 2 bed • 1 bath • 728 ft²
5 bedroom semi-detached house for sale in Duke Street, Settle, North Yorkshire, BD24 — £495,000 • 5 bed • 2 bath • 1636 ft²
3 bedroom terraced house for sale in Mains View, Settle, North Yorkshire, BD24 — £275,000 • 3 bed • 1 bath • 1127 ft²
3 bedroom semi-detached house for sale in Ingfield Crescent, Settle, North Yorkshire, BD24 — £315,000 • 3 bed • 1 bath • 635 ft²
2 bedroom terraced house for sale in Victoria Street, Settle, North Yorkshire, BD24 — £170,500 • 2 bed • 1 bath • 528 ft²


































































