Spacious three-bedroom terrace near station and schools.
Chain free — available with no onward chain
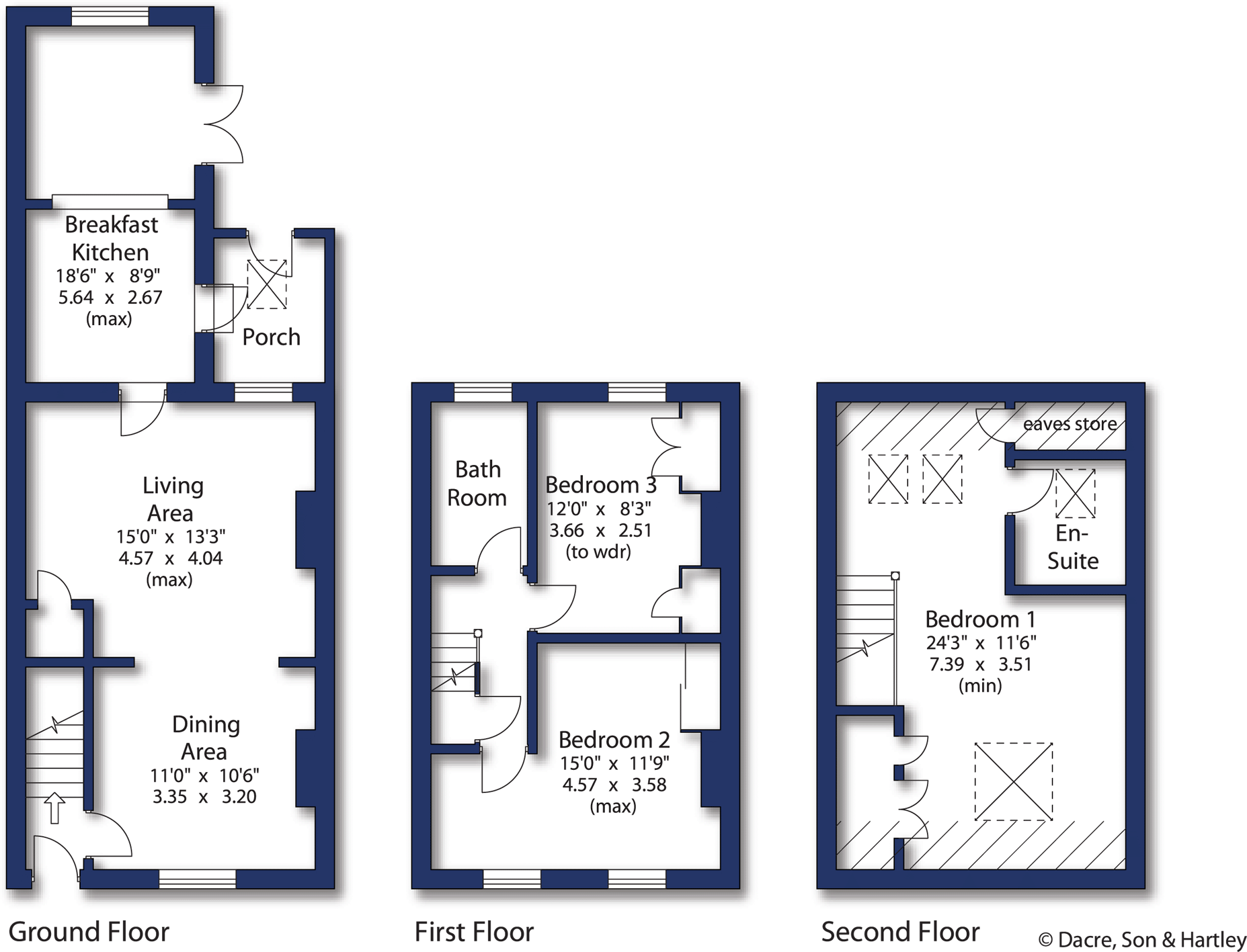
A substantial three-bedroom Victorian terrace in Settle, offered chain free and ready for immediate occupation. The house combines period character—stone masonry, high ceilings and an attractive fireplace—with practical modern updates such as double glazing, a contemporary bathroom and a fitted kitchen. The open-plan living/dining room with a multi-fuel stove forms a warm family hub, while the top-floor master suite with an en suite and Velux windows offers privacy and views.
Outside, the property benefits from off-street parking and a low-maintenance front garden, plus an enclosed rear garden with decking and lawn — a useful outdoor space for children and entertaining. The location is a key asset: a short walk to Settle Market Place, the railway station with direct trains to Leeds, and highly regarded primary and secondary schools.
Buyers should note the building’s traditional stone walls are assumed to have no wall insulation and, given the circa 1900–1929 construction date, may benefit from further energy-efficiency improvements. The plot is modest in size, and as a mid-terrace there is no side garden. Overall this is a sizeable, well-located family home with good commuter links and clear scope for targeted upgrading to enhance comfort and running costs.
3 bedroom semi-detached house for sale in Rainscar View, Kirkgate, Settle, North Yorkshire, BD24 — £260,000 • 3 bed • 2 bath • 785 ft²
3 bedroom semi-detached house for sale in Duke Street, Settle, North Yorkshire, BD24 — £280,000 • 3 bed • 1 bath • 1136 ft²
3 bedroom semi-detached house for sale in Church Street, Settle, North Yorkshire, BD24 — £330,000 • 3 bed • 1 bath • 1151 ft²
3 bedroom semi-detached house for sale in Ingfield Crescent, Settle, North Yorkshire, BD24 — £299,950 • 3 bed • 1 bath • 635 ft²
4 bedroom end of terrace house for sale in Mayville Terrace, Settle, North Yorkshire, BD24 — £350,000 • 4 bed • 2 bath • 1345 ft²
2 bedroom cottage for sale in Albert Hill, Settle, BD24 — £180,000 • 2 bed • 1 bath • 419 ft²






































































