Chain-free flat with long lease and excellent transport links.
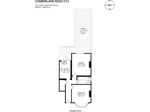
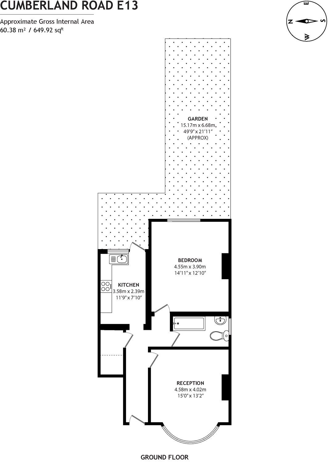
- Nearly 650 sq ft one-bedroom flat with generous proportions
- Private garden uncommon at this price and size
- Long lease (152 years) and offered chain free
- Separate kitchen and bright reception room with period features
- Double glazing fitted post-2002; mains gas boiler and radiators
- Solid brick walls (assumed no insulation) may need upgrade
- Area classed as deprived with above-average crime levels
- Interior needs updating and cosmetic redecoration
Step inside this unexpectedly large one‑bedroom flat in Plaistow and you get space that’s rare at this price. At nearly 650 sq ft the layout feels more like a small house, with a separate kitchen, bright reception room and a generous private garden — great for summer and storage. The long lease (152 years) and chain‑free sale simplify buying or letting.
The building dates from the 1930s and retains period character, including a bay window and fireplace, but the interior will benefit from updating and redecoration to suit modern tastes. Heating is by mains‑gas boiler and radiators; the property has double glazing fitted since 2002. Walls are solid brick (assumed no insulation) which may mean future insulation work if you prioritise energy efficiency.
Location is practical: quiet residential street with fast public transport to the City and Stratford, and many local amenities nearby. There are several highly rated schools within easy reach, making this a viable option for first‑time buyers seeking space or investors after a long‑lease, chain‑free flat.
Be straightforward about downsides: the area scores as deprived with above‑average crime, and the property shows some dated finishes and likely thermal inefficiency from solid walls. For buyers ready to invest some cosmetic or insulation work, this flat offers good space, garden and future value uplift potential.
2 bedroom flat for sale in Stratford Road, London, E13 — £300,000 • 2 bed • 1 bath • 589 ft²
1 bedroom flat for sale in Plaistow, London, E13 — £259,995 • 1 bed • 1 bath • 469 ft²
2 bedroom maisonette for sale in Chesterton Road, London, E13 — £350,000 • 2 bed • 1 bath • 610 ft²
2 bedroom flat for sale in New City Road, London, E13 — £340,000 • 2 bed • 1 bath • 563 ft²
1 bedroom flat for sale in GURNEY ROAD, Maryland, London, E15 — £265,000 • 1 bed • 1 bath • 484 ft²
1 bedroom flat for sale in Prince Regent Lane, London E13 — £260,000 • 1 bed • 1 bath • 517 ft²














































