Extended living, large garden and excellent parking for growing families.
Four bedrooms with built-in wardrobes
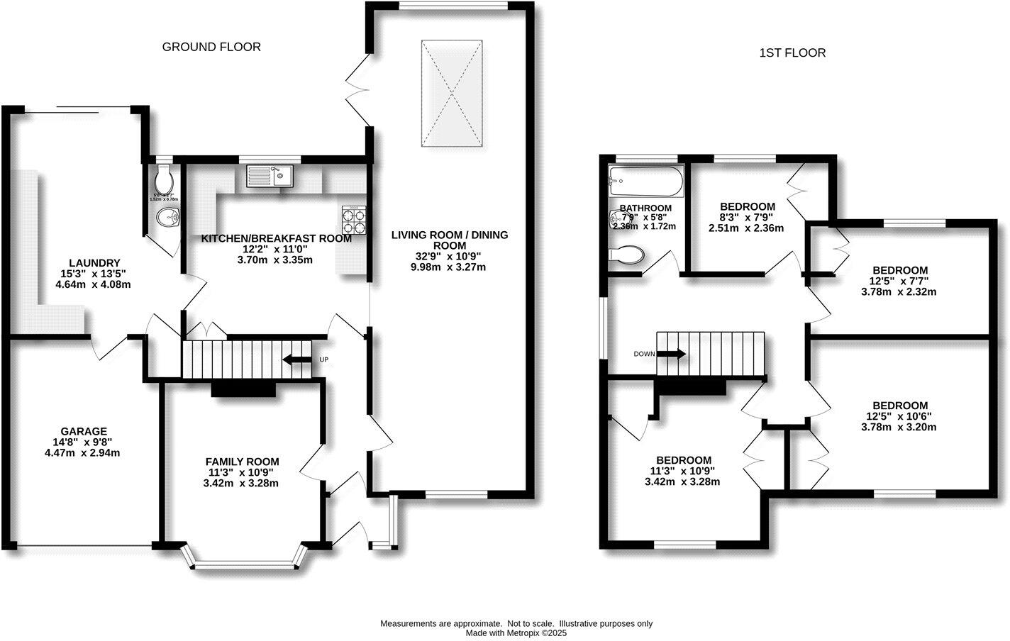
This extended four-bedroom semi-detached house is tailored to family life, offering a generous open-plan living area and a high-spec kitchen that flows onto a sunny, landscaped garden. The large block‑paved driveway and integral garage with an electric roller door provide strong parking and storage for multiple vehicles and family equipment.
Thoughtfully modernised living spaces include herringbone flooring, a roof lantern/skylight and a spacious utility room. Upstairs are four well-proportioned bedrooms with built-in wardrobes and a contemporary family bathroom. The large powered shed and decked BBQ area expand outdoor living and make the garden highly usable.
Built in the mid-20th century, the house sits on a sizeable plot in a comfortable neighbourhood close to good schools, transport links and local amenities. EPC rated C (74) and mains gas–heated, it presents a practical, move-in-ready family home with scope for further improvement or extension subject to consent.
Notable practical points: there is a single family bathroom (one shower/bath room for four bedrooms), and double glazing install dates are not specified. Council Tax band D and average local crime statistics are noted for budgeting and local-area expectations.
3 bedroom semi-detached house for sale in Longacre, Ash, Surrey, GU12 — £550,000 • 3 bed • 1 bath • 1222 ft²
4 bedroom detached house for sale in Old Chapel Lane, Ash, Surrey, GU12 — £600,000 • 4 bed • 2 bath • 991 ft²
4 bedroom semi-detached house for sale in Square Field Way, Ash, Surrey, GU12 — £550,000 • 4 bed • 2 bath • 849 ft²
4 bedroom semi-detached house for sale in Alma Way, Farnham, Surrey, GU9 — £550,000 • 4 bed • 2 bath • 1053 ft²
4 bedroom semi-detached house for sale in Chambers Road, Ash Vale, Surrey, GU12 — £575,000 • 4 bed • 2 bath • 1351 ft²
4 bedroom semi-detached house for sale in Sherwin Crescent, Farnborough, Hampshire, GU14 — £575,000 • 4 bed • 3 bath • 1142 ft²






































































































